|
|
|
| Larry Stein Oklahoma County Assessor (405) 713-1200 - Public Access System |
|
|
|
|
|
|
| Real Property Display - Screen Produced 4/2/2026 10:54:03 AM | ||||
|---|---|---|---|---|
| Account: R153362705 | Type: Residential | Location: |
4825 SE 20TH ST |
|
| Building Name/Occupant: |
|
DEL CITY |
||
| Owner Name 1: | WEBB WENDELL O |
Parcel PIN#: |
1429-15-336-2705 |
|
| Owner Name 2: | 1/4 section #: |
1429 |
||
| Owner Name 3: | Parent Acct: |
|
||
| Billing Address: | 4825 SE 20TH ST | Tax District: |
|
|
| City, State, Zip | OKLAHOMA CITY, OK 73115 | School System: |
Mid-Del #52 |
|
|
Country: (If noted) |
Land Size: |
0.1641 Acres |
||
|
Land Value: 23,595 |
|
|||
|
Sect 8-T11N-R2W Qtr NE |
LUMBERMANS 2ND
Block
008
Lot
010
|
|||
| Full Legal Description: LUMBERMANS 2ND 008 010 |
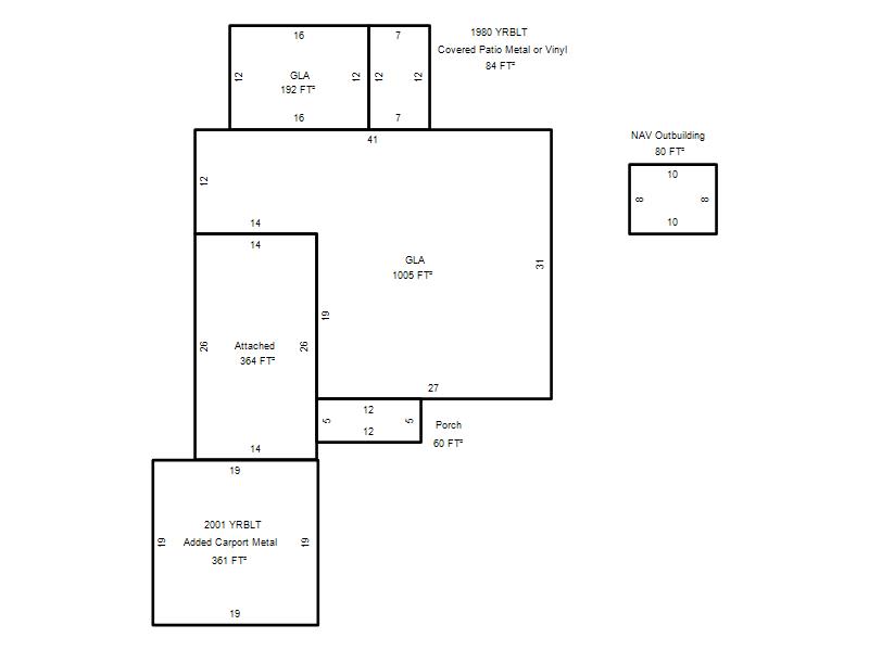
| Photo & Sketch (if available) | Comp Sales (ordered by relevancy) |
|
||||||||||||||||||
|
||||||||||||||||||||
| Value History (*The County Treasurer 405-713-1300 posts & collects actual tax amounts. Contact information HERE) | |||||||||||||
|---|---|---|---|---|---|---|---|---|---|---|---|---|---|
| Year | Market Value | Taxable Mkt Value | Gross Assessed | Exemption | Net Assessed | Millage | Est. Tax | Tax Savings | |||||
|
2026 |
130,000 |
108,610 |
11,946 |
1,000 |
10,946 |
114.72 |
$1,256 |
$385 |
|||||
|
2025 |
134,000 |
105,447 |
11,598 |
1,000 |
10,598 |
114.72 |
$1,216 |
$475 |
|||||
|
2024 |
127,500 |
102,376 |
11,260 |
1,000 |
10,260 |
117.21 |
$1,203 |
$441 |
|||||
|
2023 |
111,500 |
99,395 |
10,933 |
1,000 |
9,933 |
112.46 |
$1,117 |
$262 |
|||||
|
2022 |
96,500 |
96,500 |
10,615 |
1,000 |
9,615 |
110.76 |
$1,065 |
$111 |
|||||
| Property Account Status/Adjustments/Exemptions | ||
|---|---|---|
| Account # | Exemption Description | Amount |
|
R153362705 |
Freeze Senior Valuation |
0 |
|
R153362705 |
3% Cap Homestead |
0 |
|
R153362705 |
Homestead |
1,000 |
| Property Deed Transaction History (Recorded in the County Clerk's Office) | |||||||
|---|---|---|---|---|---|---|---|
| Date | Type | Book | Page | Price | Grantor | Grantee | |
|
11/16/2020 |
|
Deeds |
$100,000 |
FILES ALICE JOAN TRS |
WEBB WENDELL O |
||
|
6/26/2015 |
|
Deeds |
$0 |
FILES LOWE G & ALICE |
FLIES ALICE JOAN |
||
|
6/26/2015 |
|
Deeds |
$0 |
FLIES ALICE JOAN |
FILES ALICE JOAN TRS |
||
|
11/11/1911 |
|
Historical |
$0 |
|
FILES LOWE G & ALICE |
||
| Last Mailed Notice of Value (N.O.V.) Information/History | ||||||||
|---|---|---|---|---|---|---|---|---|
| Year | Date | Market Value | Taxable Market Value | Gross Assessed | Exemption | Net Assessed | ||
|
2026 |
02/06/2026 |
130,000 |
108,610 |
11,946 |
1,000 |
10,946 |
||
|
2025 |
01/31/2025 |
134,000 |
105,447 |
11,598 |
1,000 |
10,598 |
||
|
2024 |
01/22/2024 |
127,500 |
102,376 |
11,260 |
1,000 |
10,260 |
||
|
2023 |
01/23/2023 |
111,500 |
99,395 |
10,933 |
1,000 |
9,933 |
||
|
2021 |
02/24/2021 |
96,500 |
96,500 |
10,615 |
0 |
10,615 |
||
| Property Building Permit History | |||||||||||
|---|---|---|---|---|---|---|---|---|---|---|---|
| Issued | Permit # | Provided by | Bldg # | Description | Est Construction Cost | Status | |||||
| No Building Permit records returned. | |||||||||||
| Click button on building number to access detailed information: | ||||||
|---|---|---|---|---|---|---|
| Bldg # | Vacant/Improved Land | Bldg Description | Year Built | SqFt | # Stories | |
|
1 |
Improved |
Ranch 1 Story |
1963 |
1,197 |
1 Stories |
|