|
|
|
| Larry Stein Oklahoma County Assessor (405) 713-1200 - Public Access System |
|
|
|
|
|
|
| Real Property Display - Screen Produced 3/28/2026 5:55:54 AM | ||||
|---|---|---|---|---|
| Account: R153441015 | Type: Residential | Location: |
4753 SE 17TH ST |
|
| Building Name/Occupant: |
|
DEL CITY |
||
| Owner Name 1: | DAWN HOME BUYERS LLC |
Parcel PIN#: |
1429-15-344-1015 |
|
| Owner Name 2: | 1/4 section #: |
1429 |
||
| Owner Name 3: | Parent Acct: |
|
||
| Billing Address: | 318 SE 43RD ST | Tax District: |
|
|
| City, State, Zip | OKLAHOMA CITY, OK 73129-3036 | School System: |
Mid-Del #52 |
|
|
Country: (If noted) |
Land Size: |
0.1884 Acres |
||
|
Land Value: 26,770 |
|
|||
|
Sect 8-T11N-R2W Qtr NE |
EPPERLY HEIGHTS 8TH
Block
001
Lot
002
|
|||
| Full Legal Description: EPPERLY HEIGHTS 8TH 001 002 |
| Photo & Sketch (if available) | Comp Sales (ordered by relevancy) |
|
||||||||||||||||||
|
||||||||||||||||||||
| Value History (*The County Treasurer 405-713-1300 posts & collects actual tax amounts. Contact information HERE) | |||||||||||||
|---|---|---|---|---|---|---|---|---|---|---|---|---|---|
| Year | Market Value | Taxable Mkt Value | Gross Assessed | Exemption | Net Assessed | Millage | Est. Tax | Tax Savings | |||||
|
2026 |
105,500 |
105,500 |
11,605 |
0 |
11,605 |
114.72 |
$1,331 |
$0 |
|||||
|
2025 |
104,500 |
104,500 |
11,495 |
0 |
11,495 |
114.72 |
$1,319 |
$0 |
|||||
|
2024 |
97,000 |
97,000 |
10,670 |
0 |
10,670 |
117.21 |
$1,251 |
$0 |
|||||
|
2023 |
88,000 |
65,295 |
7,182 |
0 |
7,182 |
112.46 |
$808 |
$281 |
|||||
|
2022 |
79,500 |
62,186 |
6,839 |
0 |
6,839 |
110.76 |
$758 |
$211 |
|||||
| Property Account Status/Adjustments/Exemptions | ||
|---|---|---|
| Account # | Exemption Description | Amount |
|
R153441015 |
5% Capped Account |
0 |
| Property Deed Transaction History (Recorded in the County Clerk's Office) | ||||||||||
|---|---|---|---|---|---|---|---|---|---|---|
| Date | Type | Book | Page | Price | Grantor | Grantee | ||||
|
7/18/2024 |
|
Mult Parcel |
$1,542,500 |
SPARK BRIXTON LLC |
DAWN HOME BUYERS LLC |
|||||
|
7/28/2023 |
|
Deeds |
$62,000 |
PALMER MICHAEL |
SPARK BRIXTON LLC |
|||||
|
9/30/2014 |
|
Deeds |
$54,000 |
JF PROPERTIES LLC |
PALMER MICHAEL |
|||||
|
5/14/2014 |
|
Deeds |
$30,500 |
BANK OF AMERICA NA |
JF PROPERTIES LLC |
|||||
|
3/6/2014 |
|
Hmstd Off & |
$0 |
SULLIVAN AMELIA A CO TRS MENEFEE LINDA L CO TRS |
BANK OF AMERICA NA |
|||||
| Last Mailed Notice of Value (N.O.V.) Information/History | ||||||||
|---|---|---|---|---|---|---|---|---|
| Year | Date | Market Value | Taxable Market Value | Gross Assessed | Exemption | Net Assessed | ||
|
2026 |
02/06/2026 |
105,500 |
105,500 |
11,605 |
0 |
11,605 |
||
|
2025 |
01/31/2025 |
104,500 |
104,500 |
11,495 |
0 |
11,495 |
||
|
2024 |
01/22/2024 |
97,000 |
97,000 |
10,670 |
0 |
10,670 |
||
|
2023 |
01/23/2023 |
88,000 |
65,295 |
7,182 |
0 |
7,182 |
||
|
2022 |
02/22/2022 |
79,500 |
61,001 |
6,709 |
1,000 |
5,709 |
||
| Property Building Permit History | |||||||||||
|---|---|---|---|---|---|---|---|---|---|---|---|
| Issued | Permit # | Provided by | Bldg # | Description | Est Construction Cost | Status | |||||
| No Building Permit records returned. | |||||||||||
| Click button on building number to access detailed information: | ||||||
|---|---|---|---|---|---|---|
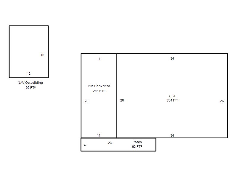
| Bldg # | Vacant/Improved Land | Bldg Description | Year Built | SqFt | # Stories | |
|
1 |
Improved |
Ranch 1 Story |
1955 |
884 |
1 Stories |
|