|
|
|
| Larry Stein Oklahoma County Assessor (405) 713-1200 - Public Access System |
|
|
|
|
|
|
| Real Property Display - Screen Produced 3/28/2026 5:51:08 AM | ||||
|---|---|---|---|---|
| Account: R153441255 | Type: Residential | Location: |
4736 SE 17TH ST |
|
| Building Name/Occupant: |
|
DEL CITY |
||
| Owner Name 1: | HAYS JOHN D JR |
Parcel PIN#: |
1429-15-344-1255 |
|
| Owner Name 2: | 1/4 section #: |
1429 |
||
| Owner Name 3: | Parent Acct: |
|
||
| Billing Address: | 3504 OAK GROVE DR | Tax District: |
|
|
| City, State, Zip | MIDWEST CITY , OK 73110 | School System: |
Mid-Del #52 |
|
|
Country: (If noted) |
Land Size: |
0.1901 Acres |
||
|
Land Value: 26,830 |
|
|||
|
Sect 8-T11N-R2W Qtr NE |
EPPERLY HEIGHTS 8TH
Block
003
Lot
002
|
|||
| Full Legal Description: EPPERLY HEIGHTS 8TH 003 002 |
| Photo & Sketch (if available) | Comp Sales (ordered by relevancy) |
|
||||||||||||||||||
|
||||||||||||||||||||
| Value History (*The County Treasurer 405-713-1300 posts & collects actual tax amounts. Contact information HERE) | |||||||||||||
|---|---|---|---|---|---|---|---|---|---|---|---|---|---|
| Year | Market Value | Taxable Mkt Value | Gross Assessed | Exemption | Net Assessed | Millage | Est. Tax | Tax Savings | |||||
|
2026 |
91,500 |
74,372 |
8,180 |
0 |
8,180 |
114.72 |
$939 |
$216 |
|||||
|
2025 |
88,500 |
70,831 |
7,791 |
0 |
7,791 |
114.72 |
$894 |
$223 |
|||||
|
2024 |
83,500 |
67,459 |
7,420 |
0 |
7,420 |
117.21 |
$870 |
$207 |
|||||
|
2023 |
76,500 |
64,247 |
7,066 |
0 |
7,066 |
112.46 |
$795 |
$152 |
|||||
|
2022 |
70,500 |
61,188 |
6,730 |
0 |
6,730 |
110.76 |
$745 |
$113 |
|||||
| Property Account Status/Adjustments/Exemptions | ||
|---|---|---|
| Account # | Exemption Description | Amount |
|
R153441255 |
5% Capped Account |
0 |
| Property Deed Transaction History (Recorded in the County Clerk's Office) | ||||||||||
|---|---|---|---|---|---|---|---|---|---|---|
| Date | Type | Book | Page | Price | Grantor | Grantee | ||||
|
8/4/1997 |
|
Historical |
$0 |
SECRETARY OF HOUSING |
HAYS JOHN D JR |
|||||
|
4/1/1997 |
|
Historical |
$0 |
UNION PLANTERS NATIONAL BANK |
SECRETARY OF HOUSING |
|||||
|
2/4/1997 |
|
Historical |
$0 |
BARTON JAMES V & DARLA S |
UNION PLANTERS NATIONAL BANK |
|||||
|
12/22/1994 |
|
Historical |
$42,000 |
RIPPEE ALVIN L & HILLARY H |
BARTON JAMES V & DARLA S |
|||||
|
10/1/1986 |
|
Historical |
$39,000 |
KERR-MCGEE CORPORATION |
RIPPEE ALVIN L & HILLARY H |
|||||
| Last Mailed Notice of Value (N.O.V.) Information/History | ||||||||
|---|---|---|---|---|---|---|---|---|
| Year | Date | Market Value | Taxable Market Value | Gross Assessed | Exemption | Net Assessed | ||
|
2026 |
02/06/2026 |
91,500 |
74,372 |
8,180 |
0 |
8,180 |
||
|
2025 |
01/31/2025 |
88,500 |
70,831 |
7,791 |
0 |
7,791 |
||
|
2024 |
01/22/2024 |
83,500 |
67,459 |
7,420 |
0 |
7,420 |
||
|
2023 |
01/23/2023 |
76,500 |
64,247 |
7,066 |
0 |
7,066 |
||
|
2022 |
02/22/2022 |
70,500 |
61,188 |
6,730 |
0 |
6,730 |
||
| Property Building Permit History | |||||||||||
|---|---|---|---|---|---|---|---|---|---|---|---|
| Issued | Permit # | Provided by | Bldg # | Description | Est Construction Cost | Status | |||||
| No Building Permit records returned. | |||||||||||
| Click button on building number to access detailed information: | ||||||
|---|---|---|---|---|---|---|
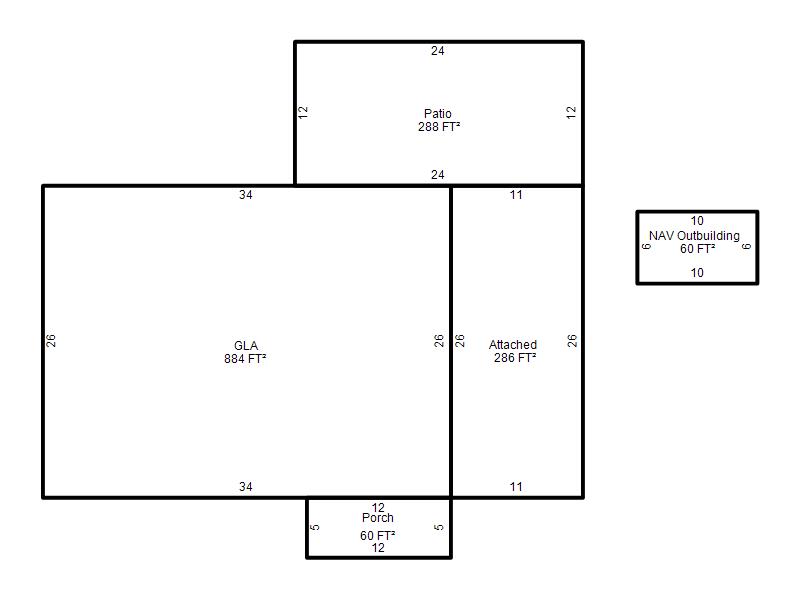
| Bldg # | Vacant/Improved Land | Bldg Description | Year Built | SqFt | # Stories | |
|
1 |
Improved |
Ranch 1 Story |
1955 |
884 |
1 Stories |
|