|
|
|
| Larry Stein Oklahoma County Assessor (405) 713-1200 - Public Access System |
|
|
|
|
|
|
| Real Property Display - Screen Produced 3/28/2026 5:51:08 AM | ||||
|---|---|---|---|---|
| Account: R153441265 | Type: Residential | Location: |
4732 SE 17TH ST |
|
| Building Name/Occupant: |
|
DEL CITY |
||
| Owner Name 1: | ROE CHRISTOPHER M |
Parcel PIN#: |
1429-15-344-1265 |
|
| Owner Name 2: | 1/4 section #: |
1429 |
||
| Owner Name 3: | Parent Acct: |
|
||
| Billing Address: | 4732 SE 17TH ST | Tax District: |
|
|
| City, State, Zip | DEL CITY, OK 73115-3122 | School System: |
Mid-Del #52 |
|
|
Country: (If noted) |
Land Size: |
0.1491 Acres |
||
|
Land Value: 25,254 |
|
|||
|
Sect 8-T11N-R2W Qtr NE |
EPPERLY HEIGHTS 8TH
Block
003
Lot
003
|
|||
| Full Legal Description: EPPERLY HEIGHTS 8TH 003 003 |
| Photo & Sketch (if available) | Comp Sales (ordered by relevancy) |
|
||||||||||||||||||
|
||||||||||||||||||||
| Value History (*The County Treasurer 405-713-1300 posts & collects actual tax amounts. Contact information HERE) | |||||||||||||
|---|---|---|---|---|---|---|---|---|---|---|---|---|---|
| Year | Market Value | Taxable Mkt Value | Gross Assessed | Exemption | Net Assessed | Millage | Est. Tax | Tax Savings | |||||
|
2026 |
135,000 |
101,173 |
11,128 |
0 |
11,128 |
114.72 |
$1,277 |
$427 |
|||||
|
2025 |
134,000 |
96,356 |
10,598 |
0 |
10,598 |
114.72 |
$1,216 |
$475 |
|||||
|
2024 |
125,500 |
91,768 |
10,093 |
0 |
10,093 |
117.21 |
$1,183 |
$435 |
|||||
|
2023 |
111,500 |
87,399 |
9,613 |
0 |
9,613 |
112.46 |
$1,081 |
$298 |
|||||
|
2022 |
101,500 |
83,238 |
9,156 |
0 |
9,156 |
110.76 |
$1,014 |
$222 |
|||||
| Property Account Status/Adjustments/Exemptions | ||
|---|---|---|
| Account # | Exemption Description | Amount |
|
R153441265 |
5% Capped Account |
0 |
| Property Deed Transaction History (Recorded in the County Clerk's Office) | |||||||
|---|---|---|---|---|---|---|---|
| Date | Type | Book | Page | Price | Grantor | Grantee | |
|
10/9/2014 |
|
Deeds |
$70,000 |
MILLIGAN GREGORY ALLEN & BRENDA FAYE |
ROE CHRISTOPHER M |
||
|
10/25/2013 |
|
Deeds |
$6,000 |
WILKINSON FRANKLIN EDGAR WILKINSON JAMES H |
MILLIGAN GREGORY ALLEN & BRENDA FAYE |
||
|
12/7/2012 |
|
Deeds |
$0 |
WILKINSON FRANKLIN EDGAR |
WILKINSON FRANKLIN EDGAR WILKINSON JAMES H |
||
|
9/5/2012 |
|
Deeds |
$0 |
WILKINSON KAY |
WILKINSON FRANKLIN EDGAR |
||
|
11/11/1911 |
|
Historical |
$0 |
|
WILKINSON KAY |
||
| Last Mailed Notice of Value (N.O.V.) Information/History | ||||||||
|---|---|---|---|---|---|---|---|---|
| Year | Date | Market Value | Taxable Market Value | Gross Assessed | Exemption | Net Assessed | ||
|
2026 |
02/06/2026 |
135,000 |
101,173 |
11,128 |
0 |
11,128 |
||
|
2025 |
01/31/2025 |
134,000 |
96,356 |
10,598 |
0 |
10,598 |
||
|
2024 |
01/22/2024 |
125,500 |
91,768 |
10,093 |
0 |
10,093 |
||
|
2023 |
01/23/2023 |
111,500 |
87,399 |
9,613 |
0 |
9,613 |
||
|
2022 |
02/22/2022 |
101,500 |
83,238 |
9,156 |
0 |
9,156 |
||
| Property Building Permit History | |||||||||||
|---|---|---|---|---|---|---|---|---|---|---|---|
| Issued | Permit # | Provided by | Bldg # | Description | Est Construction Cost | Status | |||||
| No Building Permit records returned. | |||||||||||
| Click button on building number to access detailed information: | ||||||
|---|---|---|---|---|---|---|
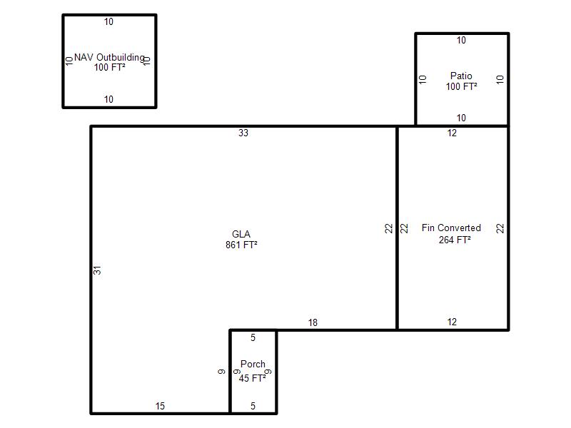
| Bldg # | Vacant/Improved Land | Bldg Description | Year Built | SqFt | # Stories | |
|
1 |
Improved |
Ranch 1 Story |
1955 |
861 |
1 Stories |
|