|
|
|
| Larry Stein Oklahoma County Assessor (405) 713-1200 - Public Access System |
|
|
|
|
|
|
| Real Property Display - Screen Produced 3/28/2026 5:51:08 AM | ||||
|---|---|---|---|---|
| Account: R153441365 | Type: Residential | Location: |
4701 SE 18TH ST |
|
| Building Name/Occupant: |
|
DEL CITY |
||
| Owner Name 1: | COMPLETE HOME RENTALS LLC |
Parcel PIN#: |
1429-15-344-1365 |
|
| Owner Name 2: | 1/4 section #: |
1429 |
||
| Owner Name 3: | Parent Acct: |
|
||
| Billing Address: | 8801 N WESTERN AVE | Tax District: |
|
|
| City, State, Zip | OKLAHOMA CITY, OK 73114-2408 | School System: |
Mid-Del #52 |
|
|
Country: (If noted) |
Land Size: |
0.1792 Acres |
||
|
Land Value: 26,438 |
|
|||
|
Sect 8-T11N-R2W Qtr NE |
EPPERLY HEIGHTS 8TH
Block
003
Lot
012
|
|||
| Full Legal Description: EPPERLY HEIGHTS 8TH 003 012 |
| Photo & Sketch (if available) | Comp Sales (ordered by relevancy) |
|
||||||||||||||||||
|
||||||||||||||||||||
| Value History (*The County Treasurer 405-713-1300 posts & collects actual tax amounts. Contact information HERE) | |||||||||||||
|---|---|---|---|---|---|---|---|---|---|---|---|---|---|
| Year | Market Value | Taxable Mkt Value | Gross Assessed | Exemption | Net Assessed | Millage | Est. Tax | Tax Savings | |||||
|
2026 |
178,000 |
154,109 |
16,951 |
0 |
16,951 |
114.72 |
$1,945 |
$301 |
|||||
|
2025 |
172,000 |
146,771 |
16,144 |
0 |
16,144 |
114.72 |
$1,852 |
$318 |
|||||
|
2024 |
166,500 |
139,782 |
15,375 |
0 |
15,375 |
117.21 |
$1,802 |
$344 |
|||||
|
2023 |
160,000 |
133,126 |
14,643 |
0 |
14,643 |
112.46 |
$1,647 |
$332 |
|||||
|
2022 |
145,500 |
126,787 |
13,946 |
0 |
13,946 |
110.76 |
$1,545 |
$228 |
|||||
| Property Account Status/Adjustments/Exemptions | ||
|---|---|---|
| Account # | Exemption Description | Amount |
|
R153441365 |
5% Capped Account |
0 |
| Property Deed Transaction History (Recorded in the County Clerk's Office) | ||||||||||
|---|---|---|---|---|---|---|---|---|---|---|
| Date | Type | Book | Page | Price | Grantor | Grantee | ||||
|
8/9/2013 |
|
Deeds |
$41,000 |
BANK OF NEW YORK MELLON AS TRS |
COMPLETE HOME RENTALS LLC |
|||||
|
5/17/2013 |
|
Hmstd Off & |
$0 |
SONGER INEZ SONGER JIMMY D |
BANK OF NEW YORK MELLON AS TRS |
|||||
|
5/20/1999 |
|
Hmstd Off & |
$0 |
SONGER INEZ |
SONGER INEZ |
|||||
|
4/21/1999 |
|
Deeds |
$0 |
SONGER JIMMY DARRYL |
SONGER INEZ |
|||||
|
4/10/1995 |
|
Historical |
$0 |
SONGER JAMES A & INEZ |
SONGER JIMMY DARRYL |
|||||
| Last Mailed Notice of Value (N.O.V.) Information/History | ||||||||
|---|---|---|---|---|---|---|---|---|
| Year | Date | Market Value | Taxable Market Value | Gross Assessed | Exemption | Net Assessed | ||
|
2026 |
02/06/2026 |
178,000 |
154,109 |
16,951 |
0 |
16,951 |
||
|
2025 |
01/31/2025 |
172,000 |
146,771 |
16,144 |
0 |
16,144 |
||
|
2024 |
01/22/2024 |
166,500 |
139,782 |
15,375 |
0 |
15,375 |
||
|
2023 |
01/23/2023 |
160,000 |
133,126 |
14,643 |
0 |
14,643 |
||
|
2022 |
02/22/2022 |
145,500 |
126,787 |
13,946 |
0 |
13,946 |
||
| Property Building Permit History | |||||||||||
|---|---|---|---|---|---|---|---|---|---|---|---|
| Issued | Permit # | Provided by | Bldg # | Description | Est Construction Cost | Status | |||||
| No Building Permit records returned. | |||||||||||
| Click button on building number to access detailed information: | ||||||
|---|---|---|---|---|---|---|
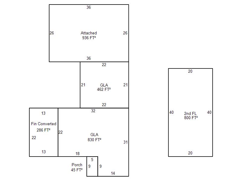
| Bldg # | Vacant/Improved Land | Bldg Description | Year Built | SqFt | # Stories | |
|
1 |
Improved |
2 Story |
1955 |
2,092 |
2 Stories |
|