|
|
|
| Larry Stein Oklahoma County Assessor (405) 713-1200 - Public Access System |
|
|
|
|
|
|
| Real Property Display - Screen Produced 3/28/2026 5:51:08 AM | ||||
|---|---|---|---|---|
| Account: R153441385 | Type: Residential | Location: |
4709 SE 18TH ST |
|
| Building Name/Occupant: |
|
DEL CITY |
||
| Owner Name 1: | D H PROPERTIES LLC |
Parcel PIN#: |
1429-15-344-1385 |
|
| Owner Name 2: | 1/4 section #: |
1429 |
||
| Owner Name 3: | Parent Acct: |
|
||
| Billing Address: | 16045 SE 23RD ST | Tax District: |
|
|
| City, State, Zip | CHOCTAW, OK 73020-6406 | School System: |
Mid-Del #52 |
|
|
Country: (If noted) |
Land Size: |
0.1540 Acres |
||
|
Land Value: 25,458 |
|
|||
|
Sect 8-T11N-R2W Qtr NE |
EPPERLY HEIGHTS 8TH
Block
003
Lot
014
|
|||
| Full Legal Description: EPPERLY HEIGHTS 8TH 003 014 |
| Photo & Sketch (if available) | Comp Sales (ordered by relevancy) |
|
||||||||||||||||||
|
||||||||||||||||||||
| Value History (*The County Treasurer 405-713-1300 posts & collects actual tax amounts. Contact information HERE) | |||||||||||||
|---|---|---|---|---|---|---|---|---|---|---|---|---|---|
| Year | Market Value | Taxable Mkt Value | Gross Assessed | Exemption | Net Assessed | Millage | Est. Tax | Tax Savings | |||||
|
2026 |
101,500 |
79,062 |
8,696 |
0 |
8,696 |
114.72 |
$998 |
$283 |
|||||
|
2025 |
100,000 |
75,298 |
8,282 |
0 |
8,282 |
114.72 |
$950 |
$312 |
|||||
|
2024 |
93,500 |
71,713 |
7,887 |
0 |
7,887 |
117.21 |
$925 |
$281 |
|||||
|
2023 |
85,000 |
68,299 |
7,512 |
0 |
7,512 |
112.46 |
$845 |
$207 |
|||||
|
2022 |
77,000 |
65,047 |
7,154 |
0 |
7,154 |
110.76 |
$793 |
$146 |
|||||
| Property Account Status/Adjustments/Exemptions | ||
|---|---|---|
| Account # | Exemption Description | Amount |
|
R153441385 |
5% Capped Account |
0 |
| Property Deed Transaction History (Recorded in the County Clerk's Office) | ||||||||||
|---|---|---|---|---|---|---|---|---|---|---|
| Date | Type | Book | Page | Price | Grantor | Grantee | ||||
|
1/11/2013 |
|
Deeds |
$22,000 |
MURPHY EMILY ETAL |
DH PROPERTIES LLC |
|||||
|
1/9/2013 |
|
Deeds |
$22,000 |
HIGGINS REBECCA N PER REP ESTATE OF DEBORAH LYNN MURPHY |
D H PROPERTIES LLC |
|||||
|
1/2/2013 |
|
Hmstd Off & |
$0 |
MURPHY DEBORAH ETAL MURPHY EMILY |
HIGGINS REBECCA N PER REP ESTATE OF DEBORAH LYNN MURPHY |
|||||
|
2/9/2009 |
|
Hmstd Off & |
$0 |
MURPHY MICHAEL A |
MURPHY DEBORAH ETAL MURPHY EMILY |
|||||
|
7/10/2006 |
|
Deeds |
$0 |
MURPHY ROBERT J MURPHY MICHAEL A |
MURPHY MICHAEL A |
|||||
| Last Mailed Notice of Value (N.O.V.) Information/History | ||||||||
|---|---|---|---|---|---|---|---|---|
| Year | Date | Market Value | Taxable Market Value | Gross Assessed | Exemption | Net Assessed | ||
|
2026 |
02/06/2026 |
101,500 |
79,062 |
8,696 |
0 |
8,696 |
||
|
2025 |
01/31/2025 |
100,000 |
75,298 |
8,282 |
0 |
8,282 |
||
|
2024 |
01/22/2024 |
93,500 |
71,713 |
7,887 |
0 |
7,887 |
||
|
2023 |
01/23/2023 |
85,000 |
68,299 |
7,512 |
0 |
7,512 |
||
|
2022 |
02/22/2022 |
77,000 |
65,047 |
7,154 |
0 |
7,154 |
||
| Property Building Permit History | |||||||||||
|---|---|---|---|---|---|---|---|---|---|---|---|
| Issued | Permit # | Provided by | Bldg # | Description | Est Construction Cost | Status | |||||
| No Building Permit records returned. | |||||||||||
| Click button on building number to access detailed information: | ||||||
|---|---|---|---|---|---|---|
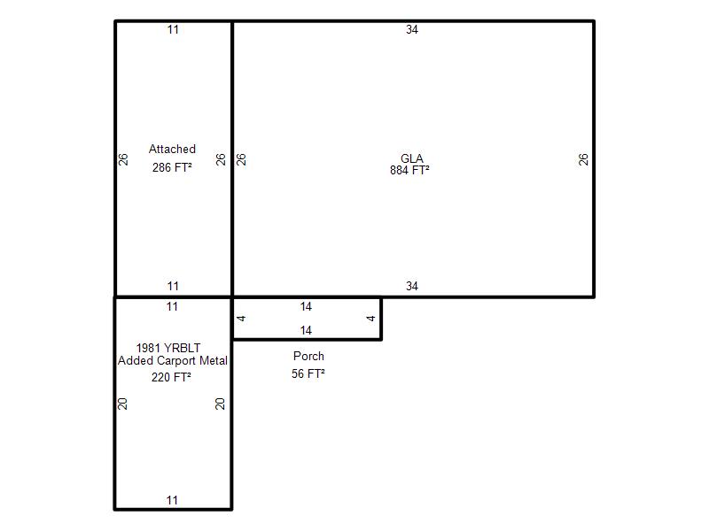
| Bldg # | Vacant/Improved Land | Bldg Description | Year Built | SqFt | # Stories | |
|
1 |
Improved |
Ranch 1 Story |
1955 |
884 |
1 Stories |
|