|
|
|
| Larry Stein Oklahoma County Assessor (405) 713-1200 - Public Access System |
|
|
|
|
|
|
| Real Property Display - Screen Produced 4/6/2026 8:20:54 AM | ||||
|---|---|---|---|---|
| Account: R188411050 | Type: Residential | Location: |
12705 SILVER LN |
|
| Building Name/Occupant: |
|
OKLAHOMA CITY |
||
| Owner Name 1: | BIRNEY PATRICIA TRS |
Parcel PIN#: |
3671-18-841-1050 |
|
| Owner Name 2: | BIRNEY PATRICIA ANN LIVING TRUST | 1/4 section #: |
3671 |
|
| Owner Name 3: | Parent Acct: |
|
||
| Billing Address: | 12705 SILVER LN | Tax District: |
|
|
| City, State, Zip | OKLAHOMA CITY, OK 73120-1743 | School System: |
Oklahoma City #89 |
|
|
Country: (If noted) |
Land Size: |
0.1138 Acres |
||
|
Land Value: 17,838 |
|
|||
|
Sect 18-T13N-R3W Qtr SW |
SILVERTREE
Block
001
Lot
006
|
|||
| Full Legal Description: SILVERTREE 001 006 |
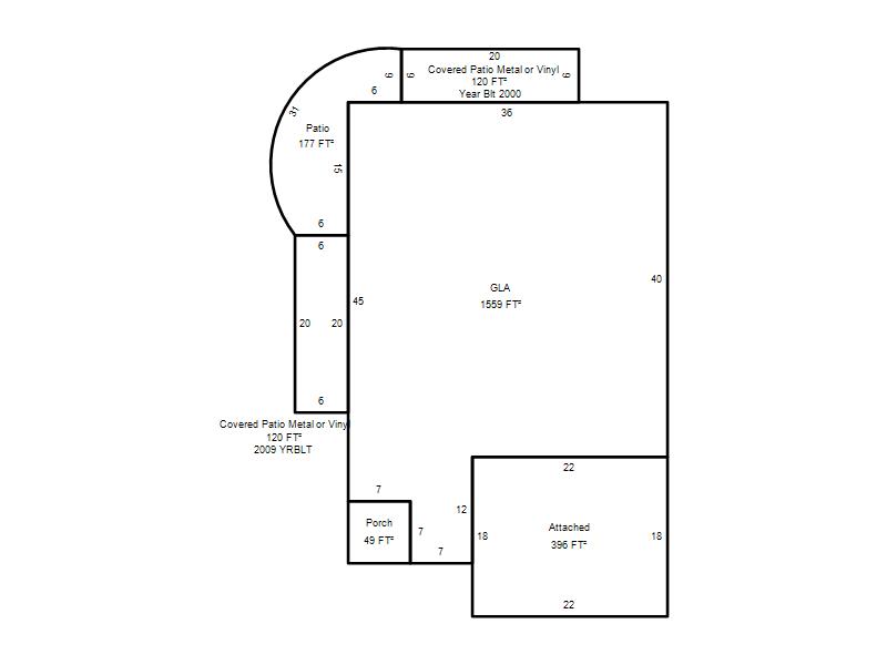
| Photo & Sketch (if available) | Comp Sales (ordered by relevancy) |
|
||||||||||||||||||
|
||||||||||||||||||||
| Value History (*The County Treasurer 405-713-1300 posts & collects actual tax amounts. Contact information HERE) | |||||||||||||
|---|---|---|---|---|---|---|---|---|---|---|---|---|---|
| Year | Market Value | Taxable Mkt Value | Gross Assessed | Exemption | Net Assessed | Millage | Est. Tax | Tax Savings | |||||
|
2026 |
173,500 |
97,588 |
10,734 |
1,000 |
9,734 |
122.90 |
$1,196 |
$1,149 |
|||||
|
2025 |
175,500 |
97,588 |
10,734 |
1,000 |
9,734 |
122.90 |
$1,196 |
$1,176 |
|||||
|
2024 |
186,000 |
97,588 |
10,734 |
1,000 |
9,734 |
123.89 |
$1,206 |
$1,329 |
|||||
|
2023 |
167,000 |
97,588 |
10,734 |
1,000 |
9,734 |
122.82 |
$1,196 |
$1,061 |
|||||
|
2022 |
135,500 |
97,588 |
10,734 |
1,000 |
9,734 |
117.63 |
$1,145 |
$608 |
|||||
| Property Account Status/Adjustments/Exemptions | ||
|---|---|---|
| Account # | Exemption Description | Amount |
|
R188411050 |
Freeze Senior Valuation |
0 |
|
R188411050 |
3% Cap Homestead |
0 |
|
R188411050 |
Homestead |
1,000 |
| Property Deed Transaction History (Recorded in the County Clerk's Office) | ||||||||||
|---|---|---|---|---|---|---|---|---|---|---|
| Date | Type | Book | Page | Price | Grantor | Grantee | ||||
|
7/16/2014 |
|
Deeds |
$0 |
BIRNEY PATRICIA A |
BIRNEY PATRICIA TRS |
|||||
|
3/27/2009 |
|
Deeds |
$97,000 |
SHARPE HAROLD L TRS SHARPE HAROLD L 1998 REV TRUST |
BIRNEY PATRICIA A |
|||||
|
6/3/1998 |
|
Historical |
$0 |
SHARPE HAROLD L |
SHARPE HAROLD L TRS |
|||||
|
6/29/1994 |
|
Historical |
$57,000 |
GOSS ROBERT |
SHARPE HAROLD L |
|||||
|
8/22/1991 |
|
Historical |
$0 |
WRIGHT LOGAN |
GOSS ROBERT |
|||||
| Last Mailed Notice of Value (N.O.V.) Information/History | ||||||||
|---|---|---|---|---|---|---|---|---|
| Year | Date | Market Value | Taxable Market Value | Gross Assessed | Exemption | Net Assessed | ||
|
2024 |
02/13/2024 |
186,000 |
97,588 |
10,734 |
1,000 |
9,734 |
||
|
2023 |
02/14/2023 |
167,000 |
97,588 |
10,734 |
1,000 |
9,734 |
||
|
2022 |
03/15/2022 |
135,500 |
97,588 |
10,734 |
1,000 |
9,734 |
||
|
2021 |
03/19/2021 |
115,500 |
97,588 |
10,734 |
1,000 |
9,734 |
||
|
2020 |
03/10/2020 |
113,000 |
97,588 |
10,734 |
1,000 |
9,734 |
||
| Property Building Permit History | |||||||||||
|---|---|---|---|---|---|---|---|---|---|---|---|
| Issued | Permit # | Provided by | Bldg # | Description | Est Construction Cost | Status | |||||
| No Building Permit records returned. | |||||||||||
| Click button on building number to access detailed information: | ||||||
|---|---|---|---|---|---|---|
| Bldg # | Vacant/Improved Land | Bldg Description | Year Built | SqFt | # Stories | |
|
1 |
Improved |
Duplex One Story |
1985 |
1,559 |
1 Stories |
|