|
|
|
| Larry Stein Oklahoma County Assessor (405) 713-1200 - Public Access System |
|
|
|
|
|
|
| Real Property Display - Screen Produced 3/28/2026 5:51:08 AM | ||||
|---|---|---|---|---|
| Account: R153441495 | Type: Residential | Location: |
4752 SE 18TH ST |
|
| Building Name/Occupant: |
|
DEL CITY |
||
| Owner Name 1: | SMITH DAVID |
Parcel PIN#: |
1429-15-344-1495 |
|
| Owner Name 2: | 1/4 section #: |
1429 |
||
| Owner Name 3: | Parent Acct: |
|
||
| Billing Address: | 4752 SE 18TH ST | Tax District: |
|
|
| City, State, Zip | OKLAHOMA CITY, OK 73115-3124 | School System: |
Mid-Del #52 |
|
|
Country: (If noted) |
Land Size: |
0.2546 Acres |
||
|
Land Value: 28,857 |
|
|||
|
Sect 8-T11N-R2W Qtr NE |
EPPERLY HEIGHTS 8TH
Block
004
Lot
002
|
|||
| Full Legal Description: EPPERLY HEIGHTS 8TH 004 002 |
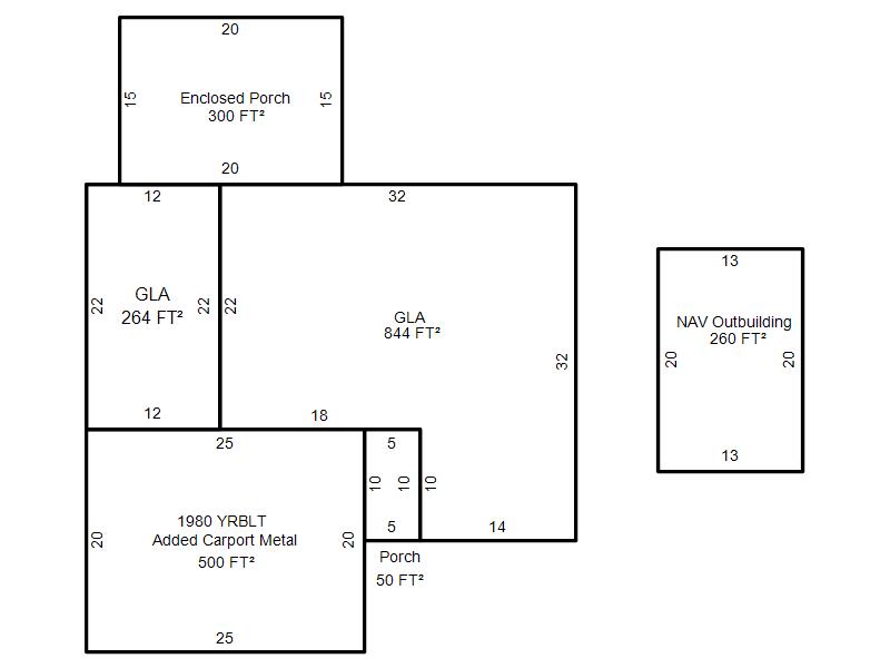
| Photo & Sketch (if available) | Comp Sales (ordered by relevancy) |
|
||||||||||||||||||
|
||||||||||||||||||||
| Value History (*The County Treasurer 405-713-1300 posts & collects actual tax amounts. Contact information HERE) | |||||||||||||
|---|---|---|---|---|---|---|---|---|---|---|---|---|---|
| Year | Market Value | Taxable Mkt Value | Gross Assessed | Exemption | Net Assessed | Millage | Est. Tax | Tax Savings | |||||
|
2026 |
167,500 |
167,500 |
18,425 |
0 |
18,425 |
114.72 |
$2,114 |
$0 |
|||||
|
2025 |
138,000 |
101,462 |
11,160 |
0 |
11,160 |
114.72 |
$1,280 |
$461 |
|||||
|
2024 |
128,000 |
96,631 |
10,629 |
0 |
10,629 |
117.21 |
$1,246 |
$404 |
|||||
|
2023 |
115,500 |
92,030 |
10,123 |
0 |
10,123 |
112.46 |
$1,138 |
$290 |
|||||
|
2022 |
106,500 |
87,648 |
9,641 |
0 |
9,641 |
110.76 |
$1,068 |
$230 |
|||||
| Property Account Status/Adjustments/Exemptions | ||||||
|---|---|---|---|---|---|---|
| Account # | Exemption Description | Amount | ||||
| No adjustment/exemption records returned. | ||||||
| Property Deed Transaction History (Recorded in the County Clerk's Office) | ||||||||||
|---|---|---|---|---|---|---|---|---|---|---|
| Date | Type | Book | Page | Price | Grantor | Grantee | ||||
|
11/17/2025 |
|
Hmstd Off & |
$0 |
RINDERER NATALIE |
NNH PROPERTIES LLC |
|||||
|
11/17/2025 |
|
Deeds |
$165,000 |
NNH PROPERTIES LLC |
SMITH DAVID |
|||||
|
10/3/2023 |
|
Hmstd Off & |
$0 |
RINDERER NATALIE |
NNH PROPERTIES LLC |
|||||
|
8/24/2023 |
|
Hmstd Off & |
$0 |
HOLLAND EDWARD JAMES |
HOLLAND NATALIE NICOLE |
|||||
|
4/6/2015 |
|
Other |
$0 |
DEPARTMENT OF HOUSING & URBAN DEV |
RINDERER NATALIE |
|||||
| Last Mailed Notice of Value (N.O.V.) Information/History | ||||||||
|---|---|---|---|---|---|---|---|---|
| Year | Date | Market Value | Taxable Market Value | Gross Assessed | Exemption | Net Assessed | ||
|
2026 |
02/06/2026 |
167,500 |
167,500 |
18,425 |
0 |
18,425 |
||
|
2025 |
01/31/2025 |
138,000 |
101,462 |
11,160 |
0 |
11,160 |
||
|
2024 |
01/22/2024 |
128,000 |
96,631 |
10,629 |
0 |
10,629 |
||
|
2023 |
01/23/2023 |
115,500 |
92,030 |
10,123 |
0 |
10,123 |
||
|
2022 |
02/22/2022 |
106,500 |
87,648 |
9,641 |
0 |
9,641 |
||
| Property Building Permit History | |||||||||||
|---|---|---|---|---|---|---|---|---|---|---|---|
| Issued | Permit # | Provided by | Bldg # | Description | Est Construction Cost | Status | |||||
| No Building Permit records returned. | |||||||||||
| Click button on building number to access detailed information: | ||||||
|---|---|---|---|---|---|---|
| Bldg # | Vacant/Improved Land | Bldg Description | Year Built | SqFt | # Stories | |
|
1 |
Improved |
Ranch 1 Story |
1955 |
1,108 |
1 Stories |
|