|
|
|
| Larry Stein Oklahoma County Assessor (405) 713-1200 - Public Access System |
|
|
|
|
|
|
| Real Property Display - Screen Produced 4/2/2026 7:19:10 AM | ||||
|---|---|---|---|---|
| Account: R109313130 | Type: Residential | Location: |
2217 NW 120TH ST |
|
| Building Name/Occupant: |
|
OKLAHOMA CITY |
||
| Owner Name 1: | STYRON KATIE |
Parcel PIN#: |
3673-10-931-3130 |
|
| Owner Name 2: | STYRON BENJAMIN | 1/4 section #: |
3673 |
|
| Owner Name 3: | Parent Acct: |
|
||
| Billing Address: | 2217 NW 120TH ST | Tax District: |
|
|
| City, State, Zip | OKLAHOMA CITY, OK 73120 | School System: |
Oklahoma City #89 |
|
|
Country: (If noted) |
UNITED STATES |
Land Size: |
0.2292 Acres |
|
|
Land Value: 37,440 |
|
|||
|
Sect 19-T13N-R3W Qtr NE |
CAMELOT ESTATES
Block
012
Lot
002
|
|||
| Full Legal Description: CAMELOT ESTATES 012 002 |
| Photo & Sketch (if available) | Comp Sales (ordered by relevancy) |
|
||||||||||||||||||
|
||||||||||||||||||||
| Value History (*The County Treasurer 405-713-1300 posts & collects actual tax amounts. Contact information HERE) | |||||||||||||
|---|---|---|---|---|---|---|---|---|---|---|---|---|---|
| Year | Market Value | Taxable Mkt Value | Gross Assessed | Exemption | Net Assessed | Millage | Est. Tax | Tax Savings | |||||
|
2026 |
270,000 |
270,000 |
29,700 |
1,000 |
28,700 |
122.90 |
$3,527 |
$123 |
|||||
|
2025 |
225,000 |
225,000 |
24,750 |
0 |
24,750 |
122.90 |
$3,042 |
$0 |
|||||
|
2024 |
227,000 |
170,150 |
18,716 |
1,000 |
17,716 |
123.89 |
$2,195 |
$899 |
|||||
|
2023 |
217,000 |
165,195 |
18,171 |
1,000 |
17,171 |
122.82 |
$2,109 |
$823 |
|||||
|
2022 |
199,500 |
160,384 |
17,640 |
1,000 |
16,640 |
117.63 |
$1,958 |
$624 |
|||||
| Property Account Status/Adjustments/Exemptions | ||
|---|---|---|
| Account # | Exemption Description | Amount |
|
R109313130 |
Homestead |
1,000 |
| Property Deed Transaction History (Recorded in the County Clerk's Office) | ||||||||||
|---|---|---|---|---|---|---|---|---|---|---|
| Date | Type | Book | Page | Price | Grantor | Grantee | ||||
|
2/18/2025 |
|
Deeds |
$275,000 |
SIGNATURE PROPERTY GROUP LLC |
STYRON KATIE |
|||||
|
12/2/2024 |
|
Deeds |
$150,000 |
STB INVESTMENT GROUP LLC |
SIGNATURE PROPERTY GROUP LLC |
|||||
|
11/15/2024 |
|
Deeds |
$105,000 |
JOHNSON JAMES |
STB INVESTMENT GROUP LLC |
|||||
|
11/13/2010 |
|
Deeds |
$0 |
GREENE VIOLET P |
JOHNSON JAMES M |
|||||
|
11/20/2001 |
|
Deeds |
$0 |
JOHNSON JAMES M & VIOLET |
JOHNSON JAMES |
|||||
| Last Mailed Notice of Value (N.O.V.) Information/History | ||||||||
|---|---|---|---|---|---|---|---|---|
| Year | Date | Market Value | Taxable Market Value | Gross Assessed | Exemption | Net Assessed | ||
|
2026 |
02/23/2026 |
270,000 |
270,000 |
29,700 |
1,000 |
28,700 |
||
|
2025 |
02/14/2025 |
225,000 |
225,000 |
24,750 |
0 |
24,750 |
||
|
2025 |
03/28/2025 |
225,000 |
225,000 |
24,750 |
0 |
24,750 |
||
|
2024 |
02/13/2024 |
227,000 |
170,150 |
18,716 |
1,000 |
17,716 |
||
|
2023 |
02/14/2023 |
217,000 |
165,195 |
18,171 |
1,000 |
17,171 |
||
| Property Building Permit History | |||||||||||
|---|---|---|---|---|---|---|---|---|---|---|---|
| Issued | Permit # | Provided by | Bldg # | Description | Est Construction Cost | Status | |||||
| No Building Permit records returned. | |||||||||||
| Click button on building number to access detailed information: | ||||||
|---|---|---|---|---|---|---|
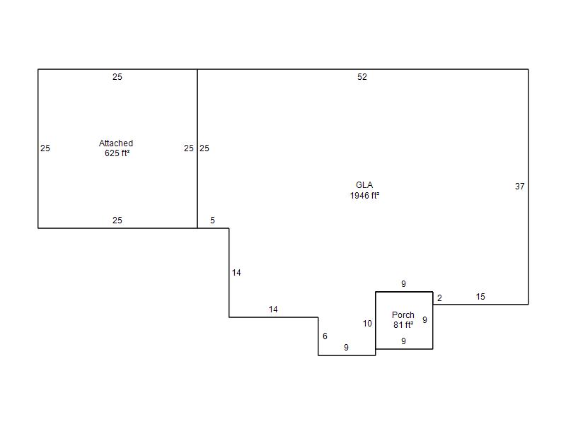
| Bldg # | Vacant/Improved Land | Bldg Description | Year Built | SqFt | # Stories | |
|
1 |
Improved |
Ranch 1 Story |
1976 |
1,946 |
1 Stories |
|