|
|
|
| Larry Stein Oklahoma County Assessor (405) 713-1200 - Public Access System |
|
|
|
|
|
|
| Real Property Display - Screen Produced 4/1/2026 7:36:37 AM | ||||
|---|---|---|---|---|
| Account: R122894080 | Type: Residential | Location: |
11130 STRATFORD DR, Unit 408 |
|
| Building Name/Occupant: |
|
OKLAHOMA CITY |
||
| Owner Name 1: | R & N INVESTMENTS LLC |
Parcel PIN#: |
3674-12-289-4080 |
|
| Owner Name 2: | 1/4 section #: |
3674 |
||
| Owner Name 3: | Parent Acct: |
|
||
| Billing Address: | PO BOX 21286 | Tax District: |
|
|
| City, State, Zip | OKLAHOMA CITY, OK 73156 | School System: |
Oklahoma City #89 |
|
|
Country: (If noted) |
Land Size: |
1.0000 Square Feet |
||
|
Land Value: 8,325 |
|
|||
|
Sect 19-T13N-R3W Qtr SE |
STRATFORD PLACE CONDOMINIUM
Block
000
Lot
000
|
|||
| Full Legal Description: STRATFORD PLACE CONDOMINIUM 000 000 UNIT 408 |
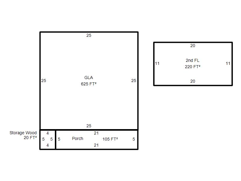
| Photo & Sketch (if available) | Comp Sales (ordered by relevancy) |
|
||||||||||||||||||
|
||||||||||||||||||||
| Value History (*The County Treasurer 405-713-1300 posts & collects actual tax amounts. Contact information HERE) | |||||||||||||
|---|---|---|---|---|---|---|---|---|---|---|---|---|---|
| Year | Market Value | Taxable Mkt Value | Gross Assessed | Exemption | Net Assessed | Millage | Est. Tax | Tax Savings | |||||
|
2026 |
93,500 |
93,500 |
10,285 |
0 |
10,285 |
122.90 |
$1,264 |
$0 |
|||||
|
2025 |
89,500 |
89,500 |
9,845 |
0 |
9,845 |
122.90 |
$1,210 |
$0 |
|||||
|
2024 |
90,000 |
90,000 |
9,900 |
0 |
9,900 |
123.89 |
$1,227 |
$0 |
|||||
|
2023 |
78,000 |
63,525 |
6,987 |
0 |
6,987 |
122.82 |
$858 |
$196 |
|||||
|
2022 |
60,500 |
60,500 |
6,655 |
0 |
6,655 |
117.63 |
$783 |
$0 |
|||||
| Property Account Status/Adjustments/Exemptions | ||
|---|---|---|
| Account # | Exemption Description | Amount |
|
R122894080 |
5% Capped Account |
0 |
| Property Deed Transaction History (Recorded in the County Clerk's Office) | ||||||||||
|---|---|---|---|---|---|---|---|---|---|---|
| Date | Type | Book | Page | Price | Grantor | Grantee | ||||
|
5/30/2023 |
|
Deeds |
$78,000 |
NATALE RONALD |
R & N INVESTMENTS LLC |
|||||
|
5/21/2021 |
|
Deeds |
$63,000 |
R & N INVESTMENTS |
NATALE RONALD |
|||||
|
3/26/2014 |
|
Deeds |
$37,000 |
GUZMAN ERME LINDA MARTINEZ CARLOS |
R & N INVESTMENTS |
|||||
|
12/14/2005 |
|
Deeds |
$42,500 |
WEBBY PROPERTIES LLC |
GUZMAN ERME LINDA MARTINEZ CARLOS |
|||||
|
12/1/2004 |
|
Other |
$0 |
WEBSTER RANDY L & CHARISSE M HEWITT |
WEBBY PROPERTIES LLC |
|||||
| Last Mailed Notice of Value (N.O.V.) Information/History | ||||||||
|---|---|---|---|---|---|---|---|---|
| Year | Date | Market Value | Taxable Market Value | Gross Assessed | Exemption | Net Assessed | ||
|
2026 |
02/23/2026 |
93,500 |
93,500 |
10,285 |
0 |
10,285 |
||
|
2024 |
02/13/2024 |
90,000 |
90,000 |
9,900 |
0 |
9,900 |
||
|
2023 |
02/14/2023 |
78,000 |
63,525 |
6,987 |
0 |
6,987 |
||
|
2022 |
03/15/2022 |
60,500 |
60,500 |
6,655 |
0 |
6,655 |
||
|
2021 |
03/19/2021 |
57,500 |
56,700 |
6,237 |
0 |
6,237 |
||
| Property Building Permit History | |||||||||||
|---|---|---|---|---|---|---|---|---|---|---|---|
| Issued | Permit # | Provided by | Bldg # | Description | Est Construction Cost | Status | |||||
| No Building Permit records returned. | |||||||||||
| Click button on building number to access detailed information: | ||||||
|---|---|---|---|---|---|---|
| Bldg # | Vacant/Improved Land | Bldg Description | Year Built | SqFt | # Stories | |
|
1 |
Improved |
Condo <= 3 Stories |
1984 |
845 |
1.5 Stories |
|