|
|
|
| Larry Stein Oklahoma County Assessor (405) 713-1200 - Public Access System |
|
|
|
|
|
|
| Real Property Display - Screen Produced 4/1/2026 1:19:44 PM | ||||
|---|---|---|---|---|
| Account: R130701130 | Type: Residential | Location: |
2416 NW 109TH ST |
|
| Building Name/Occupant: |
|
OKLAHOMA CITY |
||
| Owner Name 1: | VANEK ROBERT D TRS |
Parcel PIN#: |
3674-13-070-1130 |
|
| Owner Name 2: | VANEK MARIDALE TRS | 1/4 section #: |
3674 |
|
| Owner Name 3: | VANEK ROBERT D & MARIDALE LIV TRUST | Parent Acct: |
|
|
| Billing Address: | 2416 NW 109TH ST | Tax District: |
|
|
| City, State, Zip | OKLAHOMA CITY, OK 73120 | School System: |
Oklahoma City #89 |
|
|
Country: (If noted) |
Land Size: |
0.1791 Acres |
||
|
Land Value: 27,690 |
|
|||
|
Sect 19-T13N-R3W Qtr SE |
CASADY TERRACE
Block
001
Lot
014
|
|||
| Full Legal Description: CASADY TERRACE 001 014 |
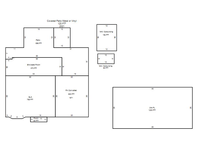
| Photo & Sketch (if available) | Comp Sales (ordered by relevancy) |
|
||||||||||||||||||
|
||||||||||||||||||||
| Value History (*The County Treasurer 405-713-1300 posts & collects actual tax amounts. Contact information HERE) | |||||||||||||
|---|---|---|---|---|---|---|---|---|---|---|---|---|---|
| Year | Market Value | Taxable Mkt Value | Gross Assessed | Exemption | Net Assessed | Millage | Est. Tax | Tax Savings | |||||
|
2026 |
212,000 |
149,987 |
16,498 |
1,000 |
15,498 |
122.90 |
$1,905 |
$961 |
|||||
|
2025 |
202,000 |
145,619 |
16,017 |
1,000 |
15,017 |
122.90 |
$1,846 |
$885 |
|||||
|
2024 |
200,000 |
141,378 |
15,550 |
1,000 |
14,550 |
123.89 |
$1,803 |
$923 |
|||||
|
2023 |
182,500 |
137,261 |
15,098 |
1,000 |
14,098 |
122.82 |
$1,732 |
$734 |
|||||
|
2022 |
155,000 |
133,264 |
14,657 |
1,000 |
13,657 |
117.63 |
$1,607 |
$399 |
|||||
| Property Account Status/Adjustments/Exemptions | ||
|---|---|---|
| Account # | Exemption Description | Amount |
|
R130701130 |
3% Cap Homestead |
0 |
|
R130701130 |
Homestead |
1,000 |
| Property Deed Transaction History (Recorded in the County Clerk's Office) | |||||||
|---|---|---|---|---|---|---|---|
| Date | Type | Book | Page | Price | Grantor | Grantee | |
|
5/10/2022 |
|
Deeds |
$0 |
VANEK ROBERT D & MARIDALE S |
VANEK ROBERT D TRS |
||
|
1/1/1984 |
|
Historical |
$75,000 |
|
VANEK ROBERT D & MARIDALE S |
||
| Last Mailed Notice of Value (N.O.V.) Information/History | ||||||||
|---|---|---|---|---|---|---|---|---|
| Year | Date | Market Value | Taxable Market Value | Gross Assessed | Exemption | Net Assessed | ||
|
2026 |
02/23/2026 |
212,000 |
149,987 |
16,498 |
1,000 |
15,498 |
||
|
2025 |
02/14/2025 |
202,000 |
145,619 |
16,017 |
1,000 |
15,017 |
||
|
2024 |
02/13/2024 |
200,000 |
141,378 |
15,550 |
1,000 |
14,550 |
||
|
2023 |
02/14/2023 |
182,500 |
137,261 |
15,098 |
1,000 |
14,098 |
||
|
2022 |
03/15/2022 |
155,000 |
133,264 |
14,657 |
1,000 |
13,657 |
||
| Property Building Permit History | |||||||||||
|---|---|---|---|---|---|---|---|---|---|---|---|
| Issued | Permit # | Provided by | Bldg # | Description | Est Construction Cost | Status | |||||
| No Building Permit records returned. | |||||||||||
| Click button on building number to access detailed information: | ||||||
|---|---|---|---|---|---|---|
| Bldg # | Vacant/Improved Land | Bldg Description | Year Built | SqFt | # Stories | |
|
1 |
Improved |
2 Story |
1963 |
1,958 |
2 Stories |
|