|
|
|
| Larry Stein Oklahoma County Assessor (405) 713-1200 - Public Access System |
|
|
|
|
|
|
| Real Property Display - Screen Produced 4/2/2026 10:50:20 PM | ||||
|---|---|---|---|---|
| Account: R121351101 | Type: Residential | Location: |
11500 N MAY AVE, Unit A 101 |
|
| Building Name/Occupant: |
|
OKLAHOMA CITY |
||
| Owner Name 1: | HOWEIL LEAANN |
Parcel PIN#: |
3675-12-135-1101 |
|
| Owner Name 2: | 1/4 section #: |
3675 |
||
| Owner Name 3: | Parent Acct: |
|
||
| Billing Address: | 11500 N MAY AVE, Unit A101 | Tax District: |
|
|
| City, State, Zip | OKLAHOMA CITY, OK 73120 | School System: |
Oklahoma City #89 |
|
|
Country: (If noted) |
Land Size: |
1.0000 Square Feet |
||
|
Land Value: 7,275 |
|
|||
|
Sect 19-T13N-R3W Qtr SW |
SUMMIT CONDOS AT QUAIL RIDGE
Block
000
Lot
000
|
|||
| Full Legal Description: SUMMIT CONDOS AT QUAIL RIDGE 000 000 UNIT A101 |
| Photo & Sketch (if available) | Comp Sales (ordered by relevancy) |
|
||||||||||||||||||
|
||||||||||||||||||||
| Value History (*The County Treasurer 405-713-1300 posts & collects actual tax amounts. Contact information HERE) | |||||||||||||
|---|---|---|---|---|---|---|---|---|---|---|---|---|---|
| Year | Market Value | Taxable Mkt Value | Gross Assessed | Exemption | Net Assessed | Millage | Est. Tax | Tax Savings | |||||
|
2026 |
103,500 |
103,500 |
11,385 |
0 |
11,385 |
122.90 |
$1,399 |
$0 |
|||||
|
2025 |
78,500 |
69,825 |
7,680 |
0 |
7,680 |
122.90 |
$944 |
$117 |
|||||
|
2024 |
66,500 |
66,500 |
7,315 |
0 |
7,315 |
123.89 |
$906 |
$0 |
|||||
|
2023 |
64,500 |
49,061 |
5,395 |
0 |
5,395 |
122.82 |
$663 |
$209 |
|||||
|
2022 |
49,500 |
46,725 |
5,139 |
0 |
5,139 |
117.63 |
$605 |
$36 |
|||||
| Property Account Status/Adjustments/Exemptions | ||||||
|---|---|---|---|---|---|---|
| Account # | Exemption Description | Amount | ||||
| No adjustment/exemption records returned. | ||||||
| Property Deed Transaction History (Recorded in the County Clerk's Office) | ||||||||||
|---|---|---|---|---|---|---|---|---|---|---|
| Date | Type | Book | Page | Price | Grantor | Grantee | ||||
|
3/7/2025 |
|
Deeds |
$111,500 |
VIVA BOYS LLC |
HOWEIL LEAANN |
|||||
|
8/1/2024 |
|
Hmstd Off & |
$0 |
DONLEY FRED & JULIE |
VIVA BOYS LLC |
|||||
|
10/17/2023 |
|
Mult Parcel |
$786,000 |
RUBIN BEVERLY |
DONLEY FRED & JULIE |
|||||
|
12/28/2018 |
|
Hmstd Off & |
$0 |
RUBIN MEL & BEVERLY |
RUBIN BEVERLY |
|||||
|
12/28/2018 |
|
Hmstd Off & |
$0 |
RUBIN BEVERLY |
RUBIN BEVERLY |
|||||
| Last Mailed Notice of Value (N.O.V.) Information/History | ||||||||
|---|---|---|---|---|---|---|---|---|
| Year | Date | Market Value | Taxable Market Value | Gross Assessed | Exemption | Net Assessed | ||
|
2026 |
02/23/2026 |
103,500 |
103,500 |
11,385 |
0 |
11,385 |
||
|
2025 |
02/14/2025 |
78,500 |
69,825 |
7,680 |
0 |
7,680 |
||
|
2024 |
02/13/2024 |
66,500 |
66,500 |
7,315 |
0 |
7,315 |
||
|
2023 |
02/14/2023 |
64,500 |
49,061 |
5,395 |
0 |
5,395 |
||
|
2022 |
03/15/2022 |
49,500 |
46,725 |
5,139 |
0 |
5,139 |
||
| Property Building Permit History | |||||||||||
|---|---|---|---|---|---|---|---|---|---|---|---|
| Issued | Permit # | Provided by | Bldg # | Description | Est Construction Cost | Status | |||||
| No Building Permit records returned. | |||||||||||
| Click button on building number to access detailed information: | ||||||
|---|---|---|---|---|---|---|
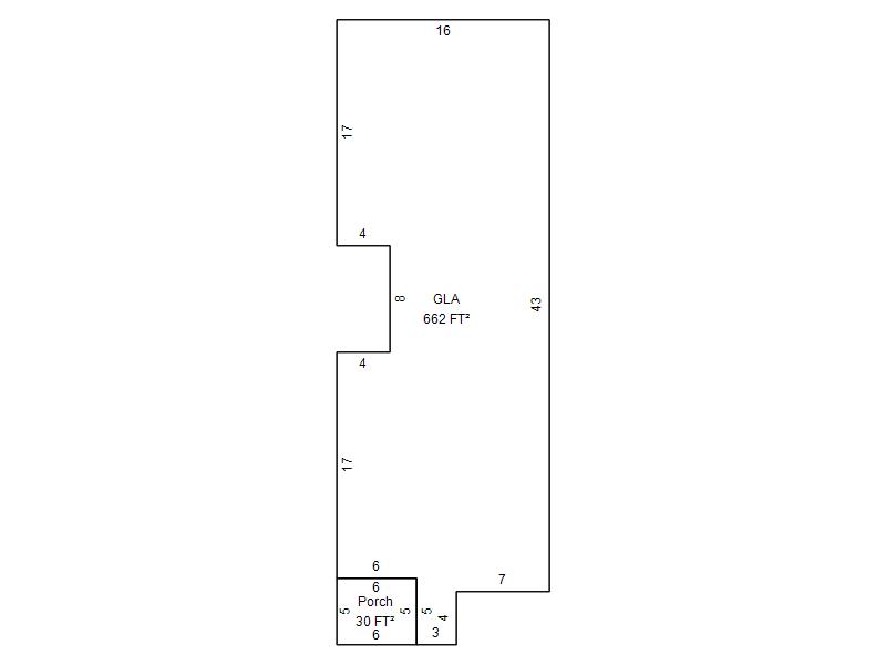
| Bldg # | Vacant/Improved Land | Bldg Description | Year Built | SqFt | # Stories | |
|
1 |
Improved |
Condo <= 3 Stories |
1982 |
662 |
1 Stories |
|