|
|
|
| Larry Stein Oklahoma County Assessor (405) 713-1200 - Public Access System |
|
|
|
|
|
|
| Real Property Display - Screen Produced 4/9/2026 5:41:50 AM | ||||
|---|---|---|---|---|
| Account: R131611305 | Type: Residential | Location: |
2501 W HEFNER RD |
|
| Building Name/Occupant: |
|
OKLAHOMA CITY |
||
| Owner Name 1: | BUTLER DERRICK TYRONE JR |
Parcel PIN#: |
3675-13-161-1305 |
|
| Owner Name 2: | 1/4 section #: |
3675 |
||
| Owner Name 3: | Parent Acct: |
|
||
| Billing Address: | 2501 W HEFNER RD | Tax District: |
|
|
| City, State, Zip | OKLAHOMA CITY, OK 73120-7131 | School System: |
Oklahoma City #89 |
|
|
Country: (If noted) |
Land Size: |
1.0000 Square Feet |
||
|
Land Value: 12,900 |
|
|||
|
Sect 19-T13N-R3W Qtr SW |
CASADY SUBURBAN HTS REPLAT
Block
002
Lot
000
|
|||
| Full Legal Description: CASADY SUBURBAN HTS REPLAT 002 000 UNIT 2501 HEFNER PARK ROW CONDOMINIUMS SITUATED ON E.5FT OFLOT 20 & ALL OF LOTS 21 THRU 26 |
| Photo & Sketch (if available) | Comp Sales (ordered by relevancy) |
|
||||||||||||||||||
|
||||||||||||||||||||
| Value History (*The County Treasurer 405-713-1300 posts & collects actual tax amounts. Contact information HERE) | |||||||||||||
|---|---|---|---|---|---|---|---|---|---|---|---|---|---|
| Year | Market Value | Taxable Mkt Value | Gross Assessed | Exemption | Net Assessed | Millage | Est. Tax | Tax Savings | |||||
|
2026 |
136,500 |
128,625 |
14,148 |
0 |
14,148 |
122.90 |
$1,739 |
$106 |
|||||
|
2025 |
122,500 |
122,500 |
13,475 |
0 |
13,475 |
122.90 |
$1,656 |
$0 |
|||||
|
2024 |
122,000 |
122,000 |
13,420 |
0 |
13,420 |
123.89 |
$1,663 |
$0 |
|||||
|
2023 |
117,000 |
95,550 |
10,510 |
0 |
10,510 |
122.82 |
$1,291 |
$290 |
|||||
|
2022 |
91,000 |
91,000 |
10,010 |
0 |
10,010 |
117.63 |
$1,177 |
$0 |
|||||
| Property Account Status/Adjustments/Exemptions | ||
|---|---|---|
| Account # | Exemption Description | Amount |
|
R131611305 |
5% Capped Account |
0 |
| Property Deed Transaction History (Recorded in the County Clerk's Office) | ||||||||||
|---|---|---|---|---|---|---|---|---|---|---|
| Date | Type | Book | Page | Price | Grantor | Grantee | ||||
|
10/19/2023 |
|
Deeds |
$80,000 |
NOLAN SHARON C |
BUTLER DERRICK TYRONE JR |
|||||
|
5/30/2000 |
|
Deeds |
$64,000 |
HOPKINS TRUST |
NOLAN SHARON C |
|||||
|
9/24/1996 |
|
Historical |
$0 |
KELLEY BILL L |
HOPKINS TRUST |
|||||
|
1/26/1996 |
|
Historical |
$45,500 |
KELLEY BILL L |
KELLEY BILL L |
|||||
|
10/2/1995 |
|
Historical |
$124,500 |
MCMULLEN ALFRED H |
KELLEY BILL L |
|||||
| Last Mailed Notice of Value (N.O.V.) Information/History | ||||||||
|---|---|---|---|---|---|---|---|---|
| Year | Date | Market Value | Taxable Market Value | Gross Assessed | Exemption | Net Assessed | ||
|
2026 |
02/23/2026 |
136,500 |
128,625 |
14,148 |
0 |
14,148 |
||
|
2025 |
02/14/2025 |
122,500 |
122,500 |
13,475 |
0 |
13,475 |
||
|
2024 |
02/13/2024 |
122,000 |
122,000 |
13,420 |
0 |
13,420 |
||
|
2023 |
02/14/2023 |
117,000 |
95,550 |
10,510 |
0 |
10,510 |
||
|
2022 |
03/15/2022 |
91,000 |
91,000 |
10,010 |
0 |
10,010 |
||
| Property Building Permit History | |||||||||||
|---|---|---|---|---|---|---|---|---|---|---|---|
| Issued | Permit # | Provided by | Bldg # | Description | Est Construction Cost | Status | |||||
| No Building Permit records returned. | |||||||||||
| Click button on building number to access detailed information: | ||||||
|---|---|---|---|---|---|---|
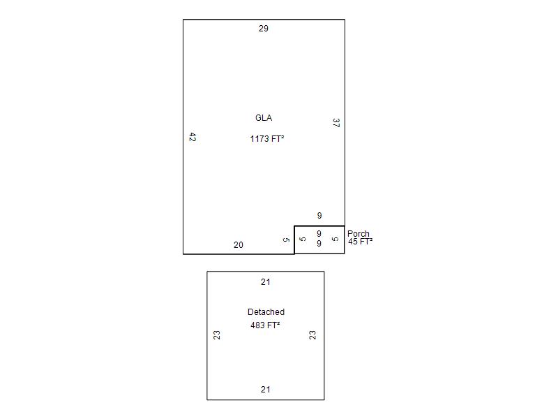
| Bldg # | Vacant/Improved Land | Bldg Description | Year Built | SqFt | # Stories | |
|
1 |
Improved |
Condo <= 3 Stories |
1978 |
1,173 |
1 Stories |
|