|
|
|
| Larry Stein Oklahoma County Assessor (405) 713-1200 - Public Access System |
|
|
|
|
|
|
| Real Property Display - Screen Produced 4/3/2026 6:41:06 AM | ||||
|---|---|---|---|---|
| Account: R101511255 | Type: Residential | Location: |
11013 N FLORIDA AVE |
|
| Building Name/Occupant: |
|
OKLAHOMA CITY |
||
| Owner Name 1: | HAND BRADLEY |
Parcel PIN#: |
3679-10-151-1255 |
|
| Owner Name 2: | 1/4 section #: |
3679 |
||
| Owner Name 3: | Parent Acct: |
|
||
| Billing Address: | 11013 N FLORIDA AVE | Tax District: |
|
|
| City, State, Zip | OKLAHOMA CITY, OK 73120-7925 | School System: |
Oklahoma City #89 |
|
|
Country: (If noted) |
Land Size: |
0.1512 Acres |
||
|
Land Value: 28,328 |
|
|||
|
Sect 20-T13N-R3W Qtr SW |
BEL AIR PARK
Block
002
Lot
012
|
|||
| Full Legal Description: BEL AIR PARK 002 012 |
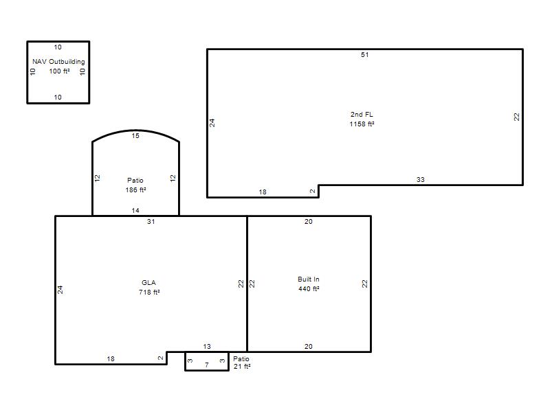
| Photo & Sketch (if available) | Comp Sales (ordered by relevancy) |
|
||||||||||||||||||
|
||||||||||||||||||||
| Value History (*The County Treasurer 405-713-1300 posts & collects actual tax amounts. Contact information HERE) | |||||||||||||
|---|---|---|---|---|---|---|---|---|---|---|---|---|---|
| Year | Market Value | Taxable Mkt Value | Gross Assessed | Exemption | Net Assessed | Millage | Est. Tax | Tax Savings | |||||
|
2026 |
190,500 |
142,686 |
15,695 |
1,000 |
14,695 |
122.90 |
$1,806 |
$769 |
|||||
|
2025 |
186,000 |
138,531 |
15,237 |
1,000 |
14,237 |
122.90 |
$1,750 |
$765 |
|||||
|
2024 |
180,500 |
134,497 |
14,793 |
1,000 |
13,793 |
123.89 |
$1,709 |
$751 |
|||||
|
2023 |
174,000 |
130,580 |
14,363 |
1,000 |
13,363 |
122.82 |
$1,641 |
$709 |
|||||
|
2022 |
139,500 |
126,777 |
13,945 |
1,000 |
12,945 |
117.63 |
$1,523 |
$282 |
|||||
| Property Account Status/Adjustments/Exemptions | ||
|---|---|---|
| Account # | Exemption Description | Amount |
|
R101511255 |
3% Cap Homestead |
0 |
|
R101511255 |
Homestead |
1,000 |
| Property Deed Transaction History (Recorded in the County Clerk's Office) | |||||||
|---|---|---|---|---|---|---|---|
| Date | Type | Book | Page | Price | Grantor | Grantee | |
|
11/23/2016 |
|
Deeds |
$108,000 |
FLEMING LEE EDWARD & ROBBIE C |
HAND BRADLEY |
||
|
11/1/1985 |
|
Historical |
$68,000 |
|
FLEMING LEE EDWARD & ROBBIE C |
||
| Last Mailed Notice of Value (N.O.V.) Information/History | ||||||||
|---|---|---|---|---|---|---|---|---|
| Year | Date | Market Value | Taxable Market Value | Gross Assessed | Exemption | Net Assessed | ||
|
2026 |
02/23/2026 |
190,500 |
142,686 |
15,695 |
1,000 |
14,695 |
||
|
2025 |
02/14/2025 |
186,000 |
138,531 |
15,237 |
1,000 |
14,237 |
||
|
2024 |
02/13/2024 |
180,500 |
134,497 |
14,793 |
1,000 |
13,793 |
||
|
2023 |
02/14/2023 |
174,000 |
130,580 |
14,363 |
1,000 |
13,363 |
||
|
2022 |
03/15/2022 |
139,500 |
126,777 |
13,945 |
1,000 |
12,945 |
||
| Property Building Permit History | |||||||||||
|---|---|---|---|---|---|---|---|---|---|---|---|
| Issued | Permit # | Provided by | Bldg # | Description | Est Construction Cost | Status | |||||
| No Building Permit records returned. | |||||||||||
| Click button on building number to access detailed information: | ||||||
|---|---|---|---|---|---|---|
| Bldg # | Vacant/Improved Land | Bldg Description | Year Built | SqFt | # Stories | |
|
1 |
Improved |
2 Story |
1971 |
1,876 |
2 Stories |
|