|
|
|
| Larry Stein Oklahoma County Assessor (405) 713-1200 - Public Access System |
|
|
|
|
|
|
| Real Property Display - Screen Produced 3/16/2026 9:19:28 AM | ||||
|---|---|---|---|---|
| Account: R130768642 | Type: Residential | Location: |
329 NW 118TH ST |
|
| Building Name/Occupant: |
|
OKLAHOMA CITY |
||
| Owner Name 1: | TEAM REALTY INVESTMENTS LLC |
Parcel PIN#: |
3681-13-076-8642 |
|
| Owner Name 2: | 1/4 section #: |
3681 |
||
| Owner Name 3: | Parent Acct: |
|
||
| Billing Address: | 6109 SUDBURY DR | Tax District: |
|
|
| City, State, Zip | OKLAHOMA CITY, OK 73162 | School System: |
Oklahoma City #89 |
|
|
Country: (If noted) |
Land Size: |
0.1607 Acres |
||
|
Land Value: 25,200 |
|
|||
|
Sect 21-T13N-R3W Qtr NE |
COLLEGE PARK ADD
Block
087
Lot
000
|
|||
| Full Legal Description: COLLEGE PARK ADD 087 000 LOTS 33 & 34 |
| Photo & Sketch (if available) | Comp Sales (ordered by relevancy) |
|
||||||||||||||||||
|
||||||||||||||||||||
| Value History (*The County Treasurer 405-713-1300 posts & collects actual tax amounts. Contact information HERE) | |||||||||||||
|---|---|---|---|---|---|---|---|---|---|---|---|---|---|
| Year | Market Value | Taxable Mkt Value | Gross Assessed | Exemption | Net Assessed | Millage | Est. Tax | Tax Savings | |||||
|
2025 |
143,000 |
74,661 |
8,212 |
0 |
8,212 |
122.90 |
$1,009 |
$924 |
|||||
|
2024 |
137,000 |
71,106 |
7,821 |
0 |
7,821 |
123.89 |
$969 |
$898 |
|||||
|
2023 |
127,500 |
67,720 |
7,448 |
0 |
7,448 |
122.82 |
$915 |
$808 |
|||||
|
2022 |
97,500 |
64,496 |
7,093 |
0 |
7,093 |
117.63 |
$835 |
$427 |
|||||
|
2021 |
88,000 |
61,425 |
6,756 |
0 |
6,756 |
117.70 |
$795 |
$344 |
|||||
| Property Account Status/Adjustments/Exemptions | ||||||
|---|---|---|---|---|---|---|
| Account # | Exemption Description | Amount | ||||
| No adjustment/exemption records returned. | ||||||
| Property Deed Transaction History (Recorded in the County Clerk's Office) | |||||||
|---|---|---|---|---|---|---|---|
| Date | Type | Book | Page | Price | Grantor | Grantee | |
|
2/12/2021 |
|
Hmstd Off & |
$ |
TEAM REALTY INVESTMENTS LLC |
COOPER LAUREN |
||
|
2/12/2021 |
|
Hmstd Off & |
$ |
COOPER LAUREN |
TEAM REALTY INVESTMENTS LLC |
||
|
10/7/2019 |
|
Deeds |
$55,000 |
WILLIAMS JAMES L JR |
TEAM REALTY INVESTMENTS LLC |
||
|
2/11/2005 |
|
Deeds |
$52,500 |
HILL TERRELL Q & AMY D |
WILLIAMS JAMES L JR |
||
|
11/1/1983 |
|
Historical |
$0 |
|
HILL TERRELL Q & AMY D |
||
| Last Mailed Notice of Value (N.O.V.) Information/History | ||||||||
|---|---|---|---|---|---|---|---|---|
| Year | Date | Market Value | Taxable Market Value | Gross Assessed | Exemption | Net Assessed | ||
|
2026 |
02/23/2026 |
144,500 |
78,394 |
8,622 |
0 |
8,622 |
||
|
2025 |
02/14/2025 |
143,000 |
74,661 |
8,212 |
0 |
8,212 |
||
|
2024 |
02/13/2024 |
137,000 |
71,106 |
7,821 |
0 |
7,821 |
||
|
2023 |
02/14/2023 |
127,500 |
67,720 |
7,448 |
0 |
7,448 |
||
|
2022 |
03/15/2022 |
97,500 |
64,496 |
7,093 |
0 |
7,093 |
||
| Property Building Permit History | |||||||||||
|---|---|---|---|---|---|---|---|---|---|---|---|
| Issued | Permit # | Provided by | Bldg # | Description | Est Construction Cost | Status | |||||
| No Building Permit records returned. | |||||||||||
| Click button on building number to access detailed information: | ||||||
|---|---|---|---|---|---|---|
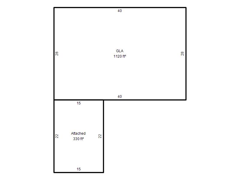
| Bldg # | Vacant/Improved Land | Bldg Description | Year Built | SqFt | # Stories | |
|
1 |
Improved |
Ranch 1 Story |
1983 |
1,120 |
1 Stories |
|