|
|
|
| Larry Stein Oklahoma County Assessor (405) 713-1200 - Public Access System |
|
|
|
|
|
|
| Real Property Display - Screen Produced 3/20/2026 5:55:24 AM | ||||
|---|---|---|---|---|
| Account: R130760025 | Type: Residential | Location: |
920 NW 109TH ST |
|
| Building Name/Occupant: |
|
OKLAHOMA CITY |
||
| Owner Name 1: | TDC40 PROPERTIES LLC |
Parcel PIN#: |
3683-13-076-0025 |
|
| Owner Name 2: | 1/4 section #: |
3683 |
||
| Owner Name 3: | Parent Acct: |
3683-13-076-0001 |
||
| Billing Address: | 2615 NW 26TH ST | Tax District: |
|
|
| City, State, Zip | OKLAHOMA CITY, OK 73107 | School System: |
Oklahoma City #89 |
|
|
Country: (If noted) |
Land Size: |
0.1607 Acres |
||
|
Land Value: 28,000 |
|
|||
|
Sect 21-T13N-R3W Qtr SW |
COLLEGE PARK ADD
Block
001
Lot
000
|
|||
| Full Legal Description: COLLEGE PARK ADD 001 000 LOTS 11 & 12 |
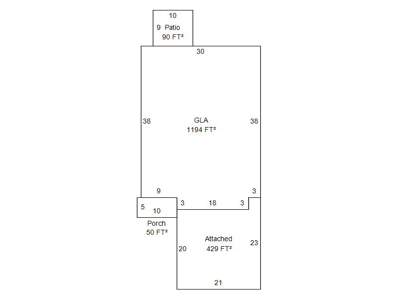
| Photo & Sketch (if available) | Comp Sales (ordered by relevancy) |
|
||||||||||||||||||
|
||||||||||||||||||||
| Value History (*The County Treasurer 405-713-1300 posts & collects actual tax amounts. Contact information HERE) | |||||||||||||
|---|---|---|---|---|---|---|---|---|---|---|---|---|---|
| Year | Market Value | Taxable Mkt Value | Gross Assessed | Exemption | Net Assessed | Millage | Est. Tax | Tax Savings | |||||
|
2025 |
178,000 |
144,643 |
15,910 |
0 |
15,910 |
122.90 |
$1,955 |
$451 |
|||||
|
2024 |
166,000 |
137,756 |
15,152 |
0 |
15,152 |
123.89 |
$1,877 |
$385 |
|||||
|
2023 |
156,000 |
131,197 |
14,431 |
0 |
14,431 |
122.82 |
$1,772 |
$335 |
|||||
|
2022 |
130,500 |
124,950 |
13,744 |
0 |
13,744 |
117.63 |
$1,617 |
$72 |
|||||
|
2021 |
119,000 |
119,000 |
13,090 |
0 |
13,090 |
117.70 |
$1,541 |
$0 |
|||||
| Property Account Status/Adjustments/Exemptions | ||
|---|---|---|
| Account # | Exemption Description | Amount |
|
R130760025 |
5% Capped Account |
0 |
| Property Deed Transaction History (Recorded in the County Clerk's Office) | |||||||
|---|---|---|---|---|---|---|---|
| Date | Type | Book | Page | Price | Grantor | Grantee | |
|
5/19/2020 |
|
Mult Parcel |
$160,000 |
NATALE JUSTIN N |
TDC40 PROPERTIES LLC |
||
|
2/12/2007 |
|
Deeds |
$115,500 |
OAKBROOKE HOMES LLC |
NATALE JUSTIN N |
||
| Last Mailed Notice of Value (N.O.V.) Information/History | ||||||||
|---|---|---|---|---|---|---|---|---|
| Year | Date | Market Value | Taxable Market Value | Gross Assessed | Exemption | Net Assessed | ||
|
2026 |
02/23/2026 |
184,500 |
151,875 |
16,705 |
0 |
16,705 |
||
|
2025 |
02/14/2025 |
178,000 |
144,643 |
15,910 |
0 |
15,910 |
||
|
2024 |
02/13/2024 |
166,000 |
137,756 |
15,152 |
0 |
15,152 |
||
|
2023 |
02/14/2023 |
156,000 |
131,197 |
14,431 |
0 |
14,431 |
||
|
2022 |
03/15/2022 |
130,500 |
124,950 |
13,744 |
0 |
13,744 |
||
| Property Building Permit History | ||||||
|---|---|---|---|---|---|---|
| Issued | Permit # | Provided by | Bldg # | Description | Est Construction Cost | Status |
|
8/31/2006 |
10327720 |
OKLAHOMA CITY |
1 |
Main Dwellin |
56,000 |
Inactive |
| Click button on building number to access detailed information: | ||||||
|---|---|---|---|---|---|---|
| Bldg # | Vacant/Improved Land | Bldg Description | Year Built | SqFt | # Stories | |
|
1 |
Improved |
Ranch 1 Story |
2006 |
1,194 |
1 Stories |
|