|
|
|
| Larry Stein Oklahoma County Assessor (405) 713-1200 - Public Access System |
|
|
|
|
|
|
| Real Property Display - Screen Produced 3/16/2026 7:40:10 AM | ||||
|---|---|---|---|---|
| Account: R130762304 | Type: Residential | Location: |
1015 NW 110TH ST |
|
| Building Name/Occupant: |
|
OKLAHOMA CITY |
||
| Owner Name 1: | THIEME RAVI |
Parcel PIN#: |
3683-13-076-2304 |
|
| Owner Name 2: | THIEME WHITNEY | 1/4 section #: |
3683 |
|
| Owner Name 3: | Parent Acct: |
|
||
| Billing Address: | 1015 NW 110TH ST | Tax District: |
|
|
| City, State, Zip | OKLAHOMA CITY, OK 73114-6930 | School System: |
Oklahoma City #89 |
|
|
Country: (If noted) |
Land Size: |
0.1607 Acres |
||
|
Land Value: 28,000 |
|
|||
|
Sect 21-T13N-R3W Qtr SW |
COLLEGE PARK ADD
Block
017
Lot
000
|
|||
| Full Legal Description: COLLEGE PARK ADD 017 000 LOTS 26 & 27 |
| Photo & Sketch (if available) | Comp Sales (ordered by relevancy) |
|
||||||||||||||||||
|
||||||||||||||||||||
| Value History (*The County Treasurer 405-713-1300 posts & collects actual tax amounts. Contact information HERE) | |||||||||||||
|---|---|---|---|---|---|---|---|---|---|---|---|---|---|
| Year | Market Value | Taxable Mkt Value | Gross Assessed | Exemption | Net Assessed | Millage | Est. Tax | Tax Savings | |||||
|
2025 |
139,500 |
105,447 |
11,598 |
1,000 |
10,598 |
122.90 |
$1,303 |
$583 |
|||||
|
2024 |
133,000 |
102,376 |
11,260 |
1,000 |
10,260 |
123.89 |
$1,271 |
$541 |
|||||
|
2023 |
124,500 |
99,395 |
10,933 |
1,000 |
9,933 |
122.82 |
$1,220 |
$462 |
|||||
|
2022 |
96,500 |
96,500 |
10,615 |
1,000 |
9,615 |
117.63 |
$1,131 |
$118 |
|||||
|
2021 |
103,000 |
103,000 |
11,330 |
1,000 |
10,330 |
117.70 |
$1,216 |
$118 |
|||||
| Property Account Status/Adjustments/Exemptions | ||||||
|---|---|---|---|---|---|---|
| Account # | Exemption Description | Amount | ||||
| No adjustment/exemption records returned. | ||||||
| Property Deed Transaction History (Recorded in the County Clerk's Office) | ||||||||||
|---|---|---|---|---|---|---|---|---|---|---|
| Date | Type | Book | Page | Price | Grantor | Grantee | ||||
|
8/5/2025 |
|
Deeds |
$158,000 |
JOHNSON MARIAH |
THIEME RAVI |
|||||
|
2/27/2020 |
|
Deeds |
$104,500 |
TA HOMES LLC |
JOHNSON MARIAH |
|||||
|
3/26/2019 |
|
Deeds |
$0 |
TA HOMES LLC |
TA HOMES LLC |
|||||
|
9/16/2016 |
|
Deeds |
$18,000 |
WE BUY HOUSES LLC |
TA HOMES LLC |
|||||
|
7/14/2016 |
|
Deeds |
$12,000 |
BROOKS CHRISTINA D PER REP GAMBLE PAUL STANLEY ESTATE OF |
WE BUY HOUSES LLC |
|||||
| Last Mailed Notice of Value (N.O.V.) Information/History | ||||||||
|---|---|---|---|---|---|---|---|---|
| Year | Date | Market Value | Taxable Market Value | Gross Assessed | Exemption | Net Assessed | ||
|
2026 |
02/23/2026 |
139,000 |
139,000 |
15,290 |
0 |
15,290 |
||
|
2025 |
02/14/2025 |
139,500 |
105,447 |
11,598 |
1,000 |
10,598 |
||
|
2024 |
02/13/2024 |
133,000 |
102,376 |
11,260 |
1,000 |
10,260 |
||
|
2023 |
02/14/2023 |
124,500 |
99,395 |
10,933 |
1,000 |
9,933 |
||
|
2021 |
03/19/2021 |
103,000 |
103,000 |
11,330 |
1,000 |
10,330 |
||
| Property Building Permit History | ||||||
|---|---|---|---|---|---|---|
| Issued | Permit # | Provided by | Bldg # | Description | Est Construction Cost | Status |
|
8/13/2018 |
|
|
1 |
Remodeled |
|
Inactive |
| Click button on building number to access detailed information: | ||||||
|---|---|---|---|---|---|---|
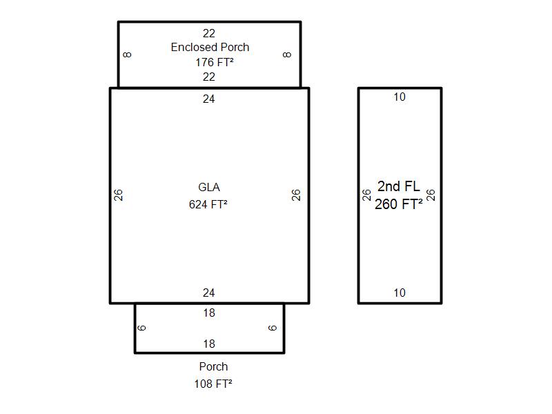
| Bldg # | Vacant/Improved Land | Bldg Description | Year Built | SqFt | # Stories | |
|
1 |
Improved |
1½ Story Fin |
1940 |
884 |
1.5 Stories |
|