|
|
|
| Larry Stein Oklahoma County Assessor (405) 713-1200 - Public Access System |
|
|
|
|
|
|
| Real Property Display - Screen Produced 3/18/2026 5:20:46 AM | ||||
|---|---|---|---|---|
| Account: R130762356 | Type: Residential | Location: |
801 NW 110TH ST |
|
| Building Name/Occupant: |
|
OKLAHOMA CITY |
||
| Owner Name 1: | GIBBONS JESSE & LUCIANA |
Parcel PIN#: |
3683-13-076-2356 |
|
| Owner Name 2: | 1/4 section #: |
3683 |
||
| Owner Name 3: | Parent Acct: |
|
||
| Billing Address: | 512 NW 164TH ST | Tax District: |
|
|
| City, State, Zip | EDMOND, OK 73013-2001 | School System: |
Oklahoma City #89 |
|
|
Country: (If noted) |
Land Size: |
0.3214 Acres |
||
|
Land Value: 47,600 |
|
|||
|
Sect 21-T13N-R3W Qtr SW |
COLLEGE PARK ADD
Block
017
Lot
000
|
|||
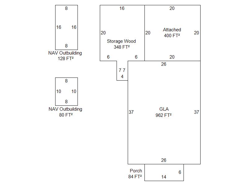
| Full Legal Description: COLLEGE PARK ADD 017 000 LOTS 43 THRU 46 |
| Photo & Sketch (if available) | Comp Sales (ordered by relevancy) |
|
||||||||||||||||||
|
||||||||||||||||||||
| Value History (*The County Treasurer 405-713-1300 posts & collects actual tax amounts. Contact information HERE) | |||||||||||||
|---|---|---|---|---|---|---|---|---|---|---|---|---|---|
| Year | Market Value | Taxable Mkt Value | Gross Assessed | Exemption | Net Assessed | Millage | Est. Tax | Tax Savings | |||||
|
2025 |
87,000 |
51,591 |
5,674 |
0 |
5,674 |
122.90 |
$697 |
$479 |
|||||
|
2024 |
82,000 |
49,135 |
5,404 |
0 |
5,404 |
123.89 |
$670 |
$448 |
|||||
|
2023 |
79,000 |
46,796 |
5,147 |
0 |
5,147 |
122.82 |
$632 |
$435 |
|||||
|
2022 |
56,000 |
44,568 |
4,901 |
0 |
4,901 |
117.63 |
$577 |
$148 |
|||||
|
2021 |
46,000 |
42,446 |
4,668 |
0 |
4,668 |
117.70 |
$550 |
$46 |
|||||
| Property Account Status/Adjustments/Exemptions | ||
|---|---|---|
| Account # | Exemption Description | Amount |
|
R130762356 |
5% Capped Account |
0 |
| Property Deed Transaction History (Recorded in the County Clerk's Office) | ||||||||||
|---|---|---|---|---|---|---|---|---|---|---|
| Date | Type | Book | Page | Price | Grantor | Grantee | ||||
|
3/3/2017 |
|
Deeds |
$37,000 |
S & L PROPERTIES LLC |
GIBBONS JESSE & LUCIANA |
|||||
|
5/14/2013 |
|
Deeds |
$17,500 |
WILKERSON GERALD |
S & L PROPERTIES LLC |
|||||
|
6/30/2005 |
|
Other |
$0 |
KAGARISE JOYCE ANN |
WILKERSON GERALD |
|||||
|
10/4/1989 |
|
Historical |
$15,000 |
HARRY B & MARIE A TAYLOR TRUST |
KAGARISE JOYCE ANN |
|||||
|
6/15/1988 |
|
Historical |
$0 |
TAYLOR H B & MARIE |
HARRY B & MARIE A TAYLOR TRUST |
|||||
| Last Mailed Notice of Value (N.O.V.) Information/History | ||||||||
|---|---|---|---|---|---|---|---|---|
| Year | Date | Market Value | Taxable Market Value | Gross Assessed | Exemption | Net Assessed | ||
|
2026 |
02/23/2026 |
92,500 |
54,170 |
5,958 |
0 |
5,958 |
||
|
2025 |
02/14/2025 |
87,000 |
51,591 |
5,674 |
0 |
5,674 |
||
|
2024 |
02/13/2024 |
82,000 |
49,135 |
5,404 |
0 |
5,404 |
||
|
2023 |
02/14/2023 |
79,000 |
46,796 |
5,147 |
0 |
5,147 |
||
|
2022 |
03/15/2022 |
56,000 |
44,568 |
4,901 |
0 |
4,901 |
||
| Property Building Permit History | |||||||||||
|---|---|---|---|---|---|---|---|---|---|---|---|
| Issued | Permit # | Provided by | Bldg # | Description | Est Construction Cost | Status | |||||
| No Building Permit records returned. | |||||||||||
| Click button on building number to access detailed information: | ||||||
|---|---|---|---|---|---|---|
| Bldg # | Vacant/Improved Land | Bldg Description | Year Built | SqFt | # Stories | |
|
1 |
Improved |
Ranch 1 Story |
1934 |
962 |
1 Stories |
|