|
|
|
| Larry Stein Oklahoma County Assessor (405) 713-1200 - Public Access System |
|
|
|
|
|
|
| Real Property Display - Screen Produced 3/20/2026 5:52:26 AM | ||||
|---|---|---|---|---|
| Account: R130764370 | Type: Residential | Location: |
720 NW 113TH ST |
|
| Building Name/Occupant: |
|
OKLAHOMA CITY |
||
| Owner Name 1: | GRIFFIN MICHELLE |
Parcel PIN#: |
3683-13-076-4370 |
|
| Owner Name 2: | 1/4 section #: |
3683 |
||
| Owner Name 3: | Parent Acct: |
|
||
| Billing Address: | 720 NW 113TH ST | Tax District: |
|
|
| City, State, Zip | OKLAHOMA CITY, OK 73114-6811 | School System: |
Oklahoma City #89 |
|
|
Country: (If noted) |
Land Size: |
0.1607 Acres |
||
|
Land Value: 28,000 |
|
|||
|
Sect 21-T13N-R3W Qtr SW |
COLLEGE PARK ADD
Block
034
Lot
000
|
|||
| Full Legal Description: COLLEGE PARK ADD 034 000 LOTS 11 & 12 |
| Photo & Sketch (if available) | Comp Sales (ordered by relevancy) |
|
||||||||||||||||||
|
||||||||||||||||||||
| Value History (*The County Treasurer 405-713-1300 posts & collects actual tax amounts. Contact information HERE) | |||||||||||||
|---|---|---|---|---|---|---|---|---|---|---|---|---|---|
| Year | Market Value | Taxable Mkt Value | Gross Assessed | Exemption | Net Assessed | Millage | Est. Tax | Tax Savings | |||||
|
2025 |
163,500 |
106,231 |
11,685 |
0 |
11,685 |
122.90 |
$1,436 |
$774 |
|||||
|
2024 |
156,500 |
101,173 |
11,128 |
0 |
11,128 |
123.89 |
$1,379 |
$754 |
|||||
|
2023 |
146,500 |
96,356 |
10,598 |
0 |
10,598 |
122.82 |
$1,302 |
$677 |
|||||
|
2022 |
112,000 |
91,768 |
10,093 |
0 |
10,093 |
117.63 |
$1,187 |
$262 |
|||||
|
2021 |
101,000 |
87,399 |
9,613 |
0 |
9,613 |
117.70 |
$1,132 |
$176 |
|||||
| Property Account Status/Adjustments/Exemptions | ||
|---|---|---|
| Account # | Exemption Description | Amount |
|
R130764370 |
5% Capped Account |
0 |
| Property Deed Transaction History (Recorded in the County Clerk's Office) | ||||||||||
|---|---|---|---|---|---|---|---|---|---|---|
| Date | Type | Book | Page | Price | Grantor | Grantee | ||||
|
3/4/1999 |
|
Historical |
$52,500 |
WALIZER JAMES E TRS |
GRIFFIN MICHELLE |
|||||
|
4/2/1998 |
|
Historical |
$0 |
WALIZER JAMES E & MARY J TRS |
WALIZER JAMES E TRS |
|||||
|
4/5/1994 |
|
Historical |
$0 |
WALIZER JAMES E & MARY JEAN |
WALIZER JAMES E & MARY J TRS |
|||||
|
2/10/1994 |
|
Historical |
$0 |
WALIZER JAMES E & MARY J TRS |
WALIZER JAMES E & MARY JEAN |
|||||
|
5/17/1990 |
|
Historical |
$0 |
WALIZER JAMES E & MARY JEAN |
WALIZER JAMES E & MARY J TRS |
|||||
| Last Mailed Notice of Value (N.O.V.) Information/History | ||||||||
|---|---|---|---|---|---|---|---|---|
| Year | Date | Market Value | Taxable Market Value | Gross Assessed | Exemption | Net Assessed | ||
|
2026 |
02/23/2026 |
164,000 |
111,542 |
12,269 |
0 |
12,269 |
||
|
2025 |
02/14/2025 |
163,500 |
106,231 |
11,685 |
0 |
11,685 |
||
|
2024 |
02/13/2024 |
156,500 |
101,173 |
11,128 |
0 |
11,128 |
||
|
2023 |
02/14/2023 |
146,500 |
96,356 |
10,598 |
0 |
10,598 |
||
|
2022 |
03/15/2022 |
112,000 |
91,768 |
10,093 |
0 |
10,093 |
||
| Property Building Permit History | |||||||||||
|---|---|---|---|---|---|---|---|---|---|---|---|
| Issued | Permit # | Provided by | Bldg # | Description | Est Construction Cost | Status | |||||
| No Building Permit records returned. | |||||||||||
| Click button on building number to access detailed information: | ||||||
|---|---|---|---|---|---|---|
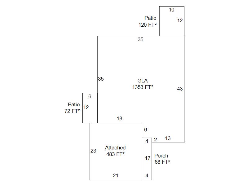
| Bldg # | Vacant/Improved Land | Bldg Description | Year Built | SqFt | # Stories | |
|
1 |
Improved |
Ranch 1 Story |
1979 |
1,353 |
1 Stories |
|