|
|
|
| Larry Stein Oklahoma County Assessor (405) 713-1200 - Public Access System |
|
|
|
|
|
|
| Real Property Display - Screen Produced 4/6/2026 4:08:33 AM | ||||
|---|---|---|---|---|
| Account: R121251350 | Type: Residential | Location: |
909 NW 116TH CT |
|
| Building Name/Occupant: |
|
OKLAHOMA CITY |
||
| Owner Name 1: | LANGSTON PROPERTIES LLC |
Parcel PIN#: |
3684-12-125-1350 |
|
| Owner Name 2: | 1/4 section #: |
3684 |
||
| Owner Name 3: | Parent Acct: |
|
||
| Billing Address: | 4401 NE 88TH ST | Tax District: |
|
|
| City, State, Zip | OKLAHOMA CITY, OK 73131-7252 | School System: |
Oklahoma City #89 |
|
|
Country: (If noted) |
Land Size: |
0.0941 Acres |
||
|
Land Value: 12,303 |
|
|||
|
Sect 21-T13N-R3W Qtr NW |
CHISHOLM TRAIL SEC 1
Block
003
Lot
004
|
|||
| Full Legal Description: CHISHOLM TRAIL SEC 1 003 004 |
| Photo & Sketch (if available) | Comp Sales (ordered by relevancy) |
|
||||||||||||||||||
|
||||||||||||||||||||
| Value History (*The County Treasurer 405-713-1300 posts & collects actual tax amounts. Contact information HERE) | |||||||||||||
|---|---|---|---|---|---|---|---|---|---|---|---|---|---|
| Year | Market Value | Taxable Mkt Value | Gross Assessed | Exemption | Net Assessed | Millage | Est. Tax | Tax Savings | |||||
|
2026 |
100,000 |
58,290 |
6,411 |
0 |
6,411 |
122.90 |
$788 |
$564 |
|||||
|
2025 |
103,500 |
55,515 |
6,105 |
0 |
6,105 |
122.90 |
$751 |
$649 |
|||||
|
2024 |
102,500 |
52,872 |
5,815 |
0 |
5,815 |
123.89 |
$721 |
$676 |
|||||
|
2023 |
65,000 |
50,355 |
5,538 |
0 |
5,538 |
122.82 |
$680 |
$198 |
|||||
|
2022 |
52,000 |
47,958 |
5,275 |
0 |
5,275 |
117.63 |
$621 |
$52 |
|||||
| Property Account Status/Adjustments/Exemptions | ||
|---|---|---|
| Account # | Exemption Description | Amount |
|
R121251350 |
5% Capped Account |
0 |
| Property Deed Transaction History (Recorded in the County Clerk's Office) | ||||||||||
|---|---|---|---|---|---|---|---|---|---|---|
| Date | Type | Book | Page | Price | Grantor | Grantee | ||||
|
7/30/2014 |
|
Hmstd Off & |
$0 |
LANGSTON JESSE B & LORETA JOINT |
LANGSTON PROPERTIES LLC |
|||||
|
7/14/2008 |
|
Deeds |
$0 |
LANGSTON JESSE B & LORETA |
LANGSTON JESSE B & LORETA JOINT |
|||||
|
3/15/1993 |
|
Historical |
$0 |
LANGSTON JESSE B |
LANGSTON JESSE B & LORETA |
|||||
|
9/23/1988 |
|
Historical |
$0 |
LANGSTON JESSE B |
LANGSTON JESSE B |
|||||
|
8/2/1988 |
|
Historical |
$0 |
GMAC MORTGAGE CORPORATION |
LANGSTON JESSIE B |
|||||
| Last Mailed Notice of Value (N.O.V.) Information/History | ||||||||
|---|---|---|---|---|---|---|---|---|
| Year | Date | Market Value | Taxable Market Value | Gross Assessed | Exemption | Net Assessed | ||
|
2026 |
02/23/2026 |
100,000 |
58,290 |
6,411 |
0 |
6,411 |
||
|
2025 |
02/14/2025 |
103,500 |
55,515 |
6,105 |
0 |
6,105 |
||
|
2024 |
02/13/2024 |
102,500 |
52,872 |
5,815 |
0 |
5,815 |
||
|
2023 |
02/14/2023 |
65,000 |
50,355 |
5,538 |
0 |
5,538 |
||
|
2022 |
03/15/2022 |
52,000 |
47,958 |
5,275 |
0 |
5,275 |
||
| Property Building Permit History | |||||||||||
|---|---|---|---|---|---|---|---|---|---|---|---|
| Issued | Permit # | Provided by | Bldg # | Description | Est Construction Cost | Status | |||||
| No Building Permit records returned. | |||||||||||
| Click button on building number to access detailed information: | ||||||
|---|---|---|---|---|---|---|
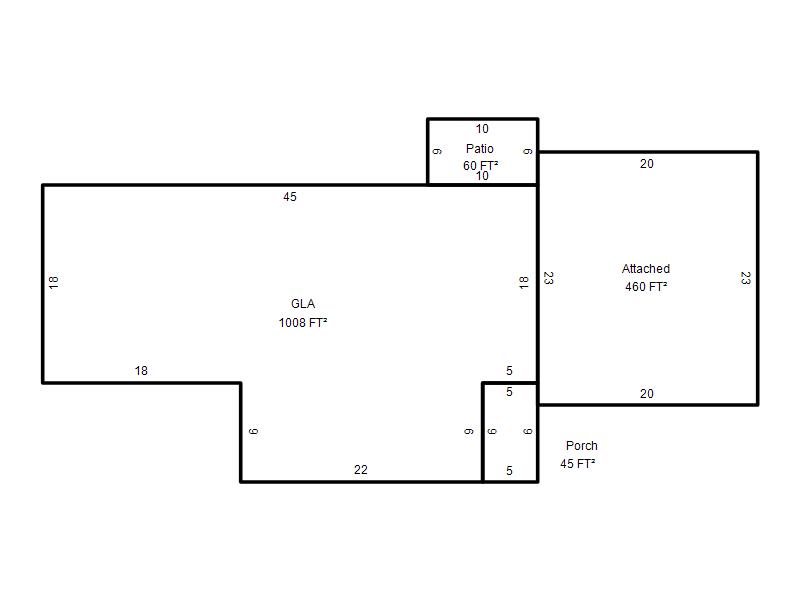
| Bldg # | Vacant/Improved Land | Bldg Description | Year Built | SqFt | # Stories | |
|
1 |
Improved |
Townhouse One Story |
1983 |
1,008 |
1 Stories |
|