|
|
|
| Larry Stein Oklahoma County Assessor (405) 713-1200 - Public Access System |
|
|
|
|
|
|
| Real Property Display - Screen Produced 4/3/2026 2:16:51 PM | ||||
|---|---|---|---|---|
| Account: R133252480 | Type: Residential | Location: |
805 NW 116TH ST |
|
| Building Name/Occupant: |
|
OKLAHOMA CITY |
||
| Owner Name 1: | SSSK LLC |
Parcel PIN#: |
3684-13-325-2480 |
|
| Owner Name 2: | 1/4 section #: |
3684 |
||
| Owner Name 3: | Parent Acct: |
|
||
| Billing Address: | 10325 EASTLAKE DR | Tax District: |
|
|
| City, State, Zip | OKLAHOMA CITY, OK 73162-6825 | School System: |
Oklahoma City #89 |
|
|
Country: (If noted) |
Land Size: |
0.1653 Acres |
||
|
Land Value: 25,920 |
|
|||
|
Sect 21-T13N-R3W Qtr NW |
CHISHOLM CREEK
Block
005
Lot
045
|
|||
| Full Legal Description: CHISHOLM CREEK 005 045 |
| Photo & Sketch (if available) | Comp Sales (ordered by relevancy) |
|
||||||||||||||||||
|
||||||||||||||||||||
| Value History (*The County Treasurer 405-713-1300 posts & collects actual tax amounts. Contact information HERE) | |||||||||||||
|---|---|---|---|---|---|---|---|---|---|---|---|---|---|
| Year | Market Value | Taxable Mkt Value | Gross Assessed | Exemption | Net Assessed | Millage | Est. Tax | Tax Savings | |||||
|
2026 |
157,000 |
118,455 |
13,029 |
0 |
13,029 |
122.90 |
$1,601 |
$521 |
|||||
|
2025 |
142,500 |
112,815 |
12,408 |
0 |
12,408 |
122.90 |
$1,525 |
$401 |
|||||
|
2024 |
137,500 |
107,443 |
11,817 |
0 |
11,817 |
123.89 |
$1,464 |
$410 |
|||||
|
2023 |
129,000 |
102,327 |
11,255 |
0 |
11,255 |
122.82 |
$1,382 |
$360 |
|||||
|
2022 |
105,500 |
97,455 |
10,719 |
0 |
10,719 |
117.63 |
$1,261 |
$104 |
|||||
| Property Account Status/Adjustments/Exemptions | ||
|---|---|---|
| Account # | Exemption Description | Amount |
|
R133252480 |
5% Capped Account |
0 |
| Property Deed Transaction History (Recorded in the County Clerk's Office) | |||||||
|---|---|---|---|---|---|---|---|
| Date | Type | Book | Page | Price | Grantor | Grantee | |
|
6/13/2011 |
|
Deeds |
$49,000 |
BATSON GREGORY RAY SR |
SSSK LLC |
||
|
9/25/2002 |
|
Deeds |
$0 |
BATSON MARY A |
BATSON GREGORY RAY SR |
||
|
9/1/1986 |
|
Historical |
$0 |
STONE ELIZABETH W |
BATSON MARY A |
||
|
10/1/1982 |
|
Historical |
$0 |
|
STONE ELIZABETH W |
||
| Last Mailed Notice of Value (N.O.V.) Information/History | ||||||||
|---|---|---|---|---|---|---|---|---|
| Year | Date | Market Value | Taxable Market Value | Gross Assessed | Exemption | Net Assessed | ||
|
2026 |
02/23/2026 |
157,000 |
118,455 |
13,029 |
0 |
13,029 |
||
|
2025 |
02/14/2025 |
142,500 |
112,815 |
12,408 |
0 |
12,408 |
||
|
2024 |
02/13/2024 |
137,500 |
107,443 |
11,817 |
0 |
11,817 |
||
|
2023 |
02/14/2023 |
129,000 |
102,327 |
11,255 |
0 |
11,255 |
||
|
2022 |
03/15/2022 |
105,500 |
97,455 |
10,719 |
0 |
10,719 |
||
| Property Building Permit History | |||||||||||
|---|---|---|---|---|---|---|---|---|---|---|---|
| Issued | Permit # | Provided by | Bldg # | Description | Est Construction Cost | Status | |||||
| No Building Permit records returned. | |||||||||||
| Click button on building number to access detailed information: | ||||||
|---|---|---|---|---|---|---|
| Bldg # | Vacant/Improved Land | Bldg Description | Year Built | SqFt | # Stories | |
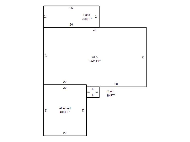
|
1 |
Improved |
Ranch 1 Story |
1975 |
1,324 |
1 Stories |
|