|
|
|
| Larry Stein Oklahoma County Assessor (405) 713-1200 - Public Access System |
|
|
|
|
|
|
| Real Property Display - Screen Produced 4/9/2026 10:14:25 AM | ||||
|---|---|---|---|---|
| Account: R122081710 | Type: Residential | Location: |
421 NE 115TH ST |
|
| Building Name/Occupant: |
|
OKLAHOMA CITY |
||
| Owner Name 1: | CAMPO DIANA |
Parcel PIN#: |
3687-12-208-1710 |
|
| Owner Name 2: | 1/4 section #: |
3687 |
||
| Owner Name 3: | Parent Acct: |
|
||
| Billing Address: | PO BOX 7042 | Tax District: |
|
|
| City, State, Zip | EDMOND, OK 73083-7042 | School System: |
Oklahoma City #89 |
|
|
Country: (If noted) |
Land Size: |
0.0574 Acres |
||
|
Land Value: 10,000 |
|
|||
|
Sect 22-T13N-R3W Qtr SW |
SUMMIT RIDGE SEC I
Block
003
Lot
011
|
|||
| Full Legal Description: SUMMIT RIDGE SEC I 003 011 |
| Photo & Sketch (if available) | Comp Sales (ordered by relevancy) |
|
||||||||||||||||||
|
||||||||||||||||||||
| Value History (*The County Treasurer 405-713-1300 posts & collects actual tax amounts. Contact information HERE) | |||||||||||||
|---|---|---|---|---|---|---|---|---|---|---|---|---|---|
| Year | Market Value | Taxable Mkt Value | Gross Assessed | Exemption | Net Assessed | Millage | Est. Tax | Tax Savings | |||||
|
2026 |
120,500 |
88,319 |
9,714 |
0 |
9,714 |
122.90 |
$1,194 |
$435 |
|||||
|
2025 |
106,000 |
84,114 |
9,251 |
0 |
9,251 |
122.90 |
$1,137 |
$296 |
|||||
|
2024 |
127,000 |
80,109 |
8,811 |
0 |
8,811 |
123.89 |
$1,092 |
$639 |
|||||
|
2023 |
119,000 |
76,295 |
8,391 |
0 |
8,391 |
122.82 |
$1,031 |
$577 |
|||||
|
2022 |
95,500 |
72,662 |
7,991 |
0 |
7,991 |
117.63 |
$940 |
$296 |
|||||
| Property Account Status/Adjustments/Exemptions | ||
|---|---|---|
| Account # | Exemption Description | Amount |
|
R122081710 |
5% Capped Account |
0 |
| Property Deed Transaction History (Recorded in the County Clerk's Office) | ||||||||||
|---|---|---|---|---|---|---|---|---|---|---|
| Date | Type | Book | Page | Price | Grantor | Grantee | ||||
|
12/12/1997 |
|
Historical |
$55,000 |
HESTER MILDA |
CAMPO DIANA |
|||||
|
9/26/1990 |
|
Historical |
$0 |
DAVIS LYNN TRS |
HESTER MILDA |
|||||
|
4/9/1990 |
|
Historical |
$0 |
PELFREY W RAY |
DAVIS LYNN TRS |
|||||
|
10/11/1989 |
|
Historical |
$0 |
FEDERAL DEPOSIT |
PELFREY W RAY |
|||||
|
10/24/1988 |
|
Historical |
$0 |
SUMMIT RIDGE DEVELOPMENT |
FEDERAL DEPOSIT |
|||||
| Last Mailed Notice of Value (N.O.V.) Information/History | ||||||||
|---|---|---|---|---|---|---|---|---|
| Year | Date | Market Value | Taxable Market Value | Gross Assessed | Exemption | Net Assessed | ||
|
2026 |
02/23/2026 |
120,500 |
88,319 |
9,714 |
0 |
9,714 |
||
|
2025 |
02/14/2025 |
106,000 |
84,114 |
9,251 |
0 |
9,251 |
||
|
2024 |
02/13/2024 |
127,000 |
80,109 |
8,811 |
0 |
8,811 |
||
|
2023 |
02/14/2023 |
119,000 |
76,295 |
8,391 |
0 |
8,391 |
||
|
2022 |
03/15/2022 |
95,500 |
72,662 |
7,991 |
0 |
7,991 |
||
| Property Building Permit History | |||||||||||
|---|---|---|---|---|---|---|---|---|---|---|---|
| Issued | Permit # | Provided by | Bldg # | Description | Est Construction Cost | Status | |||||
| No Building Permit records returned. | |||||||||||
| Click button on building number to access detailed information: | ||||||
|---|---|---|---|---|---|---|
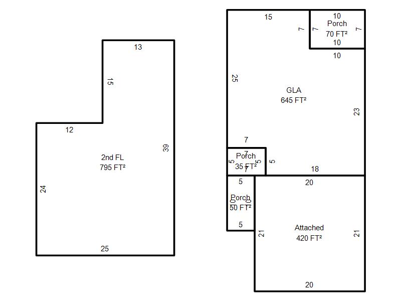
| Bldg # | Vacant/Improved Land | Bldg Description | Year Built | SqFt | # Stories | |
|
1 |
Improved |
Townhouse Multiple Story |
1984 |
1,440 |
2 Stories |
|