|
|
|
| Larry Stein Oklahoma County Assessor (405) 713-1200 - Public Access System |
|
|
|
|
|
|
| Real Property Display - Screen Produced 4/4/2026 10:36:38 PM | ||||
|---|---|---|---|---|
| Account: R134921200 | Type: Residential | Location: |
10001 N BRYANT AVE |
|
| Building Name/Occupant: |
|
OKLAHOMA CITY |
||
| Owner Name 1: | MENDOZA ADRIANA |
Parcel PIN#: |
3697-13-492-1200 |
|
| Owner Name 2: | MENDOZA SAUL | 1/4 section #: |
3697 |
|
| Owner Name 3: | Parent Acct: |
|
||
| Billing Address: | 10001 N BRYANT AVE | Tax District: |
|
|
| City, State, Zip | OKLAHOMA CITY, OK 73131 | School System: |
Oklahoma City #89 |
|
|
Country: (If noted) |
Land Size: |
2.0100 Acres |
||
|
Land Value: 42,210 |
|
|||
|
Sect 25-T13N-R3W Qtr NE |
UNPLTD PT SEC 25 13N 3W
Block
000
Lot
000
|
|||
| Full Legal Description: UNPLTD PT SEC 25 13N 3W 000 000 PT NE4 SEC 25 13N 3W BEG 20FT N OF SE/C OF NE4 TH W417.6FT N210FT E417.6FT S210FT TO BEG |
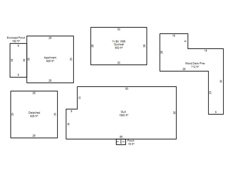
| Photo & Sketch (if available) | Comp Sales (ordered by relevancy) |
|
||||||||||||||||||
|
||||||||||||||||||||
| Value History (*The County Treasurer 405-713-1300 posts & collects actual tax amounts. Contact information HERE) | |||||||||||||
|---|---|---|---|---|---|---|---|---|---|---|---|---|---|
| Year | Market Value | Taxable Mkt Value | Gross Assessed | Exemption | Net Assessed | Millage | Est. Tax | Tax Savings | |||||
|
2026 |
296,500 |
296,500 |
32,615 |
0 |
32,615 |
122.90 |
$4,008 |
$0 |
|||||
|
2025 |
321,500 |
286,511 |
31,515 |
0 |
31,515 |
122.90 |
$3,873 |
$473 |
|||||
|
2024 |
300,500 |
272,868 |
30,015 |
0 |
30,015 |
123.89 |
$3,719 |
$377 |
|||||
|
2023 |
265,500 |
259,875 |
28,586 |
0 |
28,586 |
122.82 |
$3,511 |
$76 |
|||||
|
2022 |
247,500 |
247,500 |
27,225 |
0 |
27,225 |
117.63 |
$3,202 |
$0 |
|||||
| Property Account Status/Adjustments/Exemptions | ||
|---|---|---|
| Account # | Exemption Description | Amount |
|
R134921200 |
5% Capped Account |
0 |
| Property Deed Transaction History (Recorded in the County Clerk's Office) | ||||||||||
|---|---|---|---|---|---|---|---|---|---|---|
| Date | Type | Book | Page | Price | Grantor | Grantee | ||||
|
11/12/2021 |
|
Deeds |
$250,000 |
BARKER JAMIE DIANNE |
MENDOZA ADRIANA |
|||||
|
7/23/2020 |
|
Hmstd Off & |
$0 |
WIMER JAMES F |
BARKER JAMIE DIANNE |
|||||
|
6/21/2016 |
|
Deeds |
$0 |
WIMER JAMES T & ELIZABETH A |
WIMER JAMES T |
|||||
|
6/21/2016 |
|
Deeds |
$0 |
WIMER JAMES F WIMER JAMES T |
WIMER JAMES F |
|||||
|
10/15/1998 |
|
Deeds |
$0 |
WIMER VICKI D |
WIMER JAMES F WIMER JAMES T & ELIZABETH A |
|||||
| Last Mailed Notice of Value (N.O.V.) Information/History | ||||||||
|---|---|---|---|---|---|---|---|---|
| Year | Date | Market Value | Taxable Market Value | Gross Assessed | Exemption | Net Assessed | ||
|
2026 |
02/23/2026 |
296,500 |
296,500 |
32,615 |
0 |
32,615 |
||
|
2025 |
02/14/2025 |
321,500 |
286,511 |
31,515 |
0 |
31,515 |
||
|
2024 |
02/13/2024 |
300,500 |
272,868 |
30,015 |
0 |
30,015 |
||
|
2023 |
02/14/2023 |
265,500 |
259,875 |
28,586 |
0 |
28,586 |
||
|
2022 |
03/15/2022 |
247,500 |
247,500 |
27,225 |
0 |
27,225 |
||
| Property Building Permit History | |||||||||||
|---|---|---|---|---|---|---|---|---|---|---|---|
| Issued | Permit # | Provided by | Bldg # | Description | Est Construction Cost | Status | |||||
| No Building Permit records returned. | |||||||||||
| Click button on building number to access detailed information: | ||||||
|---|---|---|---|---|---|---|
| Bldg # | Vacant/Improved Land | Bldg Description | Year Built | SqFt | # Stories | |
|
1 |
Improved |
Ranch 1 Story |
1938 |
1,580 |
1 Stories |
|