|
|
|
| Larry Stein Oklahoma County Assessor (405) 713-1200 - Public Access System |
|
|
|
|
|
|
| Real Property Display - Screen Produced 3/31/2026 10:55:27 PM | ||||
|---|---|---|---|---|
| Account: R130201950 | Type: Residential | Location: |
512 NW 95TH ST |
|
| Building Name/Occupant: |
|
OKLAHOMA CITY |
||
| Owner Name 1: | HALSNE REAL ESTATE ACCOUNT LLC |
Parcel PIN#: |
3711-13-020-1950 |
|
| Owner Name 2: | 1/4 section #: |
3711 |
||
| Owner Name 3: | Parent Acct: |
|
||
| Billing Address: | 416 NW 15TH ST STE 500 F | Tax District: |
|
|
| City, State, Zip | EDMOND, OK 73013 | School System: |
Oklahoma City #89 |
|
|
Country: (If noted) |
Land Size: |
0.1607 Acres |
||
|
Land Value: 11,900 |
|
|||
|
Sect 28-T13N-R3W Qtr SW |
EAST BRITTON ADD
Block
023
Lot
000
|
|||
| Full Legal Description: EAST BRITTON ADD 023 000 LOTS 7 & 8 |
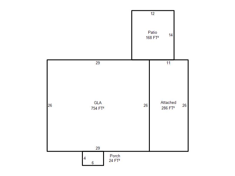
| Photo & Sketch (if available) | Comp Sales (ordered by relevancy) |
|
||||||||||||||||||
|
||||||||||||||||||||
| Value History (*The County Treasurer 405-713-1300 posts & collects actual tax amounts. Contact information HERE) | |||||||||||||
|---|---|---|---|---|---|---|---|---|---|---|---|---|---|
| Year | Market Value | Taxable Mkt Value | Gross Assessed | Exemption | Net Assessed | Millage | Est. Tax | Tax Savings | |||||
|
2026 |
85,000 |
59,632 |
6,559 |
0 |
6,559 |
122.90 |
$806 |
$343 |
|||||
|
2025 |
83,000 |
56,793 |
6,246 |
0 |
6,246 |
122.90 |
$768 |
$354 |
|||||
|
2024 |
76,000 |
54,089 |
5,949 |
0 |
5,949 |
123.89 |
$737 |
$299 |
|||||
|
2023 |
76,000 |
51,514 |
5,665 |
0 |
5,665 |
122.82 |
$696 |
$331 |
|||||
|
2022 |
63,000 |
49,061 |
5,395 |
0 |
5,395 |
117.63 |
$635 |
$180 |
|||||
| Property Account Status/Adjustments/Exemptions | ||
|---|---|---|
| Account # | Exemption Description | Amount |
|
R130201950 |
5% Capped Account |
0 |
| Property Deed Transaction History (Recorded in the County Clerk's Office) | |||||||
|---|---|---|---|---|---|---|---|
| Date | Type | Book | Page | Price | Grantor | Grantee | |
|
3/3/2006 |
|
|
$0 |
HALSNE RANDOLPH C & ROSEMARY T |
HALSNE REAL ESTATE ACCOUNT LLC |
||
|
1/13/2005 |
|
Deeds |
$36,000 |
GOAD DARREN R GOAD MICHELLE L |
HALSNE RANDOLPH C & ROSEMARY T |
||
|
9/30/2000 |
|
Deeds |
$11,000 |
STEVENS JOHN S & MARGARET K |
GOAD DARREN R GOAD MICHELLE L |
||
|
8/5/1970 |
|
Historical |
$0 |
|
STEVENS JOHN S & MARGARET K |
||
| Last Mailed Notice of Value (N.O.V.) Information/History | ||||||||
|---|---|---|---|---|---|---|---|---|
| Year | Date | Market Value | Taxable Market Value | Gross Assessed | Exemption | Net Assessed | ||
|
2026 |
02/23/2026 |
85,000 |
59,632 |
6,559 |
0 |
6,559 |
||
|
2025 |
02/14/2025 |
83,000 |
56,793 |
6,246 |
0 |
6,246 |
||
|
2024 |
02/13/2024 |
76,000 |
54,089 |
5,949 |
0 |
5,949 |
||
|
2023 |
02/14/2023 |
76,000 |
51,514 |
5,665 |
0 |
5,665 |
||
|
2022 |
03/15/2022 |
63,000 |
49,061 |
5,395 |
0 |
5,395 |
||
| Property Building Permit History | |||||||||||
|---|---|---|---|---|---|---|---|---|---|---|---|
| Issued | Permit # | Provided by | Bldg # | Description | Est Construction Cost | Status | |||||
| No Building Permit records returned. | |||||||||||
| Click button on building number to access detailed information: | ||||||
|---|---|---|---|---|---|---|
| Bldg # | Vacant/Improved Land | Bldg Description | Year Built | SqFt | # Stories | |
|
1 |
Improved |
Ranch 1 Story |
1961 |
754 |
1 Stories |
|