Larry Stein Oklahoma County Assessor (405) 713-1200 - Public Access System
Home Contact Us Guest Book Map Search New Search
Real Property Display - Screen Produced   4/25/2026 8:06:42 PM 
Account: R121071120  Type: Residential

  

Location:

3535 SHARON AVE

Building Name/Occupant:

 

UNINCORPORATED

Owner Name 1:  KESLER KRIS A

Parcel PIN#:

1057-12-107-1120

Owner Name 2:  KESLER MYRANNA K 1/4 section #:

1057

Owner Name 3:    Parent Acct:

 

Billing Address:  PO BOX 246 Tax District:

City, State, Zip  HARRAH, OK  73045 School System:

Harrah #7

Country: (If noted)

  

Land Size:

2.6900  Acres

Personal Property

Land Value: 48,420 

Treasurer:

Sect 15-T11N-R1E Qtr NE

 DUGGAN HEIGHTS SEC II   Block 000  Lot 013   Subdivision Sales
 Full Legal Description:  DUGGAN HEIGHTS SEC II LOT 013

NOTE:  The following sales may or may not be used to determine Fair Market Value

Photo & Sketch (if available) Sales  Sales Report

 19675 SE 31ST ST UNINCORPORATED, OK

11/24/2025

 $268,000 

 19625 SE 31ST ST UNINCORPORATED, OK

08/01/2024

 $254,000 

 3600 SHARON AVE UNINCORPORATED, OK

03/28/2022

 $305,000 

 3005 SHARON AVE UNINCORPORATED, OK

04/24/2025

 $235,000 

 3568 SHARON AVE UNINCORPORATED, OK

04/13/2022

 $251,000 

 19730 SE 29TH ST UNINCORPORATED, OK

09/29/2023

 $294,000 

Value History  (*The County Treasurer 405-713-1300 posts & collects actual tax amounts.  Contact information  HERE)
Year Market Value Taxable Mkt Value Gross Assessed Exemption Net Assessed Millage Est. Tax Tax Savings

2026

370,500 

302,691 

33,295 

1,000 

32,295 

107.54 

$3,473 

$910 

2025

401,500 

293,875 

32,325 

1,000 

31,325 

107.54 

$3,369 

$1,381 

2024

373,500 

285,316 

31,384 

1,000 

30,384 

110.62 

$3,361 

$1,184 

[1/10]
Property Account Status/Adjustments/Exemptions
Account # Exemption Description Amount

R121071120

3% Cap Homestead

R121071120

Homestead

1,000 

Property Deed Transaction History   (Recorded in the County Clerk's Office)
Date Type Book Page Price Grantor Grantee

5/17/2018

Deeds

13739

622

 $255,000 

TAFT TIMOTHY E & MELISSA S

KESLER KRIS A

2/18/2014

Deeds

12472

1463

 $22,500 

HAMBY DERALD & AMY

TAFT TIMOTHY E & MELISSA S

2/8/2014

Deeds

12472

1453

 $0 

WARE ANNE MADELINE TRS

HAMBY DERALD & AMY

[1/2]
Last Mailed Notice of Value (N.O.V.) Information/History
Year Date Market Value Taxable Market Value Gross Assessed Exemption Net Assessed

2026

02/06/2026

370,500 

302,691 

33,295 

1,000 

32,295 

2025

01/31/2025

401,500 

293,875 

32,325 

1,000 

31,325 

2024

01/22/2024

373,500 

285,316 

31,384 

1,000 

30,384 

[1/4]
Property Building Permit History
Issued Permit # Provided by Bldg # Description Est Construction Cost Status

8/15/2014

10465497

COUNTY

1

Main Dwellin

200,000 

Inactive

Click button below to access detailed information and additional property photos:
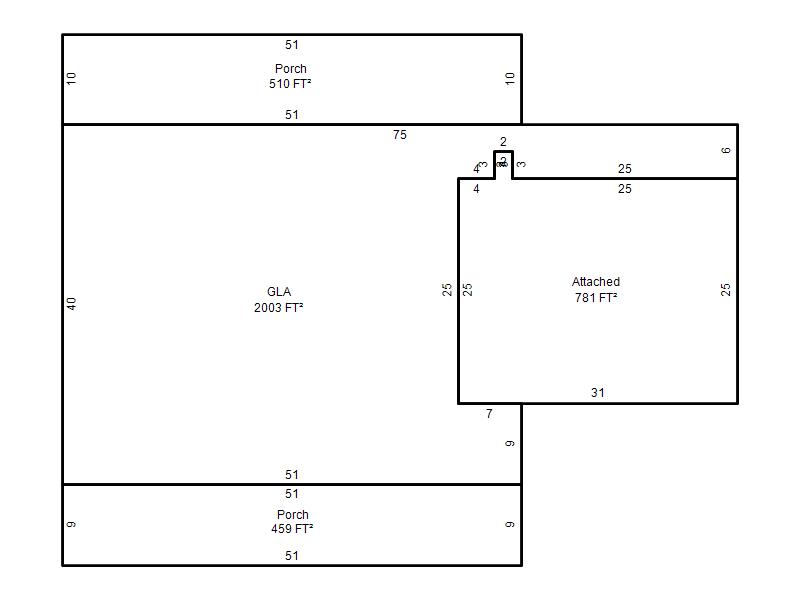
  Bldg # Vacant/Improved Land Bldg Description Year Built SqFt # Stories

Click

1

Improved

Ranch 1 Story

2015

2,003 

1 Stories