|
|
|
| Larry Stein Oklahoma County Assessor (405) 713-1200 - Public Access System |
|
|
|
|
|
|
| Real Property Display - Screen Produced 3/5/2026 5:02:44 AM | ||||
|---|---|---|---|---|
| Account: R130840565 | Type: Residential | Location: |
1008 NW 101ST ST |
|
| Building Name/Occupant: |
|
OKLAHOMA CITY |
||
| Owner Name 1: | GDS HOLDINGS LLC |
Parcel PIN#: |
3712-13-084-0565 |
|
| Owner Name 2: | SERIES 1008 NW 101ST ST | 1/4 section #: |
3712 |
|
| Owner Name 3: | Parent Acct: |
3712-13-084-0560 |
||
| Billing Address: | 2000 NW 39TH ST | Tax District: |
|
|
| City, State, Zip | OKLAHOMA CITY, OK 73118-2614 | School System: |
Oklahoma City #89 |
|
|
Country: (If noted) |
Land Size: |
0.1607 Acres |
||
|
Land Value: 16,450 |
|
|||
|
Sect 28-T13N-R3W Qtr NW |
HOMEDALE ADDITION
Block
001
Lot
000
|
|||
| Full Legal Description: HOMEDALE ADDITION 001 000 LOTS 21 & 22 |
| Photo & Sketch (if available) | Comp Sales (ordered by relevancy) |
|
||||||||||||||||||
|
||||||||||||||||||||
| Value History (*The County Treasurer 405-713-1300 posts & collects actual tax amounts. Contact information HERE) | |||||||||||||
|---|---|---|---|---|---|---|---|---|---|---|---|---|---|
| Year | Market Value | Taxable Mkt Value | Gross Assessed | Exemption | Net Assessed | Millage | Est. Tax | Tax Savings | |||||
|
2025 |
97,000 |
65,428 |
7,196 |
0 |
7,196 |
122.90 |
$885 |
$427 |
|||||
|
2024 |
87,500 |
62,313 |
6,854 |
0 |
6,854 |
123.89 |
$849 |
$343 |
|||||
|
2023 |
86,500 |
59,346 |
6,527 |
0 |
6,527 |
122.82 |
$802 |
$367 |
|||||
|
2022 |
69,000 |
56,520 |
6,216 |
0 |
6,216 |
117.63 |
$731 |
$161 |
|||||
|
2021 |
62,500 |
53,829 |
5,920 |
0 |
5,920 |
117.70 |
$697 |
$112 |
|||||
| Property Account Status/Adjustments/Exemptions | ||
|---|---|---|
| Account # | Exemption Description | Amount |
|
R130840565 |
5% Capped Account |
0 |
| Property Deed Transaction History (Recorded in the County Clerk's Office) | |||||||
|---|---|---|---|---|---|---|---|
| Date | Type | Book | Page | Price | Grantor | Grantee | |
|
1/1/2016 |
|
Hmstd Off & |
$0 |
SILVERNAIL LLC |
GDS HOLDINGS LLC |
||
|
10/28/1999 |
|
Deeds |
$20,500 |
ROBERTSON EDITH |
SILVERNAIL LLC |
||
| Last Mailed Notice of Value (N.O.V.) Information/History | ||||||||
|---|---|---|---|---|---|---|---|---|
| Year | Date | Market Value | Taxable Market Value | Gross Assessed | Exemption | Net Assessed | ||
|
2026 |
02/23/2026 |
99,000 |
68,699 |
7,556 |
0 |
7,556 |
||
|
2025 |
02/14/2025 |
97,000 |
65,428 |
7,196 |
0 |
7,196 |
||
|
2024 |
02/13/2024 |
87,500 |
62,313 |
6,854 |
0 |
6,854 |
||
|
2023 |
02/14/2023 |
86,500 |
59,346 |
6,527 |
0 |
6,527 |
||
|
2022 |
03/15/2022 |
69,000 |
56,520 |
6,216 |
0 |
6,216 |
||
| Property Building Permit History | ||||||
|---|---|---|---|---|---|---|
| Issued | Permit # | Provided by | Bldg # | Description | Est Construction Cost | Status |
|
10/10/2000 |
10228931 |
OKLAHOMA CITY |
1 |
Burn - Trip |
40,000 |
Inactive |
| Click button on building number to access detailed information: | ||||||
|---|---|---|---|---|---|---|
| Bldg # | Vacant/Improved Land | Bldg Description | Year Built | SqFt | # Stories | |
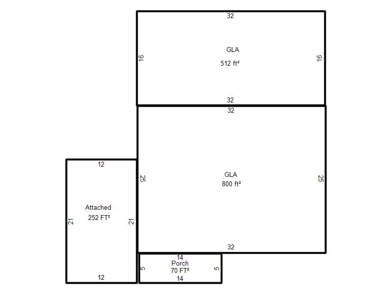
|
1 |
Improved |
Ranch 1 Story |
1948 |
1,312 |
1 Stories |
|