|
|
|
| Larry Stein Oklahoma County Assessor (405) 713-1200 - Public Access System |
|
|
|
|
|
|
| Real Property Display - Screen Produced 4/1/2026 9:44:28 AM | ||||
|---|---|---|---|---|
| Account: R103751395 | Type: Residential | Location: |
1229 NW 101ST ST |
|
| Building Name/Occupant: |
|
OKLAHOMA CITY |
||
| Owner Name 1: | JENKINS LEROY |
Parcel PIN#: |
3713-10-375-1395 |
|
| Owner Name 2: | 1/4 section #: |
3713 |
||
| Owner Name 3: | Parent Acct: |
|
||
| Billing Address: | 7200 BROADWAY EXT | Tax District: |
|
|
| City, State, Zip | OKLAHOMA CITY, OK 73116-9010 | School System: |
Oklahoma City #89 |
|
|
Country: (If noted) |
Land Size: |
0.1566 Acres |
||
|
Land Value: 23,870 |
|
|||
|
Sect 29-T13N-R3W Qtr NE |
WESTERN VILLAGE
Block
002
Lot
008
|
|||
| Full Legal Description: WESTERN VILLAGE 002 008 |
| Photo & Sketch (if available) | Comp Sales (ordered by relevancy) |
|
||||||||||||||||||
|
||||||||||||||||||||
| Value History (*The County Treasurer 405-713-1300 posts & collects actual tax amounts. Contact information HERE) | |||||||||||||
|---|---|---|---|---|---|---|---|---|---|---|---|---|---|
| Year | Market Value | Taxable Mkt Value | Gross Assessed | Exemption | Net Assessed | Millage | Est. Tax | Tax Savings | |||||
|
2026 |
111,000 |
87,903 |
9,668 |
0 |
9,668 |
122.90 |
$1,188 |
$312 |
|||||
|
2025 |
111,500 |
83,718 |
9,208 |
0 |
9,208 |
122.90 |
$1,132 |
$376 |
|||||
|
2024 |
107,000 |
79,732 |
8,769 |
0 |
8,769 |
123.89 |
$1,087 |
$372 |
|||||
|
2023 |
105,000 |
75,936 |
8,352 |
0 |
8,352 |
122.82 |
$1,026 |
$393 |
|||||
|
2022 |
81,500 |
72,320 |
7,953 |
0 |
7,953 |
117.63 |
$936 |
$119 |
|||||
| Property Account Status/Adjustments/Exemptions | ||
|---|---|---|
| Account # | Exemption Description | Amount |
|
R103751395 |
5% Capped Account |
0 |
| Property Deed Transaction History (Recorded in the County Clerk's Office) | |||||||
|---|---|---|---|---|---|---|---|
| Date | Type | Book | Page | Price | Grantor | Grantee | |
|
10/8/1993 |
|
Historical |
$16,251 |
SECRETARY OF HOUSING |
JENKINS LEROY |
||
|
7/2/1993 |
|
Historical |
$0 |
BRUNER SAMPSON D & CAROLYN M |
SECRETARY OF HOUSING |
||
|
7/20/1989 |
|
Historical |
$34,000 |
BRIGGS CHERYL I |
BRUNER SAMPSON D & CAROLYN M |
||
|
8/1/1980 |
|
Historical |
$0 |
|
BRIGGS CHERYL I |
||
| Last Mailed Notice of Value (N.O.V.) Information/History | ||||||||
|---|---|---|---|---|---|---|---|---|
| Year | Date | Market Value | Taxable Market Value | Gross Assessed | Exemption | Net Assessed | ||
|
2026 |
02/23/2026 |
111,000 |
87,903 |
9,668 |
0 |
9,668 |
||
|
2025 |
02/14/2025 |
111,500 |
83,718 |
9,208 |
0 |
9,208 |
||
|
2024 |
02/13/2024 |
107,000 |
79,732 |
8,769 |
0 |
8,769 |
||
|
2023 |
02/14/2023 |
105,000 |
75,936 |
8,352 |
0 |
8,352 |
||
|
2022 |
03/15/2022 |
81,500 |
72,320 |
7,953 |
0 |
7,953 |
||
| Property Building Permit History | |||||||||||
|---|---|---|---|---|---|---|---|---|---|---|---|
| Issued | Permit # | Provided by | Bldg # | Description | Est Construction Cost | Status | |||||
| No Building Permit records returned. | |||||||||||
| Click button on building number to access detailed information: | ||||||
|---|---|---|---|---|---|---|
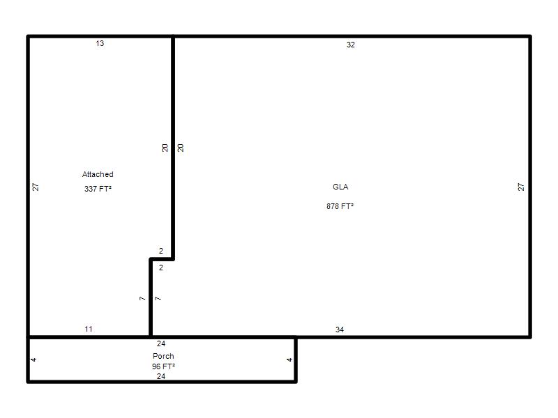
| Bldg # | Vacant/Improved Land | Bldg Description | Year Built | SqFt | # Stories | |
|
1 |
Improved |
Ranch 1 Story |
1961 |
878 |
1 Stories |
|