|
|
|
| Larry Stein Oklahoma County Assessor (405) 713-1200 - Public Access System |
|
|
|
|
|
|
| Real Property Display - Screen Produced 4/2/2026 7:03:25 AM | ||||
|---|---|---|---|---|
| Account: R130651185 | Type: Residential | Location: |
1421 NW 102ND ST |
|
| Building Name/Occupant: |
|
OKLAHOMA CITY |
||
| Owner Name 1: | VELTE PATRICIA J |
Parcel PIN#: |
3713-13-065-1185 |
|
| Owner Name 2: | 1/4 section #: |
3713 |
||
| Owner Name 3: | Parent Acct: |
|
||
| Billing Address: | 1421 NW 102ND ST | Tax District: |
|
|
| City, State, Zip | OKLAHOMA CITY, OK 73114-4925 | School System: |
Oklahoma City #89 |
|
|
Country: (If noted) |
Land Size: |
0.2140 Acres |
||
|
Land Value: 32,634 |
|
|||
|
Sect 29-T13N-R3W Qtr NE |
J W RICHARDSON P P VIL 1ST
Block
002
Lot
012
|
|||
| Full Legal Description: J W RICHARDSON P P VIL 1ST 002 012 |
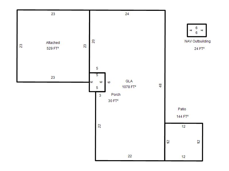
| Photo & Sketch (if available) | Comp Sales (ordered by relevancy) |
|
||||||||||||||||||
|
||||||||||||||||||||
| Value History (*The County Treasurer 405-713-1300 posts & collects actual tax amounts. Contact information HERE) | |||||||||||||
|---|---|---|---|---|---|---|---|---|---|---|---|---|---|
| Year | Market Value | Taxable Mkt Value | Gross Assessed | Exemption | Net Assessed | Millage | Est. Tax | Tax Savings | |||||
|
2026 |
132,000 |
90,570 |
9,962 |
1,000 |
8,962 |
122.90 |
$1,102 |
$683 |
|||||
|
2025 |
133,000 |
87,933 |
9,671 |
1,000 |
8,671 |
122.90 |
$1,066 |
$732 |
|||||
|
2024 |
127,500 |
85,372 |
9,390 |
1,000 |
8,390 |
123.89 |
$1,040 |
$698 |
|||||
|
2023 |
125,000 |
82,886 |
9,116 |
1,000 |
8,116 |
122.82 |
$997 |
$692 |
|||||
|
2022 |
97,500 |
80,472 |
8,850 |
1,000 |
7,850 |
117.63 |
$924 |
$338 |
|||||
| Property Account Status/Adjustments/Exemptions | ||
|---|---|---|
| Account # | Exemption Description | Amount |
|
R130651185 |
3% Cap Homestead |
0 |
|
R130651185 |
Homestead |
1,000 |
| Property Deed Transaction History (Recorded in the County Clerk's Office) | |||||||
|---|---|---|---|---|---|---|---|
| Date | Type | Book | Page | Price | Grantor | Grantee | |
|
12/1/1977 |
|
Historical |
$0 |
|
VELTE PATRICIA J |
||
| Last Mailed Notice of Value (N.O.V.) Information/History | ||||||||
|---|---|---|---|---|---|---|---|---|
| Year | Date | Market Value | Taxable Market Value | Gross Assessed | Exemption | Net Assessed | ||
|
2026 |
02/23/2026 |
132,000 |
90,570 |
9,962 |
1,000 |
8,962 |
||
|
2025 |
02/14/2025 |
133,000 |
87,933 |
9,671 |
1,000 |
8,671 |
||
|
2024 |
02/13/2024 |
127,500 |
85,372 |
9,390 |
1,000 |
8,390 |
||
|
2023 |
02/14/2023 |
125,000 |
82,886 |
9,116 |
1,000 |
8,116 |
||
|
2022 |
03/15/2022 |
97,500 |
80,472 |
8,850 |
1,000 |
7,850 |
||
| Property Building Permit History | ||||||
|---|---|---|---|---|---|---|
| Issued | Permit # | Provided by | Bldg # | Description | Est Construction Cost | Status |
|
9/16/2013 |
10455777 |
OKLAHOMA CITY |
1 |
Remodeled |
3,000 |
Inactive |
| Click button on building number to access detailed information: | ||||||
|---|---|---|---|---|---|---|
| Bldg # | Vacant/Improved Land | Bldg Description | Year Built | SqFt | # Stories | |
|
1 |
Improved |
Ranch 1 Story |
1961 |
1,078 |
1 Stories |
|