|
|
|
| Larry Stein Oklahoma County Assessor (405) 713-1200 - Public Access System |
|
|
|
|
|
|
| Real Property Display - Screen Produced 4/6/2026 4:08:30 AM | ||||
|---|---|---|---|---|
| Account: R130651345 | Type: Residential | Location: |
10208 N MCKINLEY AVE |
|
| Building Name/Occupant: |
|
OKLAHOMA CITY |
||
| Owner Name 1: | CERVANTES JUANA |
Parcel PIN#: |
3713-13-065-1345 |
|
| Owner Name 2: | CERVANTES DAVID VICTOR | 1/4 section #: |
3713 |
|
| Owner Name 3: | Parent Acct: |
|
||
| Billing Address: | 10208 N MCKINLEY AVE | Tax District: |
|
|
| City, State, Zip | OKLAHOMA CITY, OK 73114-4936 | School System: |
Oklahoma City #89 |
|
|
Country: (If noted) |
Land Size: |
0.1439 Acres |
||
|
Land Value: 21,939 |
|
|||
|
Sect 29-T13N-R3W Qtr NE |
J W RICHARDSON P P VIL 1ST
Block
003
Lot
000
|
|||
| Full Legal Description: J W RICHARDSON P P VIL 1ST 003 000 ELY 6FT LOT 13 & ALL LOT 14 |
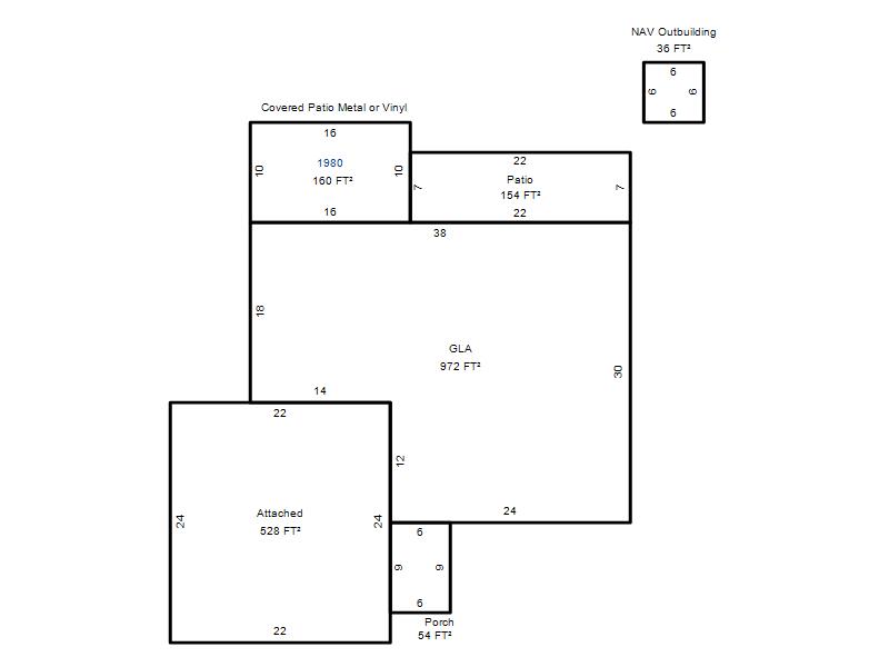
| Photo & Sketch (if available) | Comp Sales (ordered by relevancy) |
|
||||||||||||||||||
|
||||||||||||||||||||
| Value History (*The County Treasurer 405-713-1300 posts & collects actual tax amounts. Contact information HERE) | |||||||||||||
|---|---|---|---|---|---|---|---|---|---|---|---|---|---|
| Year | Market Value | Taxable Mkt Value | Gross Assessed | Exemption | Net Assessed | Millage | Est. Tax | Tax Savings | |||||
|
2026 |
148,500 |
96,272 |
10,589 |
1,000 |
9,589 |
122.90 |
$1,179 |
$829 |
|||||
|
2025 |
147,500 |
93,468 |
10,281 |
1,000 |
9,281 |
122.90 |
$1,141 |
$853 |
|||||
|
2024 |
141,500 |
90,746 |
9,981 |
1,000 |
8,981 |
123.89 |
$1,113 |
$816 |
|||||
|
2023 |
137,500 |
88,103 |
9,691 |
1,000 |
8,691 |
122.82 |
$1,067 |
$790 |
|||||
|
2022 |
107,500 |
85,537 |
9,409 |
1,000 |
8,409 |
117.63 |
$989 |
$402 |
|||||
| Property Account Status/Adjustments/Exemptions | ||
|---|---|---|
| Account # | Exemption Description | Amount |
|
R130651345 |
3% Cap Homestead |
0 |
|
R130651345 |
Homestead |
1,000 |
| Property Deed Transaction History (Recorded in the County Clerk's Office) | |||||||
|---|---|---|---|---|---|---|---|
| Date | Type | Book | Page | Price | Grantor | Grantee | |
|
6/10/2002 |
|
Deeds |
$53,000 |
CLIFTON DEMETRICK L |
CERVANTES JUANA |
||
|
2/15/2002 |
|
Deeds |
$18,000 |
ROBINETTE VIRGINIA O |
CLIFTON DEMETRICK L |
||
|
5/1/1976 |
|
Historical |
$0 |
|
ROBINETTE VIRGINIA O |
||
| Last Mailed Notice of Value (N.O.V.) Information/History | ||||||||
|---|---|---|---|---|---|---|---|---|
| Year | Date | Market Value | Taxable Market Value | Gross Assessed | Exemption | Net Assessed | ||
|
2026 |
02/23/2026 |
148,500 |
96,272 |
10,589 |
1,000 |
9,589 |
||
|
2025 |
02/14/2025 |
147,500 |
93,468 |
10,281 |
1,000 |
9,281 |
||
|
2024 |
02/13/2024 |
141,500 |
90,746 |
9,981 |
1,000 |
8,981 |
||
|
2023 |
02/14/2023 |
137,500 |
88,103 |
9,691 |
1,000 |
8,691 |
||
|
2022 |
03/15/2022 |
107,500 |
85,537 |
9,409 |
1,000 |
8,409 |
||
| Property Building Permit History | |||||||||||
|---|---|---|---|---|---|---|---|---|---|---|---|
| Issued | Permit # | Provided by | Bldg # | Description | Est Construction Cost | Status | |||||
| No Building Permit records returned. | |||||||||||
| Click button on building number to access detailed information: | ||||||
|---|---|---|---|---|---|---|
| Bldg # | Vacant/Improved Land | Bldg Description | Year Built | SqFt | # Stories | |
|
1 |
Improved |
Ranch 1 Story |
1960 |
972 |
1 Stories |
|