|
|
|
| Larry Stein Oklahoma County Assessor (405) 713-1200 - Public Access System |
|
|
|
|
|
|
| Real Property Display - Screen Produced 3/3/2026 11:07:16 AM | ||||
|---|---|---|---|---|
| Account: R130641200 | Type: Residential | Location: |
1137 NW 95TH ST |
|
| Building Name/Occupant: |
|
OKLAHOMA CITY |
||
| Owner Name 1: | CARRILLO VINCENTE & ODETT |
Parcel PIN#: |
3714-13-064-1200 |
|
| Owner Name 2: | 1/4 section #: |
3714 |
||
| Owner Name 3: | Parent Acct: |
|
||
| Billing Address: | 1137 NW 95TH ST | Tax District: |
|
|
| City, State, Zip | OKLAHOMA CITY, OK 73114-4701 | School System: |
Oklahoma City #89 |
|
|
Country: (If noted) |
Land Size: |
0.2410 Acres |
||
|
Land Value: 27,300 |
|
|||
|
Sect 29-T13N-R3W Qtr SE |
ALTAVUE ADDITION
Block
003
Lot
000
|
|||
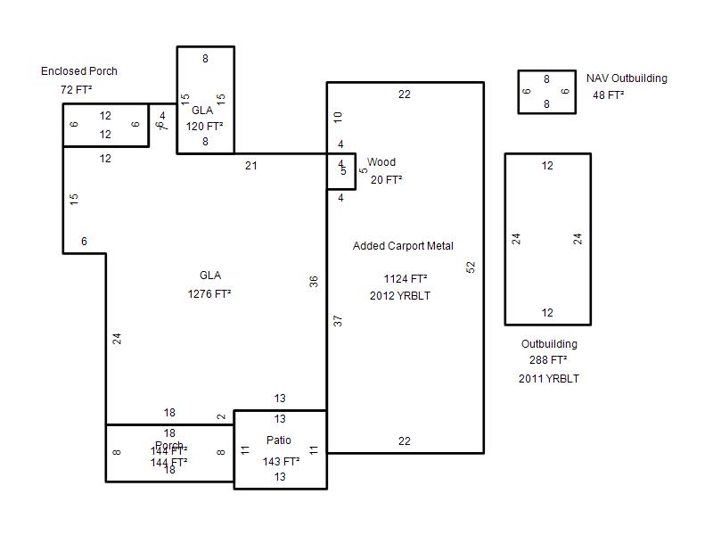
| Full Legal Description: ALTAVUE ADDITION 003 000 LOTS 24 THRU 26 |
| Photo & Sketch (if available) | Comp Sales (ordered by relevancy) |
|
||||||||||||||||||
|
||||||||||||||||||||
| Value History (*The County Treasurer 405-713-1300 posts & collects actual tax amounts. Contact information HERE) | |||||||||||||
|---|---|---|---|---|---|---|---|---|---|---|---|---|---|
| Year | Market Value | Taxable Mkt Value | Gross Assessed | Exemption | Net Assessed | Millage | Est. Tax | Tax Savings | |||||
|
2025 |
171,000 |
111,158 |
12,227 |
0 |
12,227 |
122.90 |
$1,503 |
$809 |
|||||
|
2024 |
165,500 |
105,865 |
11,644 |
0 |
11,644 |
123.89 |
$1,443 |
$813 |
|||||
|
2023 |
155,500 |
100,824 |
11,090 |
0 |
11,090 |
122.82 |
$1,362 |
$739 |
|||||
|
2022 |
118,000 |
96,023 |
10,561 |
0 |
10,561 |
117.63 |
$1,242 |
$284 |
|||||
|
2021 |
108,000 |
91,451 |
10,059 |
0 |
10,059 |
117.70 |
$1,184 |
$214 |
|||||
| Property Account Status/Adjustments/Exemptions | ||
|---|---|---|
| Account # | Exemption Description | Amount |
|
R130641200 |
5% Capped Account |
0 |
| Property Deed Transaction History (Recorded in the County Clerk's Office) | ||||||||||
|---|---|---|---|---|---|---|---|---|---|---|
| Date | Type | Book | Page | Price | Grantor | Grantee | ||||
|
10/30/2006 |
|
Deeds |
$76,000 |
WARRIOR HOLDINGS LLC |
CARRILLO VINCENTE & ODETT |
|||||
|
5/2/2005 |
|
Deeds |
$21,000 |
HOUSEHOLD FINANCE CORP III |
WARRIOR HOLDINGS LLC |
|||||
|
3/21/2005 |
|
Hmstd Off & |
$0 |
GIBSON DAVID & SHEILA HENDERSON ROLLIN & SANDRA |
HOUSEHOLD FINANCE CORP III |
|||||
|
12/17/1999 |
|
Deeds |
$0 |
GIBSON DAVID & SHEILA |
GIBSON DAVID & SHEILA HENDERSON ROLLIN & SANDRA |
|||||
|
12/18/1998 |
|
Historical |
$16,500 |
MIGHTON SHERRI L |
GIBSON DAVID & SHEILA |
|||||
| Last Mailed Notice of Value (N.O.V.) Information/History | ||||||||
|---|---|---|---|---|---|---|---|---|
| Year | Date | Market Value | Taxable Market Value | Gross Assessed | Exemption | Net Assessed | ||
|
2026 |
02/23/2026 |
167,500 |
116,715 |
12,838 |
0 |
12,838 |
||
|
2025 |
02/14/2025 |
171,000 |
111,158 |
12,227 |
0 |
12,227 |
||
|
2024 |
02/13/2024 |
165,500 |
105,865 |
11,644 |
0 |
11,644 |
||
|
2023 |
02/14/2023 |
155,500 |
100,824 |
11,090 |
0 |
11,090 |
||
|
2022 |
03/15/2022 |
118,000 |
96,023 |
10,561 |
0 |
10,561 |
||
| Property Building Permit History | ||||||
|---|---|---|---|---|---|---|
| Issued | Permit # | Provided by | Bldg # | Description | Est Construction Cost | Status |
|
10/22/2010 |
10413910 |
OKLAHOMA CITY |
1 |
Storage Buil |
1,000 |
Inactive |
| Click button on building number to access detailed information: | ||||||
|---|---|---|---|---|---|---|
| Bldg # | Vacant/Improved Land | Bldg Description | Year Built | SqFt | # Stories | |
|
1 |
Improved |
Ranch 1 Story |
1929 |
1,396 |
1 Stories |
|