|
|
|
| Larry Stein Oklahoma County Assessor (405) 713-1200 - Public Access System |
|
|
|
|
|
|
| Real Property Display - Screen Produced 3/5/2026 3:26:58 AM | ||||
|---|---|---|---|---|
| Account: R130642050 | Type: Residential | Location: |
1115 NW 97TH ST |
|
| Building Name/Occupant: |
|
OKLAHOMA CITY |
||
| Owner Name 1: | LMRK OWNER I LLC |
Parcel PIN#: |
3714-13-064-2050 |
|
| Owner Name 2: | 1/4 section #: |
3714 |
||
| Owner Name 3: | Parent Acct: |
|
||
| Billing Address: | 345 HERITAGE AVE, Unit 130 | Tax District: |
|
|
| City, State, Zip | PORTSMOUTH, NH 03802-3809 | School System: |
Oklahoma City #89 |
|
|
Country: (If noted) |
Land Size: |
0.1607 Acres |
||
|
Land Value: 18,200 |
|
|||
|
Sect 29-T13N-R3W Qtr SE |
ALTAVUE ADDITION
Block
005
Lot
000
|
|||
| Full Legal Description: ALTAVUE ADDITION 005 000 LOTS 13 & 14 |
| Photo & Sketch (if available) | Comp Sales (ordered by relevancy) |
|
||||||||||||||||||
|
||||||||||||||||||||
| Value History (*The County Treasurer 405-713-1300 posts & collects actual tax amounts. Contact information HERE) | |||||||||||||
|---|---|---|---|---|---|---|---|---|---|---|---|---|---|
| Year | Market Value | Taxable Mkt Value | Gross Assessed | Exemption | Net Assessed | Millage | Est. Tax | Tax Savings | |||||
|
2025 |
87,500 |
87,500 |
9,625 |
0 |
9,625 |
122.90 |
$1,183 |
$0 |
|||||
|
2024 |
85,000 |
67,252 |
7,397 |
0 |
7,397 |
123.89 |
$917 |
$242 |
|||||
|
2023 |
81,500 |
64,050 |
7,045 |
0 |
7,045 |
122.82 |
$865 |
$236 |
|||||
|
2022 |
61,000 |
61,000 |
6,710 |
0 |
6,710 |
117.63 |
$789 |
$0 |
|||||
|
2021 |
66,000 |
66,000 |
7,260 |
0 |
7,260 |
117.70 |
$855 |
$0 |
|||||
| Property Account Status/Adjustments/Exemptions | ||
|---|---|---|
| Account # | Exemption Description | Amount |
|
R130642050 |
5% Capped Account |
0 |
| Property Deed Transaction History (Recorded in the County Clerk's Office) | ||||||||||
|---|---|---|---|---|---|---|---|---|---|---|
| Date | Type | Book | Page | Price | Grantor | Grantee | ||||
|
11/12/2025 |
|
Hmstd Off & |
$0 |
TH PROPERTY OWNER I LLC |
LMRK OWNER I LLC |
|||||
|
10/30/2024 |
|
Mult Parcel |
$1,311,000 |
PRARIE PROPERTY SOLUTIONS LLC |
TH PROPERTY OWNER I LLC |
|||||
|
9/21/2020 |
|
Deeds |
$67,000 |
SANTILLAN ARTURO MISSAEL GONZALEZ |
PRARIE PROPERTY SOLUTIONS LLC |
|||||
|
5/1/2019 |
|
Hmstd Off & |
$0 |
GONZALEZ ARTURO |
SANTILLAN ARTURO MISSAEL GONZALEZ |
|||||
|
4/4/2019 |
|
Deeds |
$24,500 |
BRICK & MORTAR INVESTMENTS LLC |
GONZALEZ ARTURO |
|||||
| Last Mailed Notice of Value (N.O.V.) Information/History | ||||||||
|---|---|---|---|---|---|---|---|---|
| Year | Date | Market Value | Taxable Market Value | Gross Assessed | Exemption | Net Assessed | ||
|
2026 |
02/23/2026 |
92,000 |
91,875 |
10,106 |
0 |
10,106 |
||
|
2025 |
02/14/2025 |
87,500 |
87,500 |
9,625 |
0 |
9,625 |
||
|
2024 |
02/13/2024 |
85,000 |
67,252 |
7,397 |
0 |
7,397 |
||
|
2023 |
02/14/2023 |
81,500 |
64,050 |
7,045 |
0 |
7,045 |
||
|
2021 |
03/19/2021 |
66,000 |
66,000 |
7,260 |
0 |
7,260 |
||
| Property Building Permit History | |||||||||||
|---|---|---|---|---|---|---|---|---|---|---|---|
| Issued | Permit # | Provided by | Bldg # | Description | Est Construction Cost | Status | |||||
| No Building Permit records returned. | |||||||||||
| Click button on building number to access detailed information: | ||||||
|---|---|---|---|---|---|---|
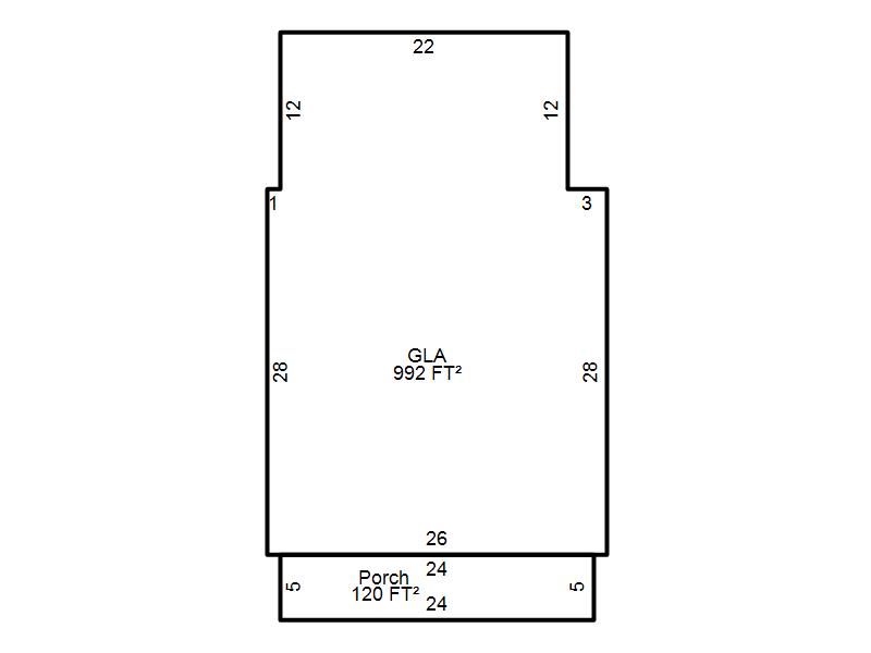
| Bldg # | Vacant/Improved Land | Bldg Description | Year Built | SqFt | # Stories | |
|
1 |
Improved |
Ranch 1 Story |
1915 |
992 |
1 Stories |
|