|
|
|
| Larry Stein Oklahoma County Assessor (405) 713-1200 - Public Access System |
|
|
|
|
|
|
| Real Property Display - Screen Produced 3/31/2026 11:51:49 PM | ||||
|---|---|---|---|---|
| Account: R153551800 | Type: Residential | Location: |
4612 SE 20TH ST |
|
| Building Name/Occupant: |
|
DEL CITY |
||
| Owner Name 1: | DAGGETT JANICE GAYLE REV LIV TRUST |
Parcel PIN#: |
1432-15-355-1800 |
|
| Owner Name 2: | 1/4 section #: |
1432 |
||
| Owner Name 3: | Parent Acct: |
|
||
| Billing Address: | 4612 SE 20TH ST | Tax District: |
|
|
| City, State, Zip | DEL CITY, OK 73115-4046 | School System: |
Mid-Del #52 |
|
|
Country: (If noted) |
Land Size: |
0.1915 Acres |
||
|
Land Value: 20,016 |
|
|||
|
Sect 8-T11N-R2W Qtr NW |
EPPERLY HEIGHTS 2ND
Block
003
Lot
010
|
|||
| Full Legal Description: EPPERLY HEIGHTS 2ND 003 010 |
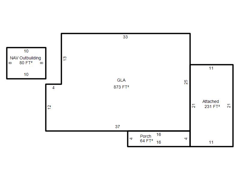
| Photo & Sketch (if available) | Comp Sales (ordered by relevancy) |
|
||||||||||||||||||
|
||||||||||||||||||||
| Value History (*The County Treasurer 405-713-1300 posts & collects actual tax amounts. Contact information HERE) | |||||||||||||
|---|---|---|---|---|---|---|---|---|---|---|---|---|---|
| Year | Market Value | Taxable Mkt Value | Gross Assessed | Exemption | Net Assessed | Millage | Est. Tax | Tax Savings | |||||
|
2026 |
89,500 |
46,500 |
5,115 |
2,000 |
3,115 |
114.72 |
$357 |
$772 |
|||||
|
2025 |
87,000 |
46,500 |
5,115 |
2,000 |
3,115 |
114.72 |
$357 |
$741 |
|||||
|
2024 |
80,500 |
46,500 |
5,115 |
2,000 |
3,115 |
117.21 |
$365 |
$673 |
|||||
|
2023 |
71,000 |
46,500 |
5,115 |
2,000 |
3,115 |
112.46 |
$350 |
$528 |
|||||
|
2022 |
63,500 |
46,500 |
5,115 |
2,000 |
3,115 |
110.76 |
$345 |
$429 |
|||||
| Property Account Status/Adjustments/Exemptions | ||
|---|---|---|
| Account # | Exemption Description | Amount |
|
R153551800 |
3% Cap Homestead |
0 |
|
R153551800 |
Freeze Senior Valuation |
0 |
|
R153551800 |
Homestead |
1,000 |
|
R153551800 |
Senior Additional Homestead |
1,000 |
| Property Deed Transaction History (Recorded in the County Clerk's Office) | |||||||
|---|---|---|---|---|---|---|---|
| Date | Type | Book | Page | Price | Grantor | Grantee | |
|
4/12/2023 |
|
Deeds |
$0 |
DAGGETT JANICE G |
DAGGETT JANICE GAYLE REV LIV TRUST |
||
|
6/27/2013 |
|
Deeds |
$33,000 |
HOMES OF OKC INC |
DAGGETT JANICE G |
||
|
1/30/2013 |
|
Deeds |
$18,000 |
JOBE RONALD D & CHERYL A |
HOMES OF OKC INC |
||
|
9/1/1974 |
|
Historical |
$0 |
|
JOBE RONALD D & CHERYL A |
||
| Last Mailed Notice of Value (N.O.V.) Information/History | ||||||||
|---|---|---|---|---|---|---|---|---|
| Year | Date | Market Value | Taxable Market Value | Gross Assessed | Exemption | Net Assessed | ||
|
2026 |
02/06/2026 |
89,500 |
46,500 |
5,115 |
2,000 |
3,115 |
||
|
2025 |
01/31/2025 |
87,000 |
46,500 |
5,115 |
2,000 |
3,115 |
||
|
2024 |
01/22/2024 |
80,500 |
46,500 |
5,115 |
2,000 |
3,115 |
||
|
2023 |
01/23/2023 |
71,000 |
46,500 |
5,115 |
2,000 |
3,115 |
||
|
2022 |
02/22/2022 |
63,500 |
46,500 |
5,115 |
2,000 |
3,115 |
||
| Property Building Permit History | |||||||||||
|---|---|---|---|---|---|---|---|---|---|---|---|
| Issued | Permit # | Provided by | Bldg # | Description | Est Construction Cost | Status | |||||
| No Building Permit records returned. | |||||||||||
| Click button on building number to access detailed information: | ||||||
|---|---|---|---|---|---|---|
| Bldg # | Vacant/Improved Land | Bldg Description | Year Built | SqFt | # Stories | |
|
1 |
Improved |
Ranch 1 Story |
1948 |
873 |
1 Stories |
|