|
|
|
| Larry Stein Oklahoma County Assessor (405) 713-1200 - Public Access System |
|
|
|
|
|
|
| Real Property Display - Screen Produced 3/3/2026 11:25:53 AM | ||||
|---|---|---|---|---|
| Account: R130645775 | Type: Residential | Location: |
1306 NW 96TH ST |
|
| Building Name/Occupant: |
|
OKLAHOMA CITY |
||
| Owner Name 1: | BRAVO COMPANY LLC |
Parcel PIN#: |
3714-13-064-5775 |
|
| Owner Name 2: | 1/4 section #: |
3714 |
||
| Owner Name 3: | Parent Acct: |
|
||
| Billing Address: | 436 NW 164TH ST | Tax District: |
|
|
| City, State, Zip | EDMOND, OK 73013-2028 | School System: |
Oklahoma City #89 |
|
|
Country: (If noted) |
Land Size: |
0.2410 Acres |
||
|
Land Value: 27,300 |
|
|||
|
Sect 29-T13N-R3W Qtr SE |
ALTAVUE ADDITION
Block
016
Lot
000
|
|||
| Full Legal Description: ALTAVUE ADDITION 016 000 LOTS 4 THRU 6 |
| No comparable sales report available. | ||||||||||||||||||||||
|
||||||||||||||||||||||
| Value History (*The County Treasurer 405-713-1300 posts & collects actual tax amounts. Contact information HERE) | |||||||||||||
|---|---|---|---|---|---|---|---|---|---|---|---|---|---|
| Year | Market Value | Taxable Mkt Value | Gross Assessed | Exemption | Net Assessed | Millage | Est. Tax | Tax Savings | |||||
|
2025 |
131,987 |
85,513 |
9,405 |
0 |
9,405 |
122.90 |
$1,156 |
$628 |
|||||
|
2024 |
119,761 |
81,441 |
8,957 |
0 |
8,957 |
123.89 |
$1,110 |
$522 |
|||||
|
2023 |
106,681 |
77,563 |
8,531 |
0 |
8,531 |
122.82 |
$1,048 |
$393 |
|||||
|
2022 |
96,391 |
73,870 |
8,124 |
0 |
8,124 |
117.63 |
$956 |
$291 |
|||||
|
2021 |
70,353 |
70,353 |
7,738 |
0 |
7,738 |
117.70 |
$911 |
$0 |
|||||
| Property Account Status/Adjustments/Exemptions | ||
|---|---|---|
| Account # | Exemption Description | Amount |
|
R130645775 |
5% Capped Account |
0 |
| Property Deed Transaction History (Recorded in the County Clerk's Office) | ||||||||||
|---|---|---|---|---|---|---|---|---|---|---|
| Date | Type | Book | Page | Price | Grantor | Grantee | ||||
|
3/17/2017 |
|
Deeds |
$19,000 |
CAMPBELL BILLY |
RITLA LLC |
|||||
|
3/17/2017 |
|
Deeds |
$26,500 |
RITLA LLC |
BRAVO COMPANY LLC |
|||||
|
6/9/2003 |
|
Hmstd Off & |
$0 |
CAMPBELL BRIAN D & SHERRY L |
CAMPBELL BILLY |
|||||
|
6/12/2002 |
|
Hmstd Off & |
$0 |
CAMPBELL LEE & AVA |
CAMPBELL BRIAN D & SHERRY L |
|||||
|
1/24/2000 |
|
Hmstd Off & |
$0 |
ADAMSON ADELLE |
BORNEMANN PHILLIP R ETAL |
|||||
| Last Mailed Notice of Value (N.O.V.) Information/History | ||||||||
|---|---|---|---|---|---|---|---|---|
| Year | Date | Market Value | Taxable Market Value | Gross Assessed | Exemption | Net Assessed | ||
|
2026 |
02/23/2026 |
127,967 |
89,788 |
9,876 |
0 |
9,876 |
||
|
2025 |
02/14/2025 |
131,987 |
85,513 |
9,405 |
0 |
9,405 |
||
|
2024 |
02/13/2024 |
119,761 |
81,441 |
8,957 |
0 |
8,957 |
||
|
2023 |
02/14/2023 |
106,681 |
77,563 |
8,531 |
0 |
8,531 |
||
|
2022 |
03/15/2022 |
96,391 |
73,870 |
8,124 |
0 |
8,124 |
||
| Property Building Permit History | |||||||||||
|---|---|---|---|---|---|---|---|---|---|---|---|
| Issued | Permit # | Provided by | Bldg # | Description | Est Construction Cost | Status | |||||
| No Building Permit records returned. | |||||||||||
| Click button on building number to access detailed information: | ||||||
|---|---|---|---|---|---|---|
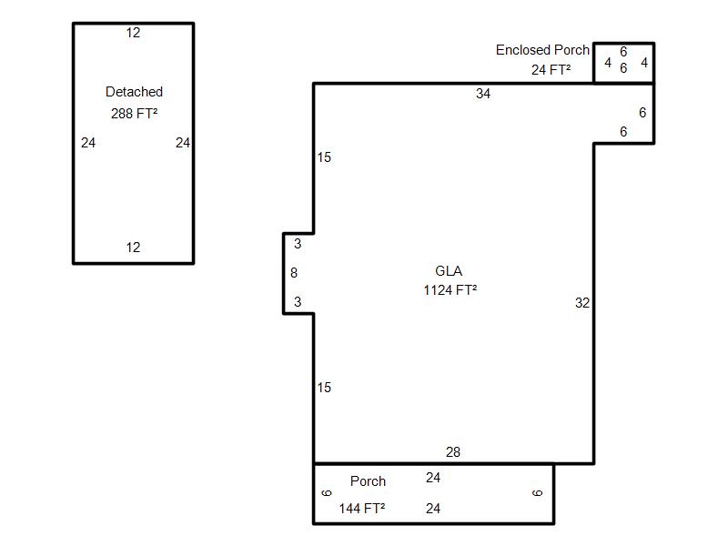
| Bldg # | Vacant/Improved Land | Bldg Description | Year Built | SqFt | # Stories | |
|
1 |
Improved |
Ranch 1 Story |
1916 |
1,124 |
1 Stories |
|
|
2 |
Improved |
Ranch 1 Story |
1916 |
264 |
1 Stories |
|