|
|
|
| Larry Stein Oklahoma County Assessor (405) 713-1200 - Public Access System |
|
|
|
|
|
|
| Real Property Display - Screen Produced 3/3/2026 12:51:19 PM | ||||
|---|---|---|---|---|
| Account: R130646750 | Type: Residential | Location: |
1332 NW 99TH ST |
|
| Building Name/Occupant: |
|
OKLAHOMA CITY |
||
| Owner Name 1: | RICE STEPHANEE |
Parcel PIN#: |
3714-13-064-6750 |
|
| Owner Name 2: | 1/4 section #: |
3714 |
||
| Owner Name 3: | Parent Acct: |
|
||
| Billing Address: | 1332 NW 99TH ST | Tax District: |
|
|
| City, State, Zip | OKLAHOMA CITY, OK 73114-4908 | School System: |
Oklahoma City #89 |
|
|
Country: (If noted) |
Land Size: |
0.1607 Acres |
||
|
Land Value: 18,200 |
|
|||
|
Sect 29-T13N-R3W Qtr SE |
ALTAVUE ADDITION
Block
019
Lot
000
|
|||
| Full Legal Description: ALTAVUE ADDITION 019 000 LOTS 17 & 18 |
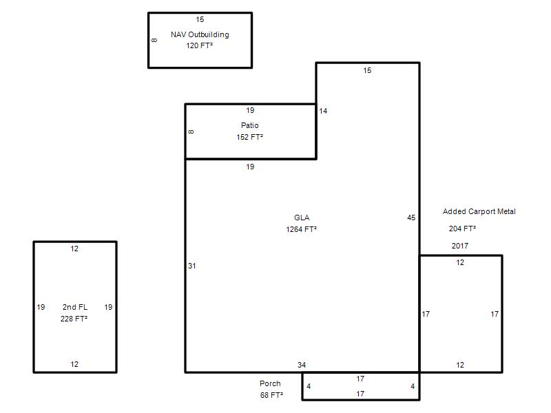
| Photo & Sketch (if available) | Comp Sales (ordered by relevancy) |
|
||||||||||||||||||
|
||||||||||||||||||||
| Value History (*The County Treasurer 405-713-1300 posts & collects actual tax amounts. Contact information HERE) | |||||||||||||
|---|---|---|---|---|---|---|---|---|---|---|---|---|---|
| Year | Market Value | Taxable Mkt Value | Gross Assessed | Exemption | Net Assessed | Millage | Est. Tax | Tax Savings | |||||
|
2025 |
127,000 |
127,000 |
13,970 |
0 |
13,970 |
122.90 |
$1,717 |
$0 |
|||||
|
2024 |
122,500 |
122,500 |
13,475 |
0 |
13,475 |
123.89 |
$1,669 |
$0 |
|||||
|
2023 |
114,000 |
49,056 |
5,395 |
0 |
5,395 |
122.82 |
$663 |
$877 |
|||||
|
2022 |
85,500 |
46,720 |
5,139 |
1,000 |
4,139 |
117.63 |
$487 |
$619 |
|||||
|
2021 |
75,500 |
46,720 |
5,139 |
1,000 |
4,139 |
117.70 |
$487 |
$490 |
|||||
| Property Account Status/Adjustments/Exemptions | ||
|---|---|---|
| Account # | Exemption Description | Amount |
|
R130646750 |
5% Capped Account |
0 |
| Property Deed Transaction History (Recorded in the County Clerk's Office) | |||||||
|---|---|---|---|---|---|---|---|
| Date | Type | Book | Page | Price | Grantor | Grantee | |
|
6/5/2023 |
|
Deeds |
$150,000 |
WHITECOTTON PATTY ANN |
RICE STEPHANEE |
||
|
12/5/2022 |
|
Hmstd Off & |
$0 |
WHITECOTTON ANNA |
WHITECOTTON PATTY ANN |
||
|
9/16/2020 |
|
Deeds |
$0 |
WHITECOTTON HARLEY E & ANNA |
WHITECOTTON ANNA |
||
|
11/11/1911 |
|
Historical |
$0 |
|
WHITECOTTON H E & A |
||
| Last Mailed Notice of Value (N.O.V.) Information/History | ||||||||
|---|---|---|---|---|---|---|---|---|
| Year | Date | Market Value | Taxable Market Value | Gross Assessed | Exemption | Net Assessed | ||
|
2026 |
02/23/2026 |
130,000 |
130,000 |
14,300 |
0 |
14,300 |
||
|
2025 |
02/14/2025 |
127,000 |
127,000 |
13,970 |
0 |
13,970 |
||
|
2024 |
02/13/2024 |
122,500 |
122,500 |
13,475 |
0 |
13,475 |
||
|
2023 |
02/14/2023 |
114,000 |
49,056 |
5,395 |
0 |
5,395 |
||
|
2022 |
03/15/2022 |
85,500 |
46,720 |
5,139 |
1,000 |
4,139 |
||
| Property Building Permit History | |||||||||||
|---|---|---|---|---|---|---|---|---|---|---|---|
| Issued | Permit # | Provided by | Bldg # | Description | Est Construction Cost | Status | |||||
| No Building Permit records returned. | |||||||||||
| Click button on building number to access detailed information: | ||||||
|---|---|---|---|---|---|---|
| Bldg # | Vacant/Improved Land | Bldg Description | Year Built | SqFt | # Stories | |
|
1 |
Improved |
1½ Story Fin |
1949 |
1,492 |
1.5 Stories |
|