|
|
|
| Larry Stein Oklahoma County Assessor (405) 713-1200 - Public Access System |
|
|
|
|
|
|
| Real Property Display - Screen Produced 3/3/2026 12:51:19 PM | ||||
|---|---|---|---|---|
| Account: R130647364 | Type: Residential | Location: |
1439 NW 99TH ST |
|
| Building Name/Occupant: |
|
OKLAHOMA CITY |
||
| Owner Name 1: | BROWN JACQUELYN RUENAY |
Parcel PIN#: |
3714-13-064-7364 |
|
| Owner Name 2: | BROWN WILLIE C JR | 1/4 section #: |
3714 |
|
| Owner Name 3: | Parent Acct: |
|
||
| Billing Address: | 1439 NW 99TH ST | Tax District: |
|
|
| City, State, Zip | OKLAHOMA CITY, OK 73114 | School System: |
Oklahoma City #89 |
|
|
Country: (If noted) |
Land Size: |
0.1607 Acres |
||
|
Land Value: 18,200 |
|
|||
|
Sect 29-T13N-R3W Qtr SE |
ALTAVUE ADDITION
Block
023
Lot
000
|
|||
| Full Legal Description: ALTAVUE ADDITION 023 000 LOTS 27 & 28 |
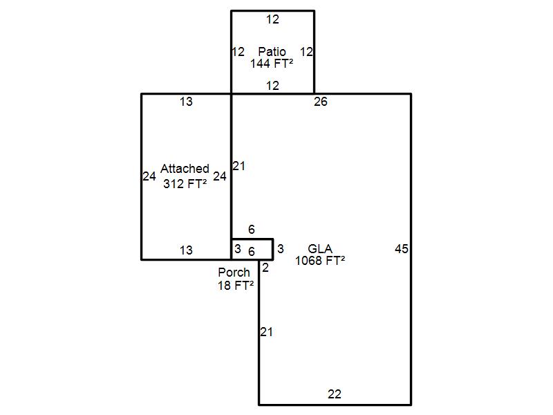
| Photo & Sketch (if available) | Comp Sales (ordered by relevancy) |
|
||||||||||||||||||
|
||||||||||||||||||||
| Value History (*The County Treasurer 405-713-1300 posts & collects actual tax amounts. Contact information HERE) | |||||||||||||
|---|---|---|---|---|---|---|---|---|---|---|---|---|---|
| Year | Market Value | Taxable Mkt Value | Gross Assessed | Exemption | Net Assessed | Millage | Est. Tax | Tax Savings | |||||
|
2025 |
126,500 |
64,092 |
7,050 |
2,000 |
5,050 |
122.90 |
$621 |
$1,089 |
|||||
|
2024 |
124,000 |
64,092 |
7,050 |
2,000 |
5,050 |
123.89 |
$626 |
$1,064 |
|||||
|
2023 |
118,000 |
64,092 |
7,050 |
2,000 |
5,050 |
122.82 |
$620 |
$974 |
|||||
|
2022 |
91,500 |
64,092 |
7,050 |
2,000 |
5,050 |
117.63 |
$594 |
$590 |
|||||
|
2021 |
82,000 |
64,092 |
7,050 |
2,000 |
5,050 |
117.70 |
$594 |
$467 |
|||||
| Property Account Status/Adjustments/Exemptions | ||
|---|---|---|
| Account # | Exemption Description | Amount |
|
R130647364 |
Freeze Senior Valuation |
0 |
|
R130647364 |
Senior Additional Homestead |
1,000 |
|
R130647364 |
3% Cap Homestead |
0 |
|
R130647364 |
Homestead |
1,000 |
| Property Deed Transaction History (Recorded in the County Clerk's Office) | ||||||||||
|---|---|---|---|---|---|---|---|---|---|---|
| Date | Type | Book | Page | Price | Grantor | Grantee | ||||
|
10/1/2021 |
|
Deeds |
$0 |
BROWN JACQUELYN |
BROWN JACQUELYN RUENAY |
|||||
|
10/7/2005 |
|
Deeds |
$66,000 |
B & V PROPERTIES INC |
BROWN JACQUELYN |
|||||
|
6/24/2005 |
|
Deeds |
$32,000 |
DANIELS LEONARD E |
B & V PROPERTIES INC |
|||||
|
9/30/1999 |
|
Deeds |
$0 |
DANIELS LEONARD E DANIELS DORIS V |
DANIELS LEONARD E |
|||||
|
1/15/1991 |
|
Historical |
$28,000 |
MOORE JIMMIE JR |
DANIELS LEONARD E |
|||||
| Last Mailed Notice of Value (N.O.V.) Information/History | ||||||||
|---|---|---|---|---|---|---|---|---|
| Year | Date | Market Value | Taxable Market Value | Gross Assessed | Exemption | Net Assessed | ||
|
2026 |
02/23/2026 |
128,000 |
64,092 |
7,050 |
2,000 |
5,050 |
||
|
2025 |
02/14/2025 |
126,500 |
64,092 |
7,050 |
2,000 |
5,050 |
||
|
2024 |
02/13/2024 |
124,000 |
64,092 |
7,050 |
2,000 |
5,050 |
||
|
2023 |
02/14/2023 |
118,000 |
64,092 |
7,050 |
2,000 |
5,050 |
||
|
2022 |
03/15/2022 |
91,500 |
64,092 |
7,050 |
2,000 |
5,050 |
||
| Property Building Permit History | |||||||||||
|---|---|---|---|---|---|---|---|---|---|---|---|
| Issued | Permit # | Provided by | Bldg # | Description | Est Construction Cost | Status | |||||
| No Building Permit records returned. | |||||||||||
| Click button on building number to access detailed information: | ||||||
|---|---|---|---|---|---|---|
| Bldg # | Vacant/Improved Land | Bldg Description | Year Built | SqFt | # Stories | |
|
1 |
Improved |
Ranch 1 Story |
1961 |
1,068 |
1 Stories |
|