|
|
|
| Larry Stein Oklahoma County Assessor (405) 713-1200 - Public Access System |
|
|
|
|
|
|
| Real Property Display - Screen Produced 3/3/2026 12:53:10 PM | ||||
|---|---|---|---|---|
| Account: R130648370 | Type: Residential | Location: |
1448 NW 95TH ST |
|
| Building Name/Occupant: |
|
OKLAHOMA CITY |
||
| Owner Name 1: | WARBIRD HOLDINGS LLC |
Parcel PIN#: |
3714-13-064-8370 |
|
| Owner Name 2: | 1/4 section #: |
3714 |
||
| Owner Name 3: | Parent Acct: |
|
||
| Billing Address: | 2270 INDUSTRIAL BLVD | Tax District: |
|
|
| City, State, Zip | NORMAN, OK 73069 | School System: |
Oklahoma City #89 |
|
|
Country: (If noted) |
UNITED STATES |
Land Size: |
0.1607 Acres |
|
|
Land Value: 18,200 |
|
|||
|
Sect 29-T13N-R3W Qtr SE |
ALTAVUE ADDITION
Block
028
Lot
000
|
|||
| Full Legal Description: ALTAVUE ADDITION 028 000 LOTS 33 & 34 |
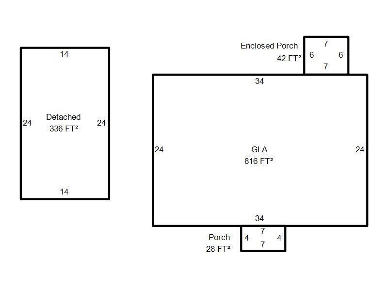
| Photo & Sketch (if available) | Comp Sales (ordered by relevancy) |
|
||||||||||||||||||
|
||||||||||||||||||||
| Value History (*The County Treasurer 405-713-1300 posts & collects actual tax amounts. Contact information HERE) | |||||||||||||
|---|---|---|---|---|---|---|---|---|---|---|---|---|---|
| Year | Market Value | Taxable Mkt Value | Gross Assessed | Exemption | Net Assessed | Millage | Est. Tax | Tax Savings | |||||
|
2025 |
82,000 |
82,000 |
9,020 |
0 |
9,020 |
122.90 |
$1,109 |
$0 |
|||||
|
2024 |
78,500 |
78,500 |
8,635 |
0 |
8,635 |
123.89 |
$1,070 |
$0 |
|||||
|
2023 |
90,000 |
90,000 |
9,900 |
0 |
9,900 |
122.82 |
$1,216 |
$0 |
|||||
|
2022 |
56,000 |
46,796 |
5,147 |
0 |
5,147 |
117.63 |
$606 |
$119 |
|||||
|
2021 |
50,000 |
44,568 |
4,902 |
0 |
4,902 |
117.70 |
$577 |
$70 |
|||||
| Property Account Status/Adjustments/Exemptions | ||
|---|---|---|
| Account # | Exemption Description | Amount |
|
R130648370 |
5% Capped Account |
0 |
| Property Deed Transaction History (Recorded in the County Clerk's Office) | ||||||||||
|---|---|---|---|---|---|---|---|---|---|---|
| Date | Type | Book | Page | Price | Grantor | Grantee | ||||
|
3/18/2022 |
|
Deeds |
$78,000 |
ALFRED DARRELL & LINDA H REV TRUST |
INDEPENDENCE INVESTING LLC |
|||||
|
3/18/2022 |
|
Deeds |
$89,000 |
INDEPENDENCE INVESTING LLC |
WARBIRD HOLDINGS LLC |
|||||
|
6/10/2016 |
|
Deeds |
$0 |
ALFRED DARRELL & LINDA |
ALFRED DARRELL & LINDA H REV TRUST |
|||||
|
8/23/2007 |
|
Deeds |
$42,500 |
DRAIN JIMMY W |
ALFRED DARRELL & LINDA |
|||||
|
3/5/2004 |
|
Deeds |
$28,000 |
RUSSELL JANICE HELEN |
DRAIN JIMMY W |
|||||
| Last Mailed Notice of Value (N.O.V.) Information/History | ||||||||
|---|---|---|---|---|---|---|---|---|
| Year | Date | Market Value | Taxable Market Value | Gross Assessed | Exemption | Net Assessed | ||
|
2026 |
02/23/2026 |
86,000 |
86,000 |
9,460 |
0 |
9,460 |
||
|
2025 |
02/14/2025 |
82,000 |
82,000 |
9,020 |
0 |
9,020 |
||
|
2023 |
02/14/2023 |
90,000 |
90,000 |
9,900 |
0 |
9,900 |
||
|
2022 |
03/15/2022 |
56,000 |
46,796 |
5,147 |
0 |
5,147 |
||
|
2022 |
04/05/2022 |
56,000 |
46,796 |
5,147 |
0 |
5,147 |
||
| Property Building Permit History | |||||||||||
|---|---|---|---|---|---|---|---|---|---|---|---|
| Issued | Permit # | Provided by | Bldg # | Description | Est Construction Cost | Status | |||||
| No Building Permit records returned. | |||||||||||
| Click button on building number to access detailed information: | ||||||
|---|---|---|---|---|---|---|
| Bldg # | Vacant/Improved Land | Bldg Description | Year Built | SqFt | # Stories | |
|
1 |
Improved |
Ranch 1 Story |
1946 |
816 |
1 Stories |
|