|
|
|
| Larry Stein Oklahoma County Assessor (405) 713-1200 - Public Access System |
|
|
|
|
|
|
| Real Property Display - Screen Produced 4/6/2026 5:12:06 AM | ||||
|---|---|---|---|---|
| Account: R179511735 | Type: Residential | Location: |
10412 LYNDON RD |
|
| Building Name/Occupant: |
|
VILLAGE |
||
| Owner Name 1: | KNIGHT STARLA D |
Parcel PIN#: |
3716-17-951-1735 |
|
| Owner Name 2: | 1/4 section #: |
3716 |
||
| Owner Name 3: | Parent Acct: |
|
||
| Billing Address: | 10412 LYNDON RD | Tax District: |
|
|
| City, State, Zip | OKLAHOMA CITY, OK 73120-4225 | School System: |
Oklahoma City #89 |
|
|
Country: (If noted) |
Land Size: |
0.2163 Acres |
||
|
Land Value: 40,506 |
|
|||
|
Sect 29-T13N-R3W Qtr NW |
CASADY MANOR
Block
005
Lot
004
|
|||
| Full Legal Description: CASADY MANOR 005 004 |
| Photo & Sketch (if available) | Comp Sales (ordered by relevancy) |
|
||||||||||||||||||
|
||||||||||||||||||||
| Value History (*The County Treasurer 405-713-1300 posts & collects actual tax amounts. Contact information HERE) | |||||||||||||
|---|---|---|---|---|---|---|---|---|---|---|---|---|---|
| Year | Market Value | Taxable Mkt Value | Gross Assessed | Exemption | Net Assessed | Millage | Est. Tax | Tax Savings | |||||
|
2026 |
205,000 |
184,260 |
20,268 |
0 |
20,268 |
122.45 |
$2,482 |
$279 |
|||||
|
2025 |
204,500 |
175,486 |
19,303 |
0 |
19,303 |
122.45 |
$2,364 |
$391 |
|||||
|
2024 |
202,000 |
167,130 |
18,383 |
0 |
18,383 |
124.97 |
$2,297 |
$479 |
|||||
|
2023 |
194,500 |
159,172 |
17,508 |
0 |
17,508 |
120.11 |
$2,103 |
$467 |
|||||
|
2022 |
162,000 |
151,593 |
16,675 |
0 |
16,675 |
115.25 |
$1,922 |
$132 |
|||||
| Property Account Status/Adjustments/Exemptions | ||
|---|---|---|
| Account # | Exemption Description | Amount |
|
R179511735 |
5% Capped Account |
0 |
| Property Deed Transaction History (Recorded in the County Clerk's Office) | ||||||||||
|---|---|---|---|---|---|---|---|---|---|---|
| Date | Type | Book | Page | Price | Grantor | Grantee | ||||
|
5/19/2015 |
|
Deeds |
$123,000 |
SAMS ROBYN L |
KNIGHT STARLA D |
|||||
|
6/30/2009 |
|
Deeds |
$0 |
SAMS GARY D & ROBYN L |
SAMS ROBYN L |
|||||
|
3/24/2000 |
|
Deeds |
$75,000 |
BARNARD WANDA G TRS BARNARD WANDA G LIVING TRUST |
SAMS GARY D & ROBYN L |
|||||
|
8/18/1994 |
|
Historical |
$0 |
BARNARD WANDA GAYLE |
BARNARD WANDA G TRS |
|||||
|
3/24/1992 |
|
Historical |
$0 |
BARNARD WANDA G TRS |
BARNARD WANDA GAYLE |
|||||
| Last Mailed Notice of Value (N.O.V.) Information/History | ||||||||
|---|---|---|---|---|---|---|---|---|
| Year | Date | Market Value | Taxable Market Value | Gross Assessed | Exemption | Net Assessed | ||
|
2026 |
02/23/2026 |
205,000 |
184,260 |
20,268 |
0 |
20,268 |
||
|
2025 |
02/14/2025 |
204,500 |
175,486 |
19,303 |
0 |
19,303 |
||
|
2024 |
02/13/2024 |
202,000 |
167,130 |
18,383 |
0 |
18,383 |
||
|
2023 |
02/14/2023 |
194,500 |
159,172 |
17,508 |
0 |
17,508 |
||
|
2022 |
03/15/2022 |
162,000 |
151,593 |
16,675 |
0 |
16,675 |
||
| Property Building Permit History | |||||||||||
|---|---|---|---|---|---|---|---|---|---|---|---|
| Issued | Permit # | Provided by | Bldg # | Description | Est Construction Cost | Status | |||||
| No Building Permit records returned. | |||||||||||
| Click button on building number to access detailed information: | ||||||
|---|---|---|---|---|---|---|
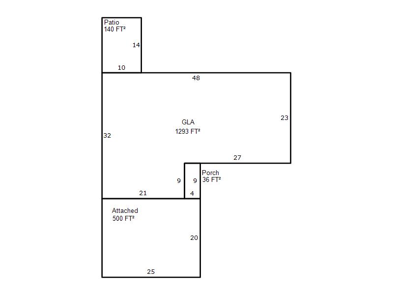
| Bldg # | Vacant/Improved Land | Bldg Description | Year Built | SqFt | # Stories | |
|
1 |
Improved |
Ranch 1 Story |
1960 |
1,293 |
1 Stories |
|