|
|
|
| Larry Stein Oklahoma County Assessor (405) 713-1200 - Public Access System |
|
|
|
|
|
|
| Real Property Display - Screen Produced 4/4/2026 9:56:43 PM | ||||
|---|---|---|---|---|
| Account: R179221565 | Type: Residential | Location: |
2112 BARCLAY RD |
|
| Building Name/Occupant: |
|
VILLAGE |
||
| Owner Name 1: | I D E HOMES LLC |
Parcel PIN#: |
3718-17-922-1565 |
|
| Owner Name 2: | 1/4 section #: |
3718 |
||
| Owner Name 3: | Parent Acct: |
|
||
| Billing Address: | 17744 S OLD HWY | Tax District: |
|
|
| City, State, Zip | CLAREMORE, OK 74017 | School System: |
Oklahoma City #89 |
|
|
Country: (If noted) |
Land Size: |
0.1653 Acres |
||
|
Land Value: 36,000 |
|
|||
|
Sect 30-T13N-R3W Qtr SE |
CASADY HEIGHTS 4TH
Block
004
Lot
000
|
|||
| Full Legal Description: CASADY HEIGHTS 4TH 004 000 W40FT LOT 3 & E20FT LOT 4 |
| Photo & Sketch (if available) | Comp Sales (ordered by relevancy) |
|
||||||||||||||||||
|
||||||||||||||||||||
| Value History (*The County Treasurer 405-713-1300 posts & collects actual tax amounts. Contact information HERE) | |||||||||||||
|---|---|---|---|---|---|---|---|---|---|---|---|---|---|
| Year | Market Value | Taxable Mkt Value | Gross Assessed | Exemption | Net Assessed | Millage | Est. Tax | Tax Savings | |||||
|
2026 |
168,500 |
148,481 |
16,332 |
0 |
16,332 |
122.45 |
$2,000 |
$270 |
|||||
|
2025 |
165,000 |
141,411 |
15,554 |
0 |
15,554 |
122.45 |
$1,905 |
$318 |
|||||
|
2024 |
156,000 |
134,678 |
14,814 |
0 |
14,814 |
124.97 |
$1,851 |
$293 |
|||||
|
2023 |
150,000 |
128,265 |
14,108 |
0 |
14,108 |
120.11 |
$1,695 |
$287 |
|||||
|
2022 |
126,000 |
122,158 |
13,436 |
0 |
13,436 |
115.25 |
$1,549 |
$49 |
|||||
| Property Account Status/Adjustments/Exemptions | ||
|---|---|---|
| Account # | Exemption Description | Amount |
|
R179221565 |
5% Capped Account |
0 |
| Property Deed Transaction History (Recorded in the County Clerk's Office) | |||||||
|---|---|---|---|---|---|---|---|
| Date | Type | Book | Page | Price | Grantor | Grantee | |
|
12/1/2021 |
|
Hmstd Off & |
$0 |
HARVEY ESTATES LLC |
I D E HOMES LLC |
||
|
12/20/2018 |
|
Hmstd Off & |
$0 |
HARVEY TOMMY & AMANDA |
HARVEY ESTATES LLC |
||
|
5/24/2016 |
|
Deeds |
$39,000 |
GRIGGS J JEFFREY GRIGGS ROBERT C |
HARVEY TOMMY & AMANDA |
||
|
10/1/1978 |
|
Historical |
$0 |
|
GRIGGS J JEFFREY |
||
| Last Mailed Notice of Value (N.O.V.) Information/History | ||||||||
|---|---|---|---|---|---|---|---|---|
| Year | Date | Market Value | Taxable Market Value | Gross Assessed | Exemption | Net Assessed | ||
|
2026 |
02/23/2026 |
168,500 |
148,481 |
16,332 |
0 |
16,332 |
||
|
2025 |
02/14/2025 |
165,000 |
141,411 |
15,554 |
0 |
15,554 |
||
|
2024 |
02/13/2024 |
156,000 |
134,678 |
14,814 |
0 |
14,814 |
||
|
2023 |
02/14/2023 |
150,000 |
128,265 |
14,108 |
0 |
14,108 |
||
|
2022 |
03/15/2022 |
126,000 |
122,158 |
13,436 |
0 |
13,436 |
||
| Property Building Permit History | |||||||||||
|---|---|---|---|---|---|---|---|---|---|---|---|
| Issued | Permit # | Provided by | Bldg # | Description | Est Construction Cost | Status | |||||
| No Building Permit records returned. | |||||||||||
| Click button on building number to access detailed information: | ||||||
|---|---|---|---|---|---|---|
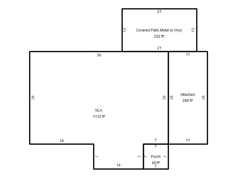
| Bldg # | Vacant/Improved Land | Bldg Description | Year Built | SqFt | # Stories | |
|
1 |
Improved |
Ranch 1 Story |
1952 |
1,112 |
1 Stories |
|