|
|
|
| Larry Stein Oklahoma County Assessor (405) 713-1200 - Public Access System |
|
|
|
|
|
|
| Real Property Display - Screen Produced 4/6/2026 8:42:36 AM | ||||
|---|---|---|---|---|
| Account: R153752055 | Type: Residential | Location: |
1609 HANNA DR |
|
| Building Name/Occupant: |
|
DEL CITY |
||
| Owner Name 1: | BERMUDEZ PROPERTIES LLC |
Parcel PIN#: |
1432-15-375-2055 |
|
| Owner Name 2: | 1/4 section #: |
1432 |
||
| Owner Name 3: | Parent Acct: |
|
||
| Billing Address: | 8404 FOREST WOOD WAY | Tax District: |
|
|
| City, State, Zip | FORT SMITH, AR 72916 | School System: |
Mid-Del #52 |
|
|
Country: (If noted) |
UNITED STATES |
Land Size: |
0.1722 Acres |
|
|
Land Value: 24,000 |
|
|||
|
Sect 8-T11N-R2W Qtr NW |
EPPERLY HEIGHTS 7TH
Block
001
Lot
003
|
|||
| Full Legal Description: EPPERLY HEIGHTS 7TH 001 003 |
| Photo & Sketch (if available) | Comp Sales (ordered by relevancy) |
|
||||||||||||||||||
|
||||||||||||||||||||
| Value History (*The County Treasurer 405-713-1300 posts & collects actual tax amounts. Contact information HERE) | |||||||||||||
|---|---|---|---|---|---|---|---|---|---|---|---|---|---|
| Year | Market Value | Taxable Mkt Value | Gross Assessed | Exemption | Net Assessed | Millage | Est. Tax | Tax Savings | |||||
|
2026 |
108,500 |
104,737 |
11,520 |
0 |
11,520 |
114.72 |
$1,322 |
$47 |
|||||
|
2025 |
105,500 |
99,750 |
10,972 |
0 |
10,972 |
114.72 |
$1,259 |
$73 |
|||||
|
2024 |
95,000 |
95,000 |
10,450 |
0 |
10,450 |
117.21 |
$1,225 |
$0 |
|||||
|
2023 |
91,000 |
91,000 |
10,010 |
0 |
10,010 |
112.46 |
$1,126 |
$0 |
|||||
|
2022 |
70,500 |
63,393 |
6,973 |
0 |
6,973 |
110.76 |
$772 |
$87 |
|||||
| Property Account Status/Adjustments/Exemptions | ||
|---|---|---|
| Account # | Exemption Description | Amount |
|
R153752055 |
5% Capped Account |
0 |
| Property Deed Transaction History (Recorded in the County Clerk's Office) | ||||||||||
|---|---|---|---|---|---|---|---|---|---|---|
| Date | Type | Book | Page | Price | Grantor | Grantee | ||||
|
9/13/2022 |
|
Deeds |
$90,000 |
MOORIS BOBBIE |
BERMUDEZ PROPERTIES LLC |
|||||
|
1/19/2021 |
|
Hmstd Off & |
$0 |
FRIAR MARK |
MORRIS BOBBIE |
|||||
|
12/19/2011 |
|
Deeds |
$30,000 |
OMEGA IMVESTMENTS LLC |
FRIAR MARK |
|||||
|
11/18/2011 |
|
Deeds |
$12,000 |
TANISIA GLENDA |
OMEGA INVESTMENTS LLC |
|||||
|
11/14/2011 |
|
Deeds |
$12,000 |
HUNTER CLARENCE JR |
OMEGA IMVESTMENTS LLC |
|||||
| Last Mailed Notice of Value (N.O.V.) Information/History | ||||||||
|---|---|---|---|---|---|---|---|---|
| Year | Date | Market Value | Taxable Market Value | Gross Assessed | Exemption | Net Assessed | ||
|
2026 |
02/06/2026 |
108,500 |
104,737 |
11,520 |
0 |
11,520 |
||
|
2025 |
01/31/2025 |
105,500 |
99,750 |
10,972 |
0 |
10,972 |
||
|
2024 |
01/22/2024 |
95,000 |
95,000 |
10,450 |
0 |
10,450 |
||
|
2023 |
01/23/2023 |
91,000 |
91,000 |
10,010 |
0 |
10,010 |
||
|
2022 |
02/22/2022 |
70,500 |
63,393 |
6,973 |
0 |
6,973 |
||
| Property Building Permit History | |||||||||||
|---|---|---|---|---|---|---|---|---|---|---|---|
| Issued | Permit # | Provided by | Bldg # | Description | Est Construction Cost | Status | |||||
| No Building Permit records returned. | |||||||||||
| Click button on building number to access detailed information: | ||||||
|---|---|---|---|---|---|---|
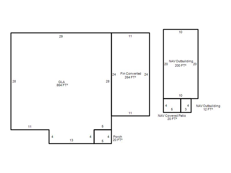
| Bldg # | Vacant/Improved Land | Bldg Description | Year Built | SqFt | # Stories | |
|
1 |
Improved |
Ranch 1 Story |
1952 |
864 |
1 Stories |
|