|
|
|
| Larry Stein Oklahoma County Assessor (405) 713-1200 - Public Access System |
|
|
|
|
|
|
| Real Property Display - Screen Produced 4/6/2026 8:41:13 AM | ||||
|---|---|---|---|---|
| Account: R153752205 | Type: Residential | Location: |
4345 SE 16TH ST |
|
| Building Name/Occupant: |
|
DEL CITY |
||
| Owner Name 1: | DAOUK SALIM |
Parcel PIN#: |
1432-15-375-2205 |
|
| Owner Name 2: | LABBAN SAHAR EL | 1/4 section #: |
1432 |
|
| Owner Name 3: | Parent Acct: |
|
||
| Billing Address: | 1809 NW 164TH CIR | Tax District: |
|
|
| City, State, Zip | EDMOND, OK 73013 | School System: |
Mid-Del #52 |
|
|
Country: (If noted) |
UNITED STATES |
Land Size: |
0.2141 Acres |
|
|
Land Value: 26,865 |
|
|||
|
Sect 8-T11N-R2W Qtr NW |
EPPERLY HEIGHTS 7TH
Block
001
Lot
009
|
|||
| Full Legal Description: EPPERLY HEIGHTS 7TH 001 009 |
| Photo & Sketch (if available) | Comp Sales (ordered by relevancy) |
|
||||||||||||||||||
|
||||||||||||||||||||
| Value History (*The County Treasurer 405-713-1300 posts & collects actual tax amounts. Contact information HERE) | |||||||||||||
|---|---|---|---|---|---|---|---|---|---|---|---|---|---|
| Year | Market Value | Taxable Mkt Value | Gross Assessed | Exemption | Net Assessed | Millage | Est. Tax | Tax Savings | |||||
|
2026 |
140,500 |
105,865 |
11,644 |
0 |
11,644 |
114.72 |
$1,336 |
$437 |
|||||
|
2025 |
134,000 |
100,824 |
11,090 |
0 |
11,090 |
114.72 |
$1,272 |
$419 |
|||||
|
2024 |
122,000 |
96,023 |
10,561 |
0 |
10,561 |
117.21 |
$1,238 |
$335 |
|||||
|
2023 |
107,500 |
91,451 |
10,059 |
0 |
10,059 |
112.46 |
$1,131 |
$199 |
|||||
|
2022 |
94,000 |
87,097 |
9,580 |
0 |
9,580 |
110.76 |
$1,061 |
$84 |
|||||
| Property Account Status/Adjustments/Exemptions | ||
|---|---|---|
| Account # | Exemption Description | Amount |
|
R153752205 |
5% Capped Account |
0 |
| Property Deed Transaction History (Recorded in the County Clerk's Office) | ||||||||||
|---|---|---|---|---|---|---|---|---|---|---|
| Date | Type | Book | Page | Price | Grantor | Grantee | ||||
|
11/22/2019 |
|
Deeds |
$75,000 |
TAVALLOEVA NARGIS |
DAOUK SALIM |
|||||
|
10/9/2015 |
|
Deeds |
$60,000 |
KAISER KEITH CALVIN |
TAVALLOEVA NARGIS |
|||||
|
9/20/1995 |
|
Historical |
$0 |
KAISER KEITH C & ANNA K |
KAISER KEITH CALVIN |
|||||
|
3/17/1993 |
|
Historical |
$47,000 |
COLLINS MICHAEL JOE |
KAISER KEITH C & ANNA K |
|||||
|
9/2/1992 |
|
Historical |
$42,500 |
LINCOLN NATIONAL BANK |
COLLINS MICHAEL JOE |
|||||
| Last Mailed Notice of Value (N.O.V.) Information/History | ||||||||
|---|---|---|---|---|---|---|---|---|
| Year | Date | Market Value | Taxable Market Value | Gross Assessed | Exemption | Net Assessed | ||
|
2026 |
02/06/2026 |
140,500 |
105,865 |
11,644 |
0 |
11,644 |
||
|
2025 |
01/31/2025 |
134,000 |
100,824 |
11,090 |
0 |
11,090 |
||
|
2024 |
01/22/2024 |
122,000 |
96,023 |
10,561 |
0 |
10,561 |
||
|
2023 |
01/23/2023 |
107,500 |
91,451 |
10,059 |
0 |
10,059 |
||
|
2022 |
02/22/2022 |
94,000 |
87,097 |
9,580 |
0 |
9,580 |
||
| Property Building Permit History | |||||||||||
|---|---|---|---|---|---|---|---|---|---|---|---|
| Issued | Permit # | Provided by | Bldg # | Description | Est Construction Cost | Status | |||||
| No Building Permit records returned. | |||||||||||
| Click button on building number to access detailed information: | ||||||
|---|---|---|---|---|---|---|
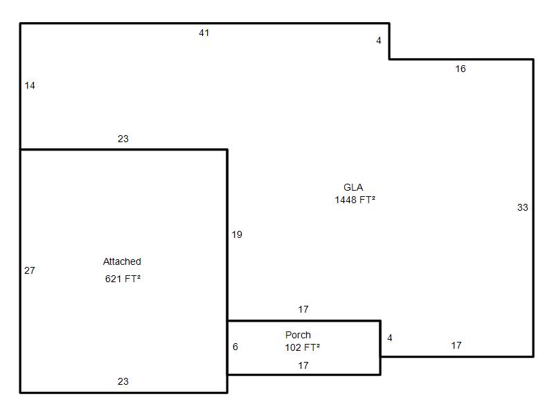
| Bldg # | Vacant/Improved Land | Bldg Description | Year Built | SqFt | # Stories | |
|
1 |
Improved |
Ranch 1 Story |
1953 |
1,448 |
1 Stories |
|