|
|
|
| Larry Stein Oklahoma County Assessor (405) 713-1200 - Public Access System |
|
|
|
|
|
|
| Real Property Display - Screen Produced 4/1/2026 7:38:26 PM | ||||
|---|---|---|---|---|
| Account: R179401055 | Type: Residential | Location: |
2120 ERIN PL |
|
| Building Name/Occupant: |
|
VILLAGE |
||
| Owner Name 1: | PITTENGER BRANDI E & MARK |
Parcel PIN#: |
3718-17-940-1055 |
|
| Owner Name 2: | 1/4 section #: |
3718 |
||
| Owner Name 3: | Parent Acct: |
|
||
| Billing Address: | 2120 ERIN PL | Tax District: |
|
|
| City, State, Zip | OKLAHOMA CITY, OK 73120-3824 | School System: |
Oklahoma City #89 |
|
|
Country: (If noted) |
Land Size: |
0.1630 Acres |
||
|
Land Value: 35,510 |
|
|||
|
Sect 30-T13N-R3W Qtr SE |
CASADY HEIGHTS 7TH
Block
009
Lot
006
|
|||
| Full Legal Description: CASADY HEIGHTS 7TH 009 006 |
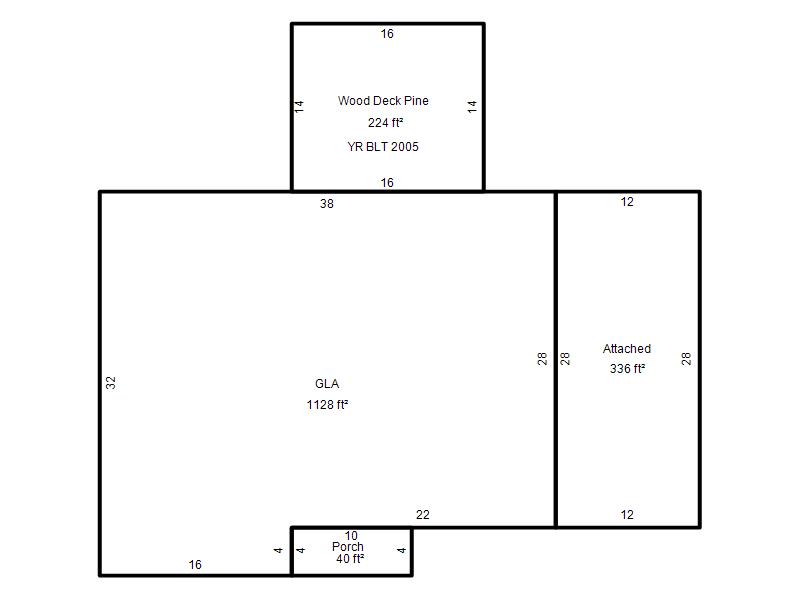
| Photo & Sketch (if available) | Comp Sales (ordered by relevancy) |
|
||||||||||||||||||
|
||||||||||||||||||||
| Value History (*The County Treasurer 405-713-1300 posts & collects actual tax amounts. Contact information HERE) | |||||||||||||
|---|---|---|---|---|---|---|---|---|---|---|---|---|---|
| Year | Market Value | Taxable Mkt Value | Gross Assessed | Exemption | Net Assessed | Millage | Est. Tax | Tax Savings | |||||
|
2026 |
170,000 |
131,740 |
14,491 |
1,000 |
13,491 |
122.45 |
$1,652 |
$638 |
|||||
|
2025 |
167,000 |
127,903 |
14,068 |
1,000 |
13,068 |
122.45 |
$1,600 |
$649 |
|||||
|
2024 |
159,000 |
124,178 |
13,658 |
1,000 |
12,658 |
124.97 |
$1,582 |
$604 |
|||||
|
2023 |
155,500 |
120,562 |
13,261 |
1,000 |
12,261 |
120.11 |
$1,473 |
$582 |
|||||
|
2022 |
132,000 |
117,051 |
12,875 |
1,000 |
11,875 |
115.25 |
$1,369 |
$305 |
|||||
| Property Account Status/Adjustments/Exemptions | ||
|---|---|---|
| Account # | Exemption Description | Amount |
|
R179401055 |
3% Cap Homestead |
0 |
|
R179401055 |
Homestead |
1,000 |
| Property Deed Transaction History (Recorded in the County Clerk's Office) | ||||||||||
|---|---|---|---|---|---|---|---|---|---|---|
| Date | Type | Book | Page | Price | Grantor | Grantee | ||||
|
10/16/2002 |
|
Deeds |
$0 |
PITTENGER BRANDI E |
PITTENGER BRANDI E & MARK |
|||||
|
10/18/2000 |
|
Deeds |
$73,500 |
TARMAN BEN TARMAN KERRI |
PITTENGER BRANDI E |
|||||
|
10/26/1995 |
|
Historical |
$52,000 |
STOUT WILLIAM H |
TARMAN BEN |
|||||
|
10/16/1995 |
|
Historical |
$39,000 |
DEMPEWOLF DANIEL J & RHONDA |
STOUT WILLIAM H |
|||||
|
5/1/1989 |
|
Historical |
$30,000 |
MATHIS ROBERT C & CAROL J |
DEMPEWOLF DANIEL J & RHONDA |
|||||
| Last Mailed Notice of Value (N.O.V.) Information/History | ||||||||
|---|---|---|---|---|---|---|---|---|
| Year | Date | Market Value | Taxable Market Value | Gross Assessed | Exemption | Net Assessed | ||
|
2026 |
02/23/2026 |
170,000 |
131,740 |
14,491 |
1,000 |
13,491 |
||
|
2025 |
02/14/2025 |
167,000 |
127,903 |
14,068 |
1,000 |
13,068 |
||
|
2024 |
02/13/2024 |
159,000 |
124,178 |
13,658 |
1,000 |
12,658 |
||
|
2023 |
02/14/2023 |
155,500 |
120,562 |
13,261 |
1,000 |
12,261 |
||
|
2022 |
03/15/2022 |
132,000 |
117,051 |
12,875 |
1,000 |
11,875 |
||
| Property Building Permit History | |||||||||||
|---|---|---|---|---|---|---|---|---|---|---|---|
| Issued | Permit # | Provided by | Bldg # | Description | Est Construction Cost | Status | |||||
| No Building Permit records returned. | |||||||||||
| Click button on building number to access detailed information: | ||||||
|---|---|---|---|---|---|---|
| Bldg # | Vacant/Improved Land | Bldg Description | Year Built | SqFt | # Stories | |
|
1 |
Improved |
Ranch 1 Story |
1954 |
1,128 |
1 Stories |
|