|
|
|
| Larry Stein Oklahoma County Assessor (405) 713-1200 - Public Access System |
|
|
|
|
|
|
| Real Property Display - Screen Produced 4/6/2026 8:42:36 AM | ||||
|---|---|---|---|---|
| Account: R153752375 | Type: Residential | Location: |
4317 SE 16TH ST |
|
| Building Name/Occupant: |
|
DEL CITY |
||
| Owner Name 1: | JONES DAVID L & SUSAN E |
Parcel PIN#: |
1432-15-375-2375 |
|
| Owner Name 2: | 1/4 section #: |
1432 |
||
| Owner Name 3: | Parent Acct: |
|
||
| Billing Address: | 4317 SE 16TH ST | Tax District: |
|
|
| City, State, Zip | DEL CITY, OK 73115 | School System: |
Mid-Del #52 |
|
|
Country: (If noted) |
Land Size: |
0.1722 Acres |
||
|
Land Value: 24,000 |
|
|||
|
Sect 8-T11N-R2W Qtr NW |
EPPERLY HEIGHTS 7TH
Block
001
Lot
016
|
|||
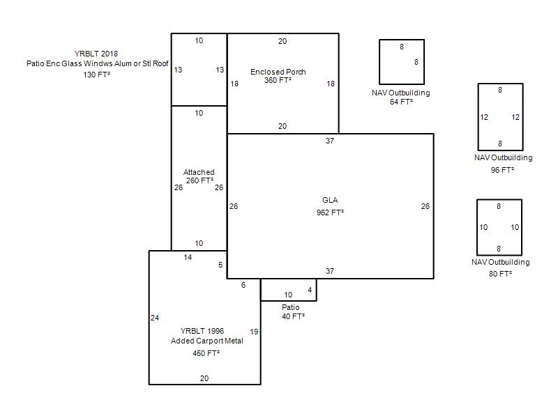
| Full Legal Description: EPPERLY HEIGHTS 7TH 001 016 |
| Photo & Sketch (if available) | Comp Sales (ordered by relevancy) |
|
||||||||||||||||||
|
||||||||||||||||||||
| Value History (*The County Treasurer 405-713-1300 posts & collects actual tax amounts. Contact information HERE) | |||||||||||||
|---|---|---|---|---|---|---|---|---|---|---|---|---|---|
| Year | Market Value | Taxable Mkt Value | Gross Assessed | Exemption | Net Assessed | Millage | Est. Tax | Tax Savings | |||||
|
2026 |
121,000 |
68,459 |
7,530 |
7,530 |
0 |
114.72 |
$0 |
$1,527 |
|||||
|
2025 |
122,000 |
66,466 |
7,310 |
7,310 |
0 |
114.72 |
$0 |
$1,539 |
|||||
|
2024 |
112,500 |
64,531 |
7,098 |
0 |
7,098 |
117.21 |
$832 |
$618 |
|||||
|
2023 |
97,000 |
61,459 |
6,759 |
0 |
6,759 |
112.46 |
$760 |
$440 |
|||||
|
2022 |
85,500 |
58,533 |
6,438 |
0 |
6,438 |
110.76 |
$713 |
$329 |
|||||
| Property Account Status/Adjustments/Exemptions | ||
|---|---|---|
| Account # | Exemption Description | Amount |
|
R153752375 |
100% DAV Exemption |
100 |
|
R153752375 |
DAV Homestead |
0 |
|
R153752375 |
3% Cap Homestead |
0 |
| Property Deed Transaction History (Recorded in the County Clerk's Office) | |||||||
|---|---|---|---|---|---|---|---|
| Date | Type | Book | Page | Price | Grantor | Grantee | |
|
12/28/2017 |
|
Hmstd Off & |
$0 |
MICHAELS DAVID G & ANNA MAE |
MICHAELS DAVID G ESTATE OF |
||
|
12/28/2017 |
|
Hmstd Off & |
$0 |
JONES MOLLIE ANNABELLE |
JONES DAVID L & SUSAN E |
||
|
12/4/2017 |
|
Hmstd Off & |
$0 |
MICHAELS DAVID G ESTATE OF |
JONES MOLLIE ANNABELLE |
||
|
10/8/1952 |
|
Deeds |
$0 |
|
MICHAELS DAVID G & ANNA MAE |
||
| Last Mailed Notice of Value (N.O.V.) Information/History | ||||||||
|---|---|---|---|---|---|---|---|---|
| Year | Date | Market Value | Taxable Market Value | Gross Assessed | Exemption | Net Assessed | ||
|
2026 |
02/06/2026 |
121,000 |
68,459 |
7,530 |
7,530 |
0 |
||
|
2025 |
01/31/2025 |
122,000 |
67,757 |
7,452 |
0 |
7,452 |
||
|
2024 |
01/22/2024 |
112,500 |
64,531 |
7,098 |
0 |
7,098 |
||
|
2023 |
01/23/2023 |
97,000 |
61,459 |
6,759 |
0 |
6,759 |
||
|
2022 |
02/22/2022 |
85,500 |
58,533 |
6,438 |
0 |
6,438 |
||
| Property Building Permit History | |||||||||||
|---|---|---|---|---|---|---|---|---|---|---|---|
| Issued | Permit # | Provided by | Bldg # | Description | Est Construction Cost | Status | |||||
| No Building Permit records returned. | |||||||||||
| Click button on building number to access detailed information: | ||||||
|---|---|---|---|---|---|---|
| Bldg # | Vacant/Improved Land | Bldg Description | Year Built | SqFt | # Stories | |
|
1 |
Improved |
Ranch 1 Story |
1952 |
962 |
1 Stories |
|