|
|
|
| Larry Stein Oklahoma County Assessor (405) 713-1200 - Public Access System |
|
|
|
|
|
|
| Real Property Display - Screen Produced 4/6/2026 8:42:36 AM | ||||
|---|---|---|---|---|
| Account: R153752425 | Type: Residential | Location: |
4309 SE 16TH ST |
|
| Building Name/Occupant: |
|
DEL CITY |
||
| Owner Name 1: | LINVILLE TESA LORENE |
Parcel PIN#: |
1432-15-375-2425 |
|
| Owner Name 2: | 1/4 section #: |
1432 |
||
| Owner Name 3: | Parent Acct: |
|
||
| Billing Address: | 1020 CLOVER LN | Tax District: |
|
|
| City, State, Zip | OKLAHOMA CITY, OK 73131 | School System: |
Mid-Del #52 |
|
|
Country: (If noted) |
Land Size: |
0.1722 Acres |
||
|
Land Value: 24,000 |
|
|||
|
Sect 8-T11N-R2W Qtr NW |
EPPERLY HEIGHTS 7TH
Block
001
Lot
018
|
|||
| Full Legal Description: EPPERLY HEIGHTS 7TH 001 018 |
| Photo & Sketch (if available) | Comp Sales (ordered by relevancy) |
|
||||||||||||||||||
|
||||||||||||||||||||
| Value History (*The County Treasurer 405-713-1300 posts & collects actual tax amounts. Contact information HERE) | |||||||||||||
|---|---|---|---|---|---|---|---|---|---|---|---|---|---|
| Year | Market Value | Taxable Mkt Value | Gross Assessed | Exemption | Net Assessed | Millage | Est. Tax | Tax Savings | |||||
|
2026 |
97,500 |
66,945 |
7,363 |
0 |
7,363 |
114.72 |
$845 |
$386 |
|||||
|
2025 |
94,500 |
63,758 |
7,013 |
1,000 |
6,013 |
114.72 |
$690 |
$503 |
|||||
|
2024 |
87,000 |
61,901 |
6,808 |
1,000 |
5,808 |
117.21 |
$681 |
$441 |
|||||
|
2023 |
74,000 |
60,099 |
6,610 |
1,000 |
5,610 |
112.46 |
$631 |
$284 |
|||||
|
2022 |
65,500 |
58,349 |
6,417 |
1,000 |
5,417 |
110.76 |
$600 |
$198 |
|||||
| Property Account Status/Adjustments/Exemptions | ||
|---|---|---|
| Account # | Exemption Description | Amount |
|
R153752425 |
5% Capped Account |
0 |
| Property Deed Transaction History (Recorded in the County Clerk's Office) | |||||||
|---|---|---|---|---|---|---|---|
| Date | Type | Book | Page | Price | Grantor | Grantee | |
|
1/21/2025 |
|
Hmstd Off & |
$0 |
VALBRACHT LYNDA CAROL |
LINVILLE TESA LORENE |
||
|
5/18/2011 |
|
Hmstd Off & |
$0 |
LINVILLE ELMON E & BILLIE J |
VALBRACHT LYNDA CAROL |
||
|
11/30/1988 |
|
Historical |
$0 |
MCMILLAN WILBUR R & ALICE M |
LINVILLE ELMON E & BILLIE J |
||
|
6/24/1988 |
|
Historical |
$0 |
WESTON NINA M |
MCMILLAN WILBUR R & ALICE M |
||
|
9/1/1976 |
|
Historical |
$0 |
|
WESTON NINA M |
||
| Last Mailed Notice of Value (N.O.V.) Information/History | ||||||||
|---|---|---|---|---|---|---|---|---|
| Year | Date | Market Value | Taxable Market Value | Gross Assessed | Exemption | Net Assessed | ||
|
2026 |
02/06/2026 |
97,500 |
66,945 |
7,363 |
0 |
7,363 |
||
|
2025 |
01/31/2025 |
94,500 |
63,758 |
7,013 |
1,000 |
6,013 |
||
|
2025 |
03/28/2025 |
94,500 |
63,758 |
7,013 |
1,000 |
6,013 |
||
|
2024 |
01/22/2024 |
87,000 |
61,901 |
6,808 |
1,000 |
5,808 |
||
|
2023 |
01/23/2023 |
74,000 |
60,099 |
6,610 |
1,000 |
5,610 |
||
| Property Building Permit History | |||||||||||
|---|---|---|---|---|---|---|---|---|---|---|---|
| Issued | Permit # | Provided by | Bldg # | Description | Est Construction Cost | Status | |||||
| No Building Permit records returned. | |||||||||||
| Click button on building number to access detailed information: | ||||||
|---|---|---|---|---|---|---|
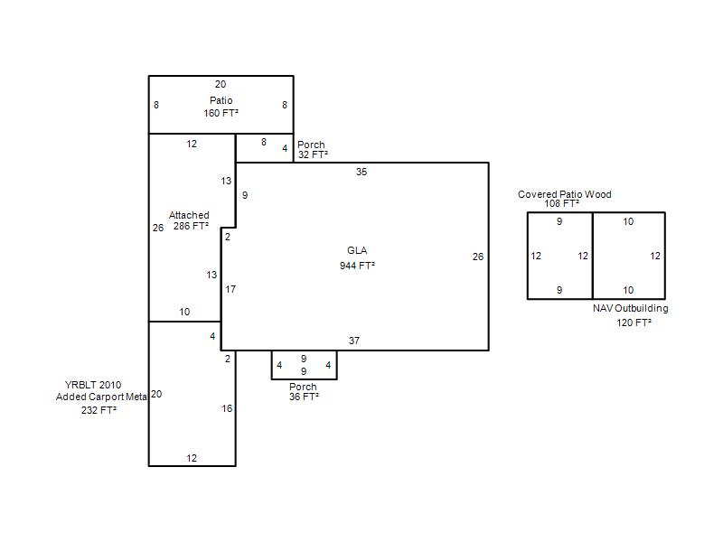
| Bldg # | Vacant/Improved Land | Bldg Description | Year Built | SqFt | # Stories | |
|
1 |
Improved |
Ranch 1 Story |
1952 |
944 |
1 Stories |
|