|
|
|
| Larry Stein Oklahoma County Assessor (405) 713-1200 - Public Access System |
|
|
|
|
|
|
| Real Property Display - Screen Produced 4/25/2026 1:04:30 PM | ||||
|---|---|---|---|---|
| Account: R179431140 | Type: Residential | Location: |
10125 N PENNSYLVANIA AVE, Unit 14 |
|
| Building Name/Occupant: |
|
VILLAGE |
||
| Owner Name 1: | JUDAH RENTALS LLC |
Parcel PIN#: |
3718-17-943-1140 |
|
| Owner Name 2: | 1/4 section #: |
3718 |
||
| Owner Name 3: | Parent Acct: |
|
||
| Billing Address: | 1200 N SHARTEL AVE STE 1100 | Tax District: |
|
|
| City, State, Zip | OKLAHOMA CITY, OK 73103 | School System: |
Oklahoma City #89 |
|
|
Country: (If noted) |
Land Size: |
1.0000 Acres |
||
|
Land Value: 13,800 |
|
|||
|
Sect 30-T13N-R3W Qtr SE |
VILLAGE PARK CONDOMINIUMS
Block
000
Lot
000
|
|||
| Full Legal Description: VILLAGE PARK CONDOMINIUMS 000 000 UNIT 14 |
| No comparable sales report available. | ||||||||||||||||||||||
|
||||||||||||||||||||||
| Value History (*The County Treasurer 405-713-1300 posts & collects actual tax amounts. Contact information HERE) | |||||||||||||
|---|---|---|---|---|---|---|---|---|---|---|---|---|---|
| Year | Market Value | Taxable Mkt Value | Gross Assessed | Exemption | Net Assessed | Millage | Est. Tax | Tax Savings | |||||
|
2026 |
22,200 |
22,200 |
2,442 |
0 |
2,442 |
122.45 |
$299 |
$0 |
|||||
|
2025 |
22,200 |
22,200 |
2,442 |
0 |
2,442 |
122.45 |
$299 |
$0 |
|||||
|
2024 |
22,200 |
22,200 |
2,442 |
0 |
2,442 |
124.97 |
$305 |
$0 |
|||||
| Property Account Status/Adjustments/Exemptions | ||
|---|---|---|
| Account # | Exemption Description | Amount |
|
R179431140 |
5% Capped Account |
0 |
| Property Deed Transaction History (Recorded in the County Clerk's Office) | ||||||||||
|---|---|---|---|---|---|---|---|---|---|---|
| Date | Type | Book | Page | Price | Grantor | Grantee | ||||
|
12/10/2019 |
|
Hmstd Off & |
$0 |
PRIMARY INVESTMENTS I LLC |
JUDAH RENTALS LLC |
|||||
|
11/7/2019 |
|
Hmstd Off & |
$0 |
PRIMARY INVESTMENTS LLC |
JUDAH RENTALS LLC |
|||||
|
4/24/2019 |
|
Other |
$0 |
COX LOUIS HOWARD ANDRES |
PRIMARY INVESTMENTS LLC |
|||||
| Last Mailed Notice of Value (N.O.V.) Information/History | ||||||||
|---|---|---|---|---|---|---|---|---|
| Year | Date | Market Value | Taxable Market Value | Gross Assessed | Exemption | Net Assessed | ||
|
2020 |
03/10/2020 |
23,200 |
23,200 |
2,552 |
0 |
2,552 |
||
|
2019 |
04/02/2019 |
23,200 |
22,995 |
2,530 |
0 |
2,530 |
||
|
2016 |
03/11/2016 |
21,900 |
21,900 |
2,409 |
0 |
2,409 |
||
| Property Building Permit History | ||||||
|---|---|---|---|---|---|---|
| Issued | Permit # | Provided by | Bldg # | Description | Est Construction Cost | Status |
|
4/11/2011 |
10425648 |
NICHOLS HILLS |
1 |
Remodeled |
0 |
Inactive |
| Click button below to access detailed information and additional property photos: | ||||||
|---|---|---|---|---|---|---|
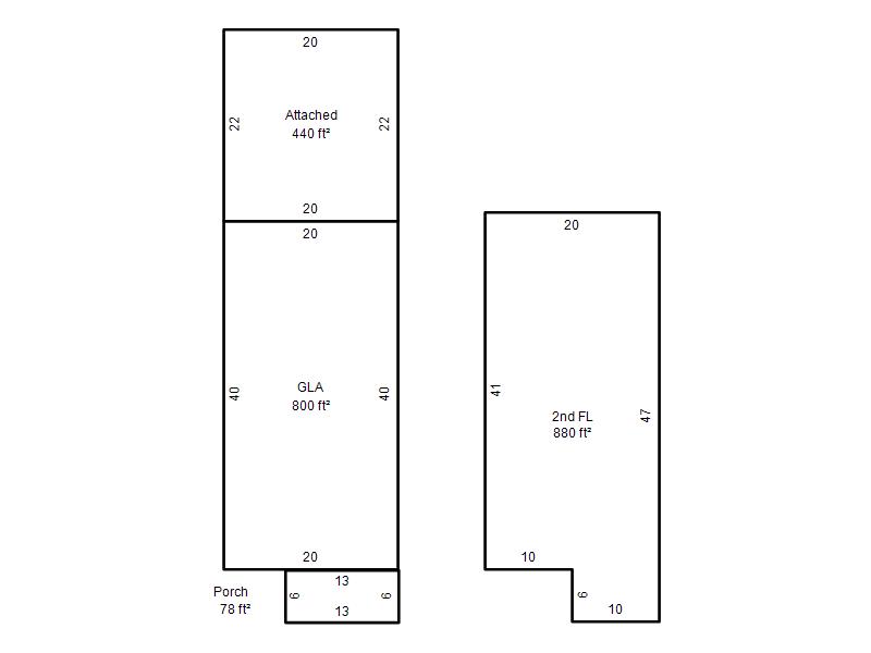
| Bldg # | Vacant/Improved Land | Bldg Description | Year Built | SqFt | # Stories | |
|
1 |
Improved |
Salvage |
1982 |
1,680 |
2 Stories |
|