Larry Stein Oklahoma County Assessor (405) 713-1200 - Public Access System
Home Contact Us Guest Book Map Search New Search
Real Property Display - Screen Produced   4/25/2026 10:08:51 AM 
Account: R179431180  Type: Residential

  

Location:

10125 N PENNSYLVANIA AVE, Unit 18

Building Name/Occupant:

 

VILLAGE

Owner Name 1:  BAL OK2 LLC

Parcel PIN#:

3718-17-943-1180

Owner Name 2:    1/4 section #:

3718

Owner Name 3:    Parent Acct:

 

Billing Address:  PO BOX 5112 Tax District:

City, State, Zip  EDMOND, OK  73083-5112 School System:

Oklahoma City #89

Country: (If noted)

  

Land Size:

1.0000  Acres

Personal Property

Land Value: 13,800 

Treasurer:

Sect 30-T13N-R3W Qtr SE

 VILLAGE PARK CONDOMINIUMS   Block 000  Lot 000   Subdivision Sales
 Full Legal Description:  VILLAGE PARK CONDOMINIUMS 000 000 UNIT 18

NOTE:  The following sales may or may not be used to determine Fair Market Value

Photo & Sketch (if available) Sales  Sales Report

 6204 WATERFORD BLVD, Unit 26 OKLAHOMA CITY, OK

11/06/2025

 $390,000 

 10125 N PENNSYLVANIA AVE, Unit 4 VILLAGE, OK

03/12/2025

 $115,000 

 6204 WATERFORD BLVD, Unit 17 OKLAHOMA CITY, OK

06/04/2025

 $330,000 

 10125 N PENNSYLVANIA AVE, Unit 5 VILLAGE, OK

05/05/2022

 $114,000 

 4721 NW 72ND ST OKLAHOMA CITY, OK

02/28/2025

 $146,500 

 10125 N PENNSYLVANIA AVE, Unit 8 VILLAGE, OK

02/28/2025

 $137,500 

Value History  (*The County Treasurer 405-713-1300 posts & collects actual tax amounts.  Contact information  HERE)
Year Market Value Taxable Mkt Value Gross Assessed Exemption Net Assessed Millage Est. Tax Tax Savings

2026

131,000 

123,372 

13,570 

13,570 

122.45 

$1,662 

$103 

2025

123,500 

117,498 

12,924 

12,924 

122.45 

$1,583 

$81 

2024

122,500 

111,903 

12,309 

12,309 

124.97 

$1,538 

$146 

[1/10]
Property Account Status/Adjustments/Exemptions
Account # Exemption Description Amount

R179431180

5% Capped Account

Property Deed Transaction History   (Recorded in the County Clerk's Office)
Date Type Book Page Price Grantor Grantee

3/8/2023

Hmstd Off &

15407

1279

 $0 

LU RAY PETROLEUM LLC

BAL OK2 LLC

3/3/2016

Deeds

13063

975

 $101,000 

HARDIN BRITNI N

LU RAY PETROLEUM LLC

9/28/2012

Deeds

12046

1551

 $90,000 

TUCKER JENNIFER B

HARDIN BRITNI N

[1/2]
Last Mailed Notice of Value (N.O.V.) Information/History
Year Date Market Value Taxable Market Value Gross Assessed Exemption Net Assessed

2026

02/23/2026

131,000 

123,372 

13,570 

13,570 

2025

02/14/2025

123,500 

117,498 

12,924 

12,924 

2024

02/13/2024

122,500 

111,903 

12,309 

12,309 

[1/3]
Property Building Permit History
Issued Permit # Provided by Bldg # Description Est Construction Cost Status
No Building Permit records returned.
Click button below to access detailed information and additional property photos:
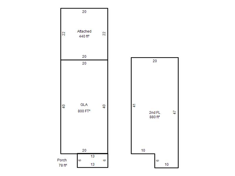
  Bldg # Vacant/Improved Land Bldg Description Year Built SqFt # Stories

Click

1

Improved

Condo <= 3 Stories

1982

1,680 

2 Stories