|
|
|
| Larry Stein Oklahoma County Assessor (405) 713-1200 - Public Access System |
|
|
|
|
|
|
| Real Property Display - Screen Produced 4/6/2026 8:42:36 AM | ||||
|---|---|---|---|---|
| Account: R153752625 | Type: Residential | Location: |
4324 SE 16TH ST |
|
| Building Name/Occupant: |
|
DEL CITY |
||
| Owner Name 1: | LMRK OWNER I LLC |
Parcel PIN#: |
1432-15-375-2625 |
|
| Owner Name 2: | 1/4 section #: |
1432 |
||
| Owner Name 3: | Parent Acct: |
|
||
| Billing Address: | 345 HERITAGE AVE, Unit 130 | Tax District: |
|
|
| City, State, Zip | PORTSMOUTH, NH 03802-3809 | School System: |
Mid-Del #52 |
|
|
Country: (If noted) |
Land Size: |
0.1722 Acres |
||
|
Land Value: 24,000 |
|
|||
|
Sect 8-T11N-R2W Qtr NW |
EPPERLY HEIGHTS 7TH
Block
002
Lot
006
|
|||
| Full Legal Description: EPPERLY HEIGHTS 7TH 002 006 |
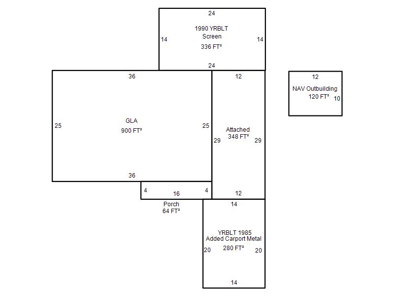
| Photo & Sketch (if available) | Comp Sales (ordered by relevancy) |
|
||||||||||||||||||
|
||||||||||||||||||||
| Value History (*The County Treasurer 405-713-1300 posts & collects actual tax amounts. Contact information HERE) | |||||||||||||
|---|---|---|---|---|---|---|---|---|---|---|---|---|---|
| Year | Market Value | Taxable Mkt Value | Gross Assessed | Exemption | Net Assessed | Millage | Est. Tax | Tax Savings | |||||
|
2026 |
110,500 |
110,500 |
12,155 |
0 |
12,155 |
114.72 |
$1,394 |
$0 |
|||||
|
2025 |
107,000 |
107,000 |
11,770 |
0 |
11,770 |
114.72 |
$1,350 |
$0 |
|||||
|
2024 |
97,500 |
54,000 |
5,940 |
2,000 |
3,940 |
117.21 |
$462 |
$795 |
|||||
|
2023 |
83,500 |
54,000 |
5,940 |
2,000 |
3,940 |
112.46 |
$443 |
$590 |
|||||
|
2022 |
73,000 |
54,000 |
5,940 |
2,000 |
3,940 |
110.76 |
$436 |
$453 |
|||||
| Property Account Status/Adjustments/Exemptions | ||
|---|---|---|
| Account # | Exemption Description | Amount |
|
R153752625 |
5% Capped Account |
0 |
| Property Deed Transaction History (Recorded in the County Clerk's Office) | ||||||||||
|---|---|---|---|---|---|---|---|---|---|---|
| Date | Type | Book | Page | Price | Grantor | Grantee | ||||
|
11/12/2025 |
|
Hmstd Off & |
$0 |
TH PROPERTY OWNER I LLC |
LMRK OWNER I LLC |
|||||
|
3/29/2024 |
|
Deeds |
$95,500 |
PARTLO ROBERT |
TH PROPERTY OWNER I LLC |
|||||
|
10/6/2005 |
|
Deeds |
$55,000 |
LANIGAN MICHAEL A |
PARTLO ROBERT |
|||||
|
10/2/2002 |
|
Hmstd Off & |
$0 |
FARRELL JUANITA MAE ESTATE OF LANIGAN MICHAEL A PR |
LANIGAN MICHAEL A |
|||||
|
8/27/2001 |
|
Hmstd Off & |
$0 |
FARRELL ALVIN E & JUANITA M |
FARRELL JUANITA MAE ESTATE OF LANIGAN MICHAEL A PR |
|||||
| Last Mailed Notice of Value (N.O.V.) Information/History | ||||||||
|---|---|---|---|---|---|---|---|---|
| Year | Date | Market Value | Taxable Market Value | Gross Assessed | Exemption | Net Assessed | ||
|
2026 |
02/06/2026 |
110,500 |
110,500 |
12,155 |
0 |
12,155 |
||
|
2025 |
01/31/2025 |
107,000 |
107,000 |
11,770 |
0 |
11,770 |
||
|
2024 |
01/22/2024 |
97,500 |
54,000 |
5,940 |
2,000 |
3,940 |
||
|
2023 |
01/23/2023 |
83,500 |
54,000 |
5,940 |
2,000 |
3,940 |
||
|
2022 |
02/22/2022 |
73,000 |
54,000 |
5,940 |
2,000 |
3,940 |
||
| Property Building Permit History | |||||||||||
|---|---|---|---|---|---|---|---|---|---|---|---|
| Issued | Permit # | Provided by | Bldg # | Description | Est Construction Cost | Status | |||||
| No Building Permit records returned. | |||||||||||
| Click button on building number to access detailed information: | ||||||
|---|---|---|---|---|---|---|
| Bldg # | Vacant/Improved Land | Bldg Description | Year Built | SqFt | # Stories | |
|
1 |
Improved |
Ranch 1 Story |
1953 |
900 |
1 Stories |
|