|
|
|
| Larry Stein Oklahoma County Assessor (405) 713-1200 - Public Access System |
|
|
|
|
|
|
| Real Property Display - Screen Produced 4/6/2026 8:40:39 AM | ||||
|---|---|---|---|---|
| Account: R153752975 | Type: Residential | Location: |
4325 SE 17TH ST |
|
| Building Name/Occupant: |
|
DEL CITY |
||
| Owner Name 1: | CLARK PATSY C |
Parcel PIN#: |
1432-15-375-2975 |
|
| Owner Name 2: | 1/4 section #: |
1432 |
||
| Owner Name 3: | Parent Acct: |
|
||
| Billing Address: | 4325 SE 17TH ST | Tax District: |
|
|
| City, State, Zip | DEL CITY, OK 73115-3109 | School System: |
Mid-Del #52 |
|
|
Country: (If noted) |
Land Size: |
0.1722 Acres |
||
|
Land Value: 24,000 |
|
|||
|
Sect 8-T11N-R2W Qtr NW |
EPPERLY HEIGHTS 7TH
Block
002
Lot
019
|
|||
| Full Legal Description: EPPERLY HEIGHTS 7TH 002 019 |
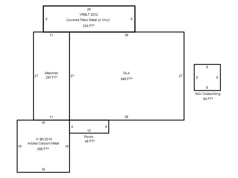
| Photo & Sketch (if available) | Comp Sales (ordered by relevancy) |
|
||||||||||||||||||
|
||||||||||||||||||||
| Value History (*The County Treasurer 405-713-1300 posts & collects actual tax amounts. Contact information HERE) | |||||||||||||
|---|---|---|---|---|---|---|---|---|---|---|---|---|---|
| Year | Market Value | Taxable Mkt Value | Gross Assessed | Exemption | Net Assessed | Millage | Est. Tax | Tax Savings | |||||
|
2026 |
112,500 |
55,194 |
6,071 |
1,000 |
5,071 |
114.72 |
$582 |
$838 |
|||||
|
2025 |
109,000 |
55,194 |
6,071 |
1,000 |
5,071 |
114.72 |
$582 |
$794 |
|||||
|
2024 |
99,000 |
55,194 |
6,071 |
1,000 |
5,071 |
117.21 |
$594 |
$682 |
|||||
|
2023 |
87,000 |
55,194 |
6,071 |
1,000 |
5,071 |
112.46 |
$570 |
$506 |
|||||
|
2022 |
76,000 |
55,194 |
6,071 |
1,000 |
5,071 |
110.76 |
$562 |
$364 |
|||||
| Property Account Status/Adjustments/Exemptions | ||
|---|---|---|
| Account # | Exemption Description | Amount |
|
R153752975 |
3% Cap Homestead |
0 |
|
R153752975 |
Freeze Senior Valuation |
0 |
|
R153752975 |
Homestead |
1,000 |
| Property Deed Transaction History (Recorded in the County Clerk's Office) | ||||||||||
|---|---|---|---|---|---|---|---|---|---|---|
| Date | Type | Book | Page | Price | Grantor | Grantee | ||||
|
8/2/2011 |
|
Deeds |
$56,000 |
MCPHERSON CURTIS TRS MCPHERSON CURTIS REV TRUST |
CLARK PATSY C |
|||||
|
12/18/2001 |
|
Deeds |
$0 |
MCPHERSON CURTIS C |
MCPHERSON CURTIS TRS MCPHERSON CURTIS REV TRUST |
|||||
|
8/17/1998 |
|
Historical |
$36,000 |
RAY WILLIAM O JR & CORNELIA S |
MCPHERSON CURTIS C |
|||||
|
4/23/1993 |
|
Historical |
$32,000 |
TRANSAMERICA FINANCIAL |
RAY WILLIAM O JR & CORNELIA S |
|||||
|
3/9/1992 |
|
Historical |
$0 |
PENA JANE LEE K & JOSEPH D |
TRANSAMERICA FINANCIAL |
|||||
| Last Mailed Notice of Value (N.O.V.) Information/History | ||||||||
|---|---|---|---|---|---|---|---|---|
| Year | Date | Market Value | Taxable Market Value | Gross Assessed | Exemption | Net Assessed | ||
|
2026 |
02/06/2026 |
112,500 |
55,194 |
6,071 |
1,000 |
5,071 |
||
|
2025 |
01/31/2025 |
109,000 |
55,194 |
6,071 |
1,000 |
5,071 |
||
|
2024 |
01/22/2024 |
99,000 |
55,194 |
6,071 |
1,000 |
5,071 |
||
|
2023 |
01/23/2023 |
87,000 |
55,194 |
6,071 |
1,000 |
5,071 |
||
|
2022 |
02/22/2022 |
76,000 |
55,194 |
6,071 |
1,000 |
5,071 |
||
| Property Building Permit History | |||||||||||
|---|---|---|---|---|---|---|---|---|---|---|---|
| Issued | Permit # | Provided by | Bldg # | Description | Est Construction Cost | Status | |||||
| No Building Permit records returned. | |||||||||||
| Click button on building number to access detailed information: | ||||||
|---|---|---|---|---|---|---|
| Bldg # | Vacant/Improved Land | Bldg Description | Year Built | SqFt | # Stories | |
|
1 |
Improved |
Ranch 1 Story |
1954 |
945 |
1 Stories |
|