|
|
|
| Larry Stein Oklahoma County Assessor (405) 713-1200 - Public Access System |
|
|
|
|
|
|
| Real Property Display - Screen Produced 4/6/2026 8:42:36 AM | ||||
|---|---|---|---|---|
| Account: R153753025 | Type: Residential | Location: |
4333 SE 17TH ST |
|
| Building Name/Occupant: |
|
DEL CITY |
||
| Owner Name 1: | WRIGHT RUBENA D |
Parcel PIN#: |
1432-15-375-3025 |
|
| Owner Name 2: | 1/4 section #: |
1432 |
||
| Owner Name 3: | Parent Acct: |
|
||
| Billing Address: | 4333 SE 17TH ST | Tax District: |
|
|
| City, State, Zip | DEL CITY, OK 73115-3109 | School System: |
Mid-Del #52 |
|
|
Country: (If noted) |
Land Size: |
0.1722 Acres |
||
|
Land Value: 24,000 |
|
|||
|
Sect 8-T11N-R2W Qtr NW |
EPPERLY HEIGHTS 7TH
Block
002
Lot
021
|
|||
| Full Legal Description: EPPERLY HEIGHTS 7TH 002 021 |
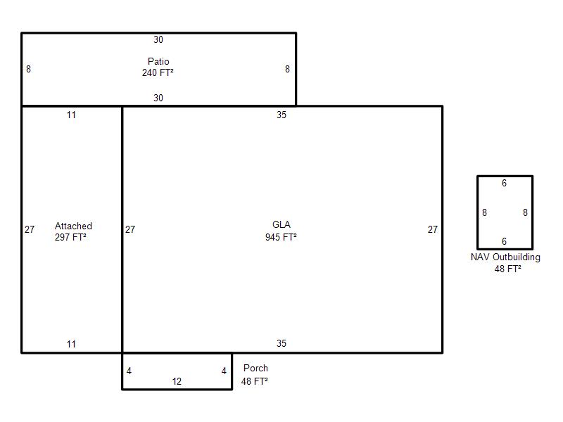
| Photo & Sketch (if available) | Comp Sales (ordered by relevancy) |
|
||||||||||||||||||
|
||||||||||||||||||||
| Value History (*The County Treasurer 405-713-1300 posts & collects actual tax amounts. Contact information HERE) | |||||||||||||
|---|---|---|---|---|---|---|---|---|---|---|---|---|---|
| Year | Market Value | Taxable Mkt Value | Gross Assessed | Exemption | Net Assessed | Millage | Est. Tax | Tax Savings | |||||
|
2026 |
103,500 |
54,716 |
6,018 |
1,000 |
5,018 |
114.72 |
$576 |
$730 |
|||||
|
2025 |
100,000 |
54,716 |
6,018 |
1,000 |
5,018 |
114.72 |
$576 |
$686 |
|||||
|
2024 |
89,500 |
54,716 |
6,018 |
1,000 |
5,018 |
117.21 |
$588 |
$566 |
|||||
|
2023 |
81,000 |
54,716 |
6,018 |
1,000 |
5,018 |
112.46 |
$564 |
$438 |
|||||
|
2022 |
71,000 |
54,716 |
6,018 |
1,000 |
5,018 |
110.76 |
$556 |
$309 |
|||||
| Property Account Status/Adjustments/Exemptions | ||
|---|---|---|
| Account # | Exemption Description | Amount |
|
R153753025 |
Freeze Senior Valuation |
0 |
|
R153753025 |
3% Cap Homestead |
0 |
|
R153753025 |
Homestead |
1,000 |
| Property Deed Transaction History (Recorded in the County Clerk's Office) | |||||||
|---|---|---|---|---|---|---|---|
| Date | Type | Book | Page | Price | Grantor | Grantee | |
|
7/24/2000 |
|
Deeds |
$49,000 |
MANTOOTH DONALD D & SARAH B |
WRIGHT RUBENA D |
||
|
12/2/1999 |
|
Deeds |
$18,500 |
DEGRAFFENREID ALMA JEAN |
MANTOOTH DONALD D & SARAH B |
||
|
7/1/1981 |
|
Historical |
$0 |
|
DEGRAFFENREID ALMA JEAN |
||
| Last Mailed Notice of Value (N.O.V.) Information/History | ||||||||
|---|---|---|---|---|---|---|---|---|
| Year | Date | Market Value | Taxable Market Value | Gross Assessed | Exemption | Net Assessed | ||
|
2026 |
02/06/2026 |
103,500 |
54,716 |
6,018 |
1,000 |
5,018 |
||
|
2025 |
01/31/2025 |
100,000 |
54,716 |
6,018 |
1,000 |
5,018 |
||
|
2024 |
01/22/2024 |
89,500 |
54,716 |
6,018 |
1,000 |
5,018 |
||
|
2023 |
01/23/2023 |
81,000 |
54,716 |
6,018 |
1,000 |
5,018 |
||
|
2022 |
02/22/2022 |
71,000 |
54,716 |
6,018 |
1,000 |
5,018 |
||
| Property Building Permit History | ||||||
|---|---|---|---|---|---|---|
| Issued | Permit # | Provided by | Bldg # | Description | Est Construction Cost | Status |
|
12/23/1999 |
10250315 |
DEL CITY |
1 |
Remodeled |
8,000 |
Inactive |
| Click button on building number to access detailed information: | ||||||
|---|---|---|---|---|---|---|
| Bldg # | Vacant/Improved Land | Bldg Description | Year Built | SqFt | # Stories | |
|
1 |
Improved |
Ranch 1 Story |
1954 |
945 |
1 Stories |
|