|
|
|
| Larry Stein Oklahoma County Assessor (405) 713-1200 - Public Access System |
|
|
|
|
|
|
| Real Property Display - Screen Produced 4/6/2026 8:41:14 AM | ||||
|---|---|---|---|---|
| Account: R153753205 | Type: Residential | Location: |
1604 HANNA DR |
|
| Building Name/Occupant: |
|
DEL CITY |
||
| Owner Name 1: | TAYLOR KELLEY ANN & DENZEL |
Parcel PIN#: |
1432-15-375-3205 |
|
| Owner Name 2: | 1/4 section #: |
1432 |
||
| Owner Name 3: | Parent Acct: |
|
||
| Billing Address: | 8116 RAIN DANCE TRL | Tax District: |
|
|
| City, State, Zip | FORT WORTH, TX 76123-1942 | School System: |
Mid-Del #52 |
|
|
Country: (If noted) |
Land Size: |
0.1722 Acres |
||
|
Land Value: 24,000 |
|
|||
|
Sect 8-T11N-R2W Qtr NW |
EPPERLY HEIGHTS 7TH
Block
003
Lot
002
|
|||
| Full Legal Description: EPPERLY HEIGHTS 7TH 003 002 |
| Photo & Sketch (if available) | Comp Sales (ordered by relevancy) |
|
||||||||||||||||||
|
||||||||||||||||||||
| Value History (*The County Treasurer 405-713-1300 posts & collects actual tax amounts. Contact information HERE) | |||||||||||||
|---|---|---|---|---|---|---|---|---|---|---|---|---|---|
| Year | Market Value | Taxable Mkt Value | Gross Assessed | Exemption | Net Assessed | Millage | Est. Tax | Tax Savings | |||||
|
2026 |
117,500 |
85,765 |
9,433 |
0 |
9,433 |
114.72 |
$1,082 |
$400 |
|||||
|
2025 |
113,500 |
81,681 |
8,984 |
0 |
8,984 |
114.72 |
$1,031 |
$402 |
|||||
|
2024 |
103,500 |
77,792 |
8,556 |
0 |
8,556 |
117.21 |
$1,003 |
$331 |
|||||
|
2023 |
89,000 |
74,088 |
8,149 |
0 |
8,149 |
112.46 |
$917 |
$184 |
|||||
|
2022 |
78,000 |
70,560 |
7,761 |
0 |
7,761 |
110.76 |
$860 |
$91 |
|||||
| Property Account Status/Adjustments/Exemptions | ||
|---|---|---|
| Account # | Exemption Description | Amount |
|
R153753205 |
5% Capped Account |
0 |
| Property Deed Transaction History (Recorded in the County Clerk's Office) | ||||||||||
|---|---|---|---|---|---|---|---|---|---|---|
| Date | Type | Book | Page | Price | Grantor | Grantee | ||||
|
7/23/2007 |
|
Deeds |
$0 |
TAYLOR KELLEY ANN |
TAYLOR KELLEY ANN & DENZEL |
|||||
|
10/14/2006 |
|
Deeds |
$0 |
HOWERTON JAMES JACK TAYLOR KELLY |
TAYLOR KELLEY ANN |
|||||
|
9/19/2006 |
|
Deeds |
$0 |
HOWERTON MICHAEL DAVID ESTATE OF |
HOWERTON JAMES JACK TAYLOR KELLY |
|||||
|
1/11/2005 |
|
Hmstd Off & |
$0 |
HOWERTON ROBBIE LEE |
HOWERTON MIKE D HOWERTON JAMES J |
|||||
|
12/10/2004 |
|
Deeds |
$0 |
HOWERTON JACK J & R |
HOWERTON ROBBIE LEE |
|||||
| Last Mailed Notice of Value (N.O.V.) Information/History | ||||||||
|---|---|---|---|---|---|---|---|---|
| Year | Date | Market Value | Taxable Market Value | Gross Assessed | Exemption | Net Assessed | ||
|
2026 |
02/06/2026 |
117,500 |
85,765 |
9,433 |
0 |
9,433 |
||
|
2025 |
01/31/2025 |
113,500 |
81,681 |
8,984 |
0 |
8,984 |
||
|
2024 |
01/22/2024 |
103,500 |
77,792 |
8,556 |
0 |
8,556 |
||
|
2023 |
01/23/2023 |
89,000 |
74,088 |
8,149 |
0 |
8,149 |
||
|
2022 |
02/22/2022 |
78,000 |
70,560 |
7,761 |
0 |
7,761 |
||
| Property Building Permit History | |||||||||||
|---|---|---|---|---|---|---|---|---|---|---|---|
| Issued | Permit # | Provided by | Bldg # | Description | Est Construction Cost | Status | |||||
| No Building Permit records returned. | |||||||||||
| Click button on building number to access detailed information: | ||||||
|---|---|---|---|---|---|---|
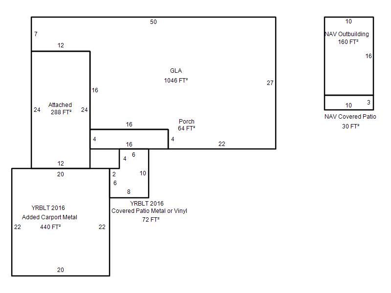
| Bldg # | Vacant/Improved Land | Bldg Description | Year Built | SqFt | # Stories | |
|
1 |
Improved |
Ranch 1 Story |
1953 |
1,046 |
1 Stories |
|