|
|
|
| Larry Stein Oklahoma County Assessor (405) 713-1200 - Public Access System |
|
|
|
|
|
|
| Real Property Display - Screen Produced 4/6/2026 8:40:39 AM | ||||
|---|---|---|---|---|
| Account: R153753225 | Type: Residential | Location: |
1608 HANNA DR |
|
| Building Name/Occupant: |
|
DEL CITY |
||
| Owner Name 1: | GONZALES WILBER |
Parcel PIN#: |
1432-15-375-3225 |
|
| Owner Name 2: | 1/4 section #: |
1432 |
||
| Owner Name 3: | Parent Acct: |
|
||
| Billing Address: | 1608 HANNA DR | Tax District: |
|
|
| City, State, Zip | DEL CITY, OK 73115-3112 | School System: |
Mid-Del #52 |
|
|
Country: (If noted) |
Land Size: |
0.1722 Acres |
||
|
Land Value: 24,000 |
|
|||
|
Sect 8-T11N-R2W Qtr NW |
EPPERLY HEIGHTS 7TH
Block
003
Lot
003
|
|||
| Full Legal Description: EPPERLY HEIGHTS 7TH 003 003 |
| Photo & Sketch (if available) | Comp Sales (ordered by relevancy) |
|
||||||||||||||||||
|
||||||||||||||||||||
| Value History (*The County Treasurer 405-713-1300 posts & collects actual tax amounts. Contact information HERE) | |||||||||||||
|---|---|---|---|---|---|---|---|---|---|---|---|---|---|
| Year | Market Value | Taxable Mkt Value | Gross Assessed | Exemption | Net Assessed | Millage | Est. Tax | Tax Savings | |||||
|
2026 |
192,000 |
192,000 |
21,120 |
0 |
21,120 |
114.72 |
$2,423 |
$0 |
|||||
|
2025 |
191,500 |
139,113 |
15,301 |
0 |
15,301 |
114.72 |
$1,755 |
$661 |
|||||
|
2024 |
180,000 |
132,489 |
14,572 |
0 |
14,572 |
117.21 |
$1,708 |
$613 |
|||||
|
2023 |
155,500 |
126,180 |
13,878 |
0 |
13,878 |
112.46 |
$1,561 |
$363 |
|||||
|
2022 |
136,000 |
120,172 |
13,218 |
0 |
13,218 |
110.76 |
$1,464 |
$193 |
|||||
| Property Account Status/Adjustments/Exemptions | ||||||
|---|---|---|---|---|---|---|
| Account # | Exemption Description | Amount | ||||
| No adjustment/exemption records returned. | ||||||
| Property Deed Transaction History (Recorded in the County Clerk's Office) | ||||||||||
|---|---|---|---|---|---|---|---|---|---|---|
| Date | Type | Book | Page | Price | Grantor | Grantee | ||||
|
8/14/2025 |
|
Hmstd Off & |
$0 |
MIXED PROPERTIES LLC |
GONZALES WILBER |
|||||
|
6/12/2025 |
|
Other |
$0 |
ANM PROPERTIES LLC |
MIXED PROPERTIES LLC |
|||||
|
3/17/2025 |
|
Deeds |
$115,000 |
GRAUBNER BENJAMIN A |
ANM PROPERTIES LLC |
|||||
|
5/20/2016 |
|
Deeds |
$113,000 |
ZENDO PROPERTY INVESTMENTS LLC |
GRAUBNER BENJAMIN A |
|||||
|
11/30/2012 |
|
Deeds |
$106,000 |
CAYWOOD LADWANA G |
ZENDO PROPERTY INVESTMENTS LLC |
|||||
| Last Mailed Notice of Value (N.O.V.) Information/History | ||||||||
|---|---|---|---|---|---|---|---|---|
| Year | Date | Market Value | Taxable Market Value | Gross Assessed | Exemption | Net Assessed | ||
|
2026 |
02/06/2026 |
192,000 |
192,000 |
21,120 |
0 |
21,120 |
||
|
2025 |
01/31/2025 |
191,500 |
139,113 |
15,301 |
0 |
15,301 |
||
|
2024 |
01/22/2024 |
180,000 |
132,489 |
14,572 |
0 |
14,572 |
||
|
2023 |
01/23/2023 |
155,500 |
126,180 |
13,878 |
0 |
13,878 |
||
|
2022 |
02/22/2022 |
136,000 |
120,172 |
13,218 |
0 |
13,218 |
||
| Property Building Permit History | |||||||||||
|---|---|---|---|---|---|---|---|---|---|---|---|
| Issued | Permit # | Provided by | Bldg # | Description | Est Construction Cost | Status | |||||
| No Building Permit records returned. | |||||||||||
| Click button on building number to access detailed information: | ||||||
|---|---|---|---|---|---|---|
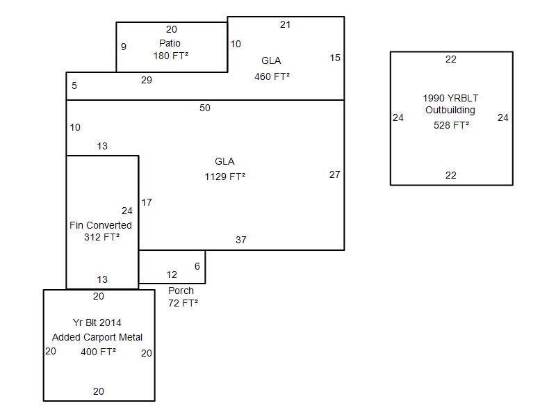
| Bldg # | Vacant/Improved Land | Bldg Description | Year Built | SqFt | # Stories | |
|
1 |
Improved |
Ranch 1 Story |
1953 |
1,589 |
1 Stories |
|